

Bungalow Pultdach 145
Kundenhaus
Fertighaus mit versetztem Pultdach
Ein klassischer Bungalow war für die Bauherren keine Option – sie wünschten sich ein außergewöhnliches Zuhause mit moderner Architektur und großzügigem Raumgefühl. Das Fertighaus mit versetztem Pultdach beeindruckt durch seine klare Linienführung, die harmonische Farbgebung und die durchdachte Raumaufteilung.
Das versetzte Pultdach verleiht dem Bungalow eine markante Optik und schafft im Inneren eine beeindruckende Raumhöhe. Die rechtwinklige Anordnung der Baukörper sorgt für eine spannende Architektur und bietet gleichzeitig eine geschützte Terrasse als Rückzugsort für Bewohner und Gäste. Die Fassade in hellem Grau harmoniert perfekt mit dem verblechten Dach, den grauen Dachuntersichten und den dunkel abgesetzten Fenstern. Die anthrazitfarbene Haustür mit Edelstahlelementen unterstreicht den modernen Stil. Insgesamt strahlt der Bungalow eine repräsentative Eleganz aus, die sich nahtlos in die Umgebung einfügt.
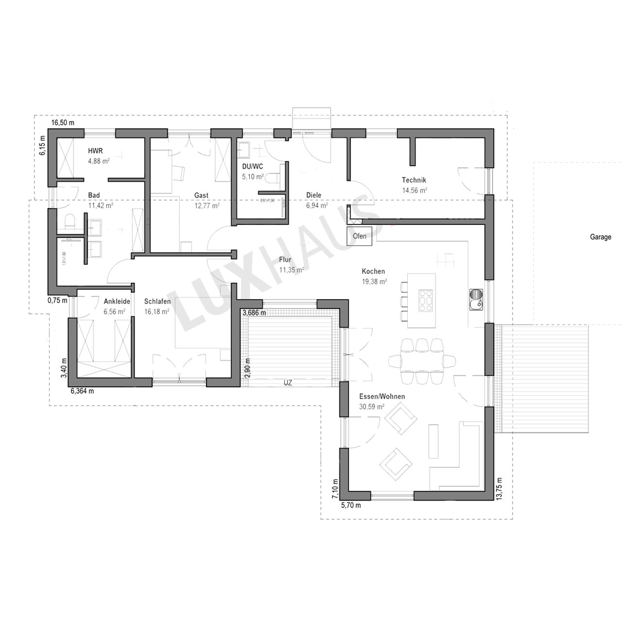
Im Inneren besticht das Fertighaus mit versetztem Pultdach durch ein lichtdurchflutetes Wohnkonzept. Die großzügig geschnittene Küche mit moderner Kochinsel ist der zentrale Treffpunkt des Hauses. Wohn- und Essbereich gehen fließend ineinander über und bieten mit warmen Holzelementen und geschmackvoller Einrichtung eine einladende Atmosphäre. Das Schlafzimmer überzeugt mit natürlichen Materialien und direktem Zugang zum Außenbereich. Auch das Badezimmer ist bis ins Detail durchdacht – mit hochwertigen Armaturen, viel Stauraum und einer stilvollen Kombination aus Holz- und Fliesenelementen.
Dieses Fertighaus mit versetztem Pultdach kombiniert modernes Design mit funktionaler Architektur und hohem Wohnkomfort. Es zeigt, wie ein Bungalow zeitgemäß interpretiert werden kann – stilvoll, nachhaltig und individuell geplant.
Haus anfragenZusatzinfo
Für Anfragen zu diesem Kundenhaus verwenden Sie bitte die interne Bezeichnung LUXHAUS-23262.
Haus anfragen






