

Bungalow Pultdach 150
Kundenhaus
Moderner Bungalow mit Pultdach
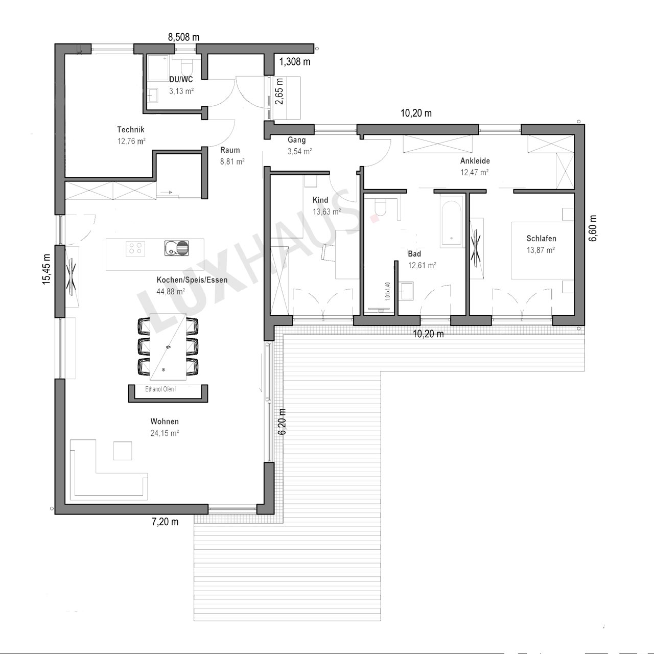
Ausgefallene Bungalowarchitektur mit viel Raum für Persönlichkeit: Der moderne Bungalow mit Pultdach bietet ein durchdachtes Wohnkonzept, das offene und private Bereiche harmonisch kombiniert. Durch die architektonische Aufteilung mit einem Pultdach und einem zusätzlichen Baukörper mit flachem Satteldach entsteht eine moderne, klare Struktur.
Der Mittelpunkt des Hauses ist der großzügige Wohn-Ess-Kochbereich, in dem architektonische Raffinesse auf modernes Design trifft. Ein stilvoller Küchenblock, eine offene Küche und ein Panorama-Sitzfenster, das zum Verweilen einlädt, prägen diesen offenen Bereich. Die Kombination aus raffinierten Details und klarer Linienführung schafft ein spannendes Gesamtambiente, das sowohl innen als auch außen spürbar wird.
Im Außenbereich setzt sich das moderne Design konsequent fort. Ein einladender Loungebereich und ein Wasserbecken mit sanftem Zulauf schaffen eine entspannte Atmosphäre – ideal für lange Sommerabende.
Dieser moderne Bungalow mit Pultdach steht für durchdachte Architektur, hohe Lebensqualität und eine Gestaltung, die Individualität und Stil vereint. Mit seinem offenen Raumkonzept, den hochwertigen Materialien und der klaren Formsprache ist er die ideale Wahl für anspruchsvolles Wohnen.
Haus anfragen
Zusatzinfo
Für Anfragen zu diesem Kundenhaus verwenden Sie bitte die interne Bezeichnung LUXHAUS-27435.
Haus anfragen






