

Bungalow Walmdach 226
Kundenhaus
Bungalow mit Einliegerwohnung
Die größten Herausforderungen bergen oft die größten Chancen.
So auch bei diesem Bungalow mit Einliegerwohnung im Keller, der aufgrund seiner extremen Hanglage besonderer Planung bedurfte, dafür aber nun eine unvergleichliche Aussicht bietet sowie intelligent entkoppelte Zugänge zu Haupthaus und Einliegerwohnung.
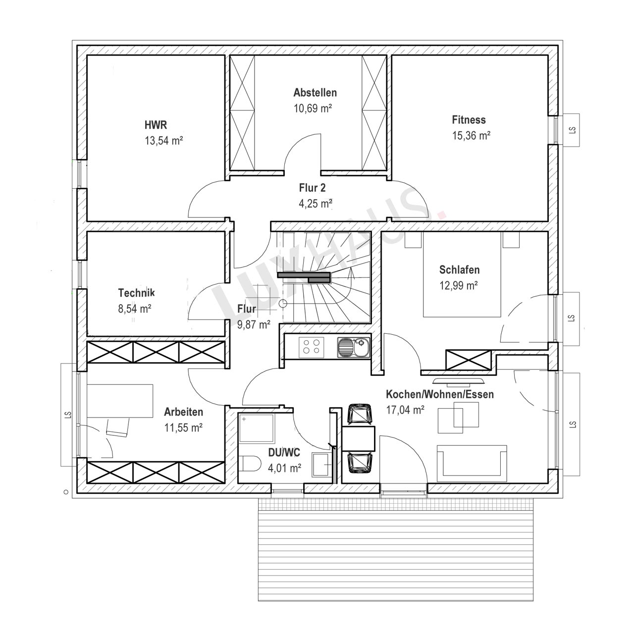
Aufgrund der Hanglage entsteht aber nicht nur ein eigener Eingang, sondern auch eine Terrasse und Tageslicht dank gut geplanter Lichtschächte. Neben der vollwertigen Einliegerwohnung mit Schlafen, Wohnen, Essen und Kochen gibt es auch noch ein Arbeitszimmer.
Der tatsächliche Kellerbereich wird als Fitness- und Abstellbereich sowie als Technikraum genutzt.
Der Bungalow-Hauptbereich bietet alles, was modernes Wohnen ausmacht. Betritt man das Bungalowhaus durch das Eingangsportal, befindet sich rechts ein Schuhraum, gleich dahinter das Gäste-WC. Links geht es durch eine Tür in den Privatbereich mit Masterbad, Ankleide und Schlafzimmer, nach der Tür kommt ebenfalls linkerhand der Treppenabgang. Geradeaus, entkoppelt durch eine Schiebetür, öffnet sich das repräsentative Herzstück des Hauses: der großzügige Koch-Ess-Wohnbereich mit Speisekammer neben der Küche und großen Glasfronten für einen fantastischen Ausblick.
Dieser reichte den Bauherren nach einiger Zeit nicht mehr, und so ließen sie eine Terrasse mit Überdachung bauen, die den Wohnraum erweitert und an schönen Tagen als zweites Wohn- und Esszimmer fungiert.
Ein moderner Bungalow mit Einliegerwohnung im Keller lebt nicht nur vom durchdachten Grundriss, sondern auch von der Einrichtung.
Hier haben die Bauherren klassische Elemente mit moderner Formensprache kombiniert. So entsteht ein harmonisches und wertiges Gesamtbild, das Persönlichkeit und viel Liebe zum Detail vermittelt.
Haus anfragenZusatzinfo
Für Anfragen zu diesem Kundenhaus verwenden Sie bitte die interne Bezeichnung LUXHAUS-28202.
Haus anfragen







