

Satteldach Klassik 137
Kundenhaus
Fertighaus als Reihenhaus
Hier sind gleich fünf LUXHAUS Reihenhäuser entstanden, die sich harmonisch in ihre Umgebung einfügen. Mit der weißen Fassade und den anthrazitfarbenen Fensterrahmen vermitteln die Reihenhäuser eine zeitlose und klassische Ästhetik. Die teilweise Holzverschalung an der Gartenfassade verleiht dem Design eine zusätzliche Aufwertung.
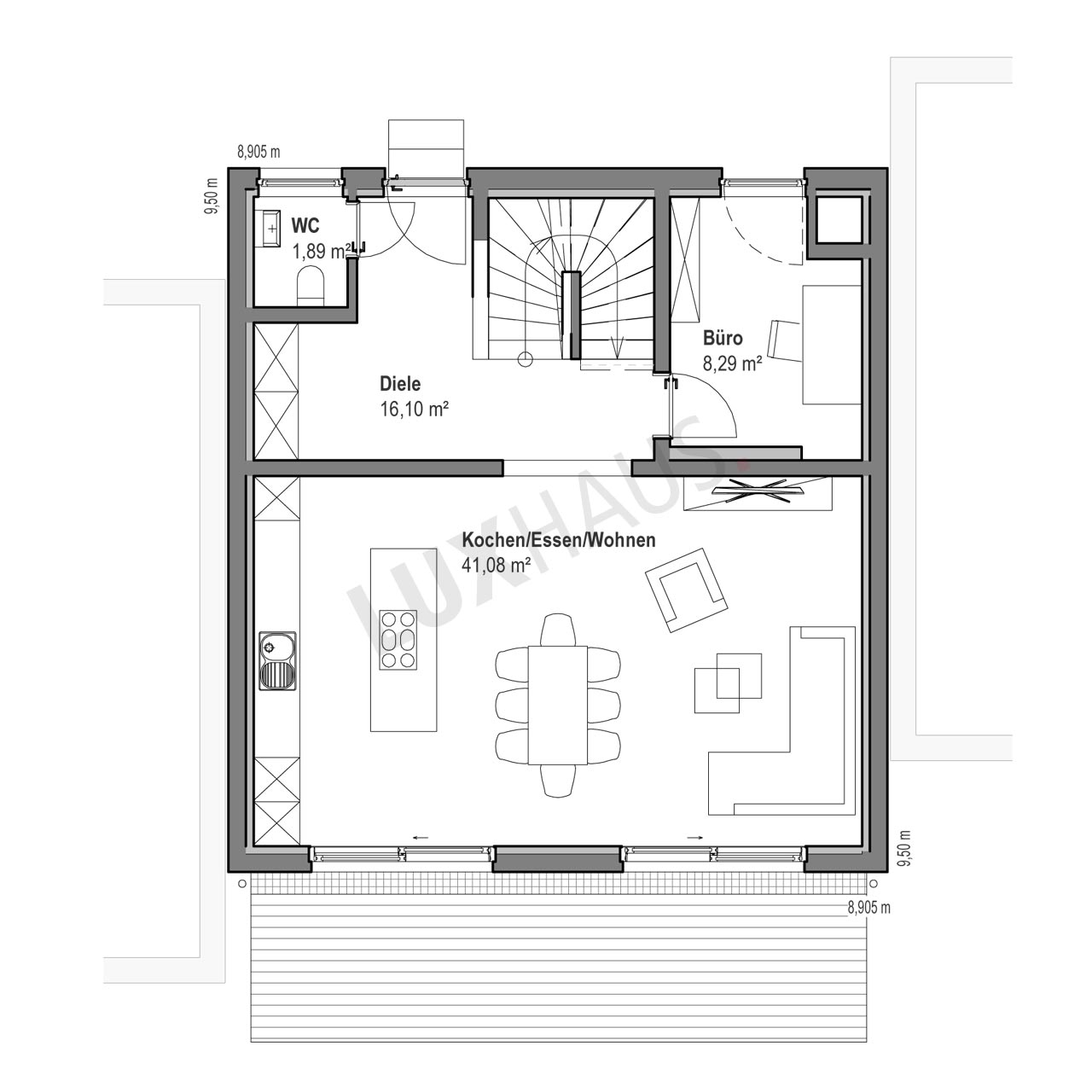
Im Erdgeschoss des Reihenhauses in Fertigbauweise befindet sich eine geräumige 12m² Diele, die verschiedene Wege eröffnet und einen abgetrennten Bereich zum Wohn- und Kochbereich schafft. Von hier aus gelangt man direkt ins Gäste-WC und ins Büro. Eine halbgewendelte Treppe mit Holzstufen im selben Design wie der Bodenbelag führt ins Obergeschoss Durch einen offenen Durchgang in der Diele erreicht man den 41 m² großen Wohn-, Koch- und Essbereich.
In diesem Bereich befindet sich eine elegante Küche in matt-schwarzer Optik, ausgestattet mit einer Kücheninsel. Der mittig platzierte Esstisch und das große Familiensofa komplettieren den Raum.
Der durchdachte Grundriss des Fertighaus Reihenhauses schafft einen großzügigen, länglichen und offenen Bereich, der ideal für das Zusammenkommen der Familie ist. Schiebetüren führen sowohl von der Küche als auch vom Wohnbereich auf die Terrasse und verbinden so den Innen- mit dem Außenbereich.
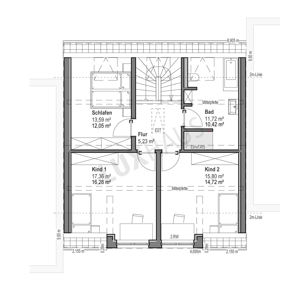
Im Obergeschoss lassen bodentiefe Fenster in den beiden Kinderzimmern, die zum Garten ausgerichtet sind, viel Tageslicht herein. Ein Oberlicht im Treppenaufgang sorgt für zusätzliche Helligkeit und macht den Vorraum einladend. Zudem befinden sich im Obergeschoss das Elternschlafzimmer mit Kleiderschrank und das Familienbadezimmer, ausgestattet mit ebenerdiger Dusche, Doppelwaschbecken und eingebauter Badewanne.
Das Fertighaus Reihenhaus verfügt über einen Keller, der Platz für den Hauswirtschaftsraum, den Technikraum und zwei Abstellräume bietet. Ein Lichtschacht und ein Kellerfenster lassen Tageslicht in den Hauswirtschaftsraum.
Im gesamten Reihenhaus schaffen der warme Holzboden, die beige Einrichtung und die Holz-Wandtafel eine gemütliche und warme Atmosphäre. Schwarze Akzente in der Einrichtung, die sich auch in der Küche und der Eingangstür wiederfinden, setzen Kontraste zum hellen Farbkonzept. Diese stilvolle Kombination aus Holz, beigen Fliesen und schwarzen Elementen setzt sich auch in den Badezimmern fort.
Ein Reihenhaus mit Satteldach kombiniert die klassische Dachform mit moderner Bauweise und passt sich perfekt an die Umgebung an. Dank des Satteldachs gewinnt das Reihenhaus im Obergeschoss an zusätzlicher Raumhöhe, was für ein offenes und großzügiges Wohngefühl sorgt. Ein Fertighaus als Reihenhaus zu bauen, bietet zahlreiche Vorteile. Es ist nicht nur platzsparend, sondern auch kosteneffizient. Die angrenzenden Gebäude bieten zusätzlichen Schutz vor Witterung, Hitze und Kälte, wodurch die Nebenkosten reduziert werden. Zudem sind die Grundstückspreise für Reihenhäuser oft niedriger.
Haus anfragenZusatzinfo
Für Anfragen zu diesem Kundenhaus verwenden Sie bitte die interne Bezeichnung LUXHAUS-28537.
Haus anfragen








