

Flachdach 185
Kundenhaus
Flachdachhaus im Bauhausstil
Dieses Flachdachhaus im Bauhausstil überzeugt mit einer klaren, zeitlosen Architektur, die moderne Ästhetik und funktionale Gestaltung harmonisch vereint. Die geradlinige Formensprache wird durch gezielt eingesetzte Akzentflächen in warmem Holzton aufgelockert und verleiht der Fassade eine natürliche Eleganz. Großzügige Fensterformate sorgen nicht nur für eine optimale Lichtdurchflutung, sondern machen die Raumstruktur von außen ablesbar – ein charakteristisches Merkmal des Flachdachhauses mit Bauhausstil.
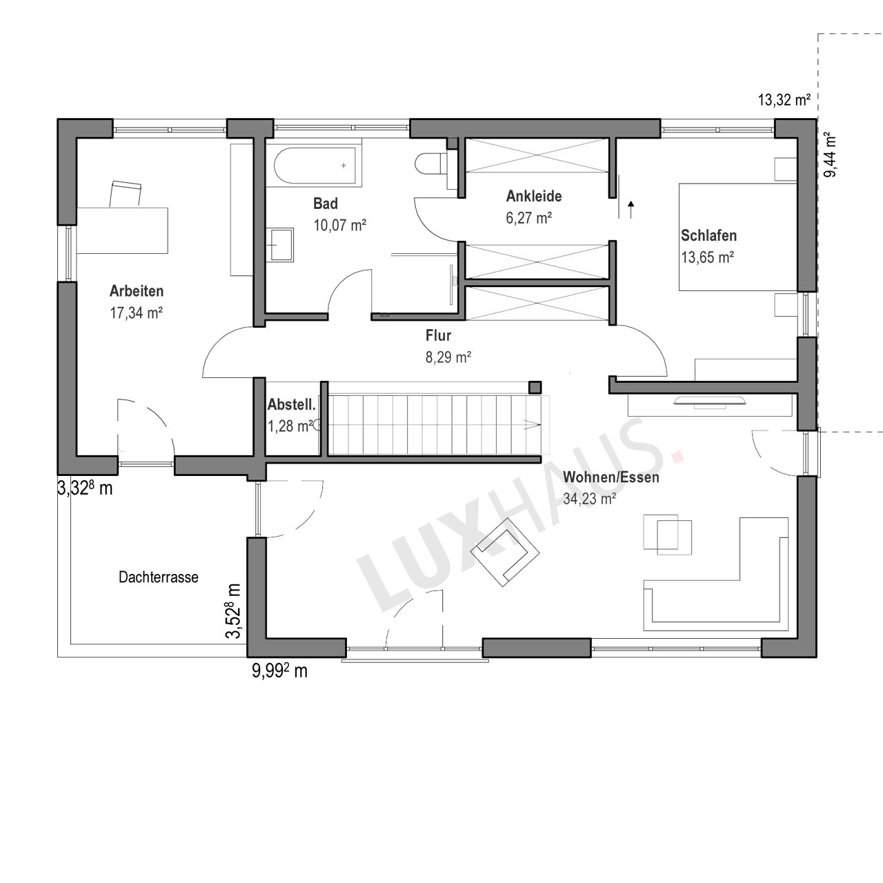
Auch im Inneren setzt sich die minimalistische Gestaltung fort: Starke Kontraste zwischen hellen und dunklen Elementen, kombiniert mit einer zurückhaltenden Farbpalette, schaffen ein modernes und zugleich wohnliches Ambiente. Der offene Wohn- und Essbereich bildet das Herzstück des Hauses, während die Küche mit ihrer funktionalen Planung und hochwertigen Ausstattung überzeugt. Im Badezimmer sorgt das Zusammenspiel aus dunklen Bodenfliesen und hellen Wänden für ein elegantes, reduziertes Design.
Der Außenbereich fügt sich nahtlos in das architektonische Gesamtkonzept ein. Die großzügige Terrasse lädt zum Verweilen ein, während der gepflegte Garten den natürlichen Rahmen für das Gebäude bildet. Die angeschlossene Garage greift die Holzoptik der Fassade auf und ergänzt das harmonische Gesamtbild.
Dieses Haus verkörpert modernes Wohnen mit klaren Strukturen, lichtdurchfluteten Räumen und einer Architektur, die sich in die Umgebung einfügt – ein herausragendes Beispiel für den Bauhausstil mit Flachdach.
Haus anfragenZusatzinfo
Für Anfragen zu diesem Kundenhaus verwenden Sie bitte die interne Bezeichnung LUXHAUS-19220.
Haus anfragen







