

Pultdach Klassik 139
Kundenhaus
Modernes Einfamilienhaus mit Pultdach
Dieses Einfamilienhaus mit Pultdach vereint modernes Design mit funktionaler Raumgestaltung und hochwertigen Materialien. Der markante Flachdachanbau erweitert nicht nur die Wohnfläche, sondern verleiht dem Haus auch eine individuelle Note. Besonders hervorzuheben ist das großzügige Wohnzimmer, das dank der Erweiterung des Erdgeschosses viel Platz für Familie und Freunde bietet. Die sich bildende Nische auf der Terrasse schafft einen geschützten Sitzbereich, der zum Verweilen einlädt.
Die Fassade des Hauses überzeugt durch klare Linien und eine harmonische Farbgestaltung. Farbige Akzente zwischen den querliegenden Fenstern im Obergeschoss erzeugen den Eindruck eines durchgehenden Fensterbands und lassen das Obergeschoss optisch zurücktreten. Dies betont die moderne Architektur und sorgt für eine ausgewogene Proportion des Baukörpers.
Im Inneren des Einfamilienhauses mit Pultdach treffen warme Holztöne auf eine raffinierte, moderne Einrichtung. Der Wohn- und Essbereich ist offen gestaltet und profitiert von großzügigen Fensterflächen, die viel Tageslicht hereinlassen und eine helle, freundliche Atmosphäre schaffen. Die Küche ist als eigener Raum geplant, wird jedoch durch ein großes Innenfenster optisch mit dem Wohn-Ess-Bereich verbunden. Diese Lösung kombiniert die Vorteile eines geschlossenen Kochbereichs mit der Offenheit eines modernen Grundrisses.
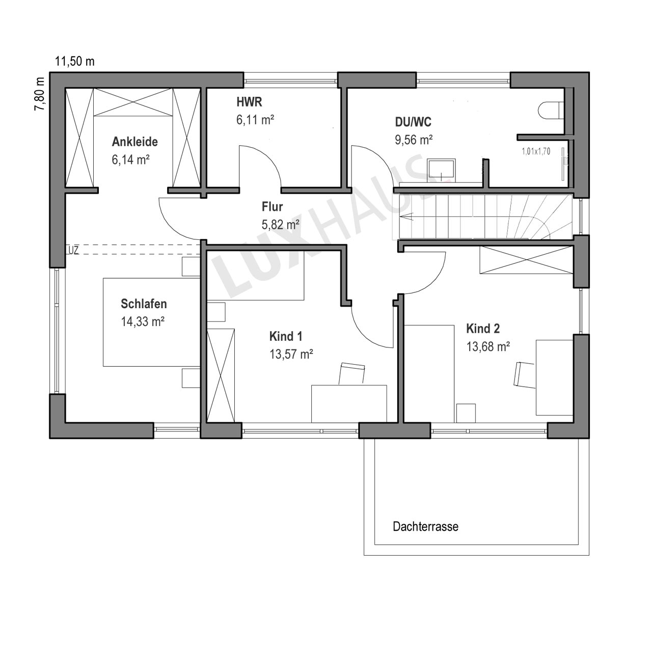
Der Grundriss des Einfamilienhauses mit Pultdach ist durchdacht und praxisorientiert. Im Erdgeschoss befindet sich neben dem großzügigen Wohn-Ess-Bereich die Küche, ein Dusch-WC sowie ein Technikraum. Das Obergeschoss bietet Platz für zwei Kinderzimmer, ein Schlafzimmer mit angrenzender Ankleide, ein großzügiges Bad sowie einen Hauswirtschaftsraum. Die Dachterrasse erweitert den Wohnraum ins Freie und bietet einen zusätzlichen Ort der Entspannung.
Dieses Einfamilienhaus mit Pultdach vereint modernes Design, hochwertige Materialien und eine durchdachte Raumaufteilung zu einem Wohnkonzept, das höchsten Ansprüchen an Komfort, Ästhetik und Funktionalität gerecht wird.
Haus anfragenZusatzinfo
Für Anfragen zu diesem Kundenhaus verwenden Sie bitte die interne Bezeichnung LUXHAUS-27614.
Haus anfragen







