

Pultdach Klassik 166
Kundenhaus
Pultdachhaus mit 160 m²
Cool und zeitlos: So lässt sich dieses Pultdachhaus mit 160 qm beschreiben. Die klare Formensprache und harmonische Symmetrie verleihen dem Gebäude eine elegante Modernität, während die anthrazitfarbenen Fensterrahmen einen markanten Kontrast zur weißen Fassade setzen. Große Schiebetüren öffnen den Wohnbereich nach außen, während kleinere Fenster gezielt Lichtakzente setzen und Privatsphäre bewahren.
Im Inneren treffen warme Naturtöne auf dezente Farbakzente und Musterelemente, während industrielle Materialien wie Stahl und Beton mit Holz kombiniert werden. Ein besonderes Highlight dieses Pultdachhauses mit 160 qm ist die geradläufige Treppe, die mit ihrer Betonoptik einen markanten Blickfang bildet und dank integriertem Abstellraum zusätzlichen Stauraum bietet.
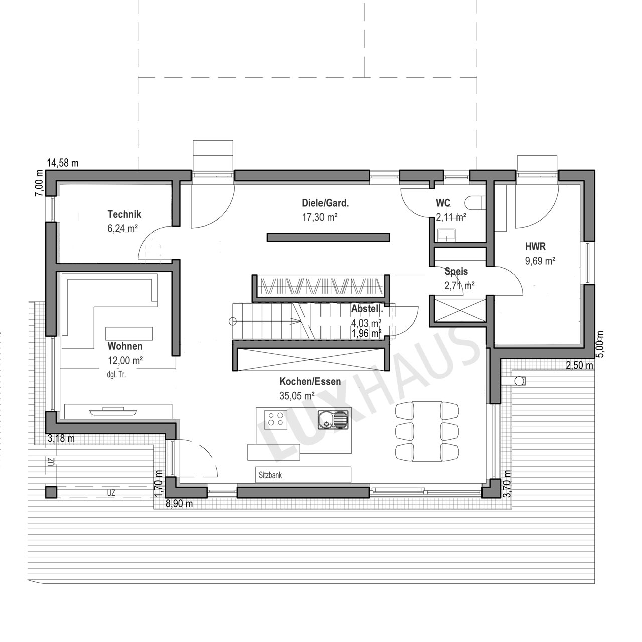
Gebaut auf einer Bodenplatte und ergänzt durch eine erweiterte Garage, überzeugt dieses Pultdachhaus mit 160 qm mit einer intelligenten Raumaufteilung. Der Eingangsbereich mit Technikraum, Gäste-WC und Speisekammer ist bewusst vom offenen Wohnbereich abgesetzt. Die Küche mit Essbereich und das separate Wohnzimmer schaffen ein angenehmes Wohngefühl. Im Obergeschoss bietet der private Bereich mit Elternschlafzimmer, Ankleide und Badezimmer sowie zwei Kinderzimmern mit eigenem Dusch-WC ausreichend Platz.
Dieses Pultdachhaus mit 160 qm vereint modernes Design mit durchdachter Funktionalität. Lichtdurchflutete Räume und eine klare Struktur schaffen ein stilvolles und komfortables Zuhause.
Haus anfragenZusatzinfo
Für Anfragen zu diesem Kundenhaus verwenden Sie bitte die interne Bezeichnung LUXHAUS-27677.
Haus anfragen







