

Pultdach Klassik 182
Kundenhaus
Modernes Haus mit Pultdach
Das moderne Haus mit Pultdach vereint zeitlose Eleganz mit funktionaler Architektur. Der minimalistische Kubus in Schwarz-Weiß-Optik strahlt moderne Klarheit aus, während der schmale Anbau für eine spannende architektonische Dynamik sorgt. Das markante Pultdach unterstreicht den avantgardistischen Charakter und trägt zur harmonischen Gesamtästhetik bei. Im Inneren setzt sich das durchdachte Konzept fort: Warme Naturtöne und hochwertige Materialien schaffen eine stilvolle Wohlfühlatmosphäre. Die klare Strukturierung der Räume sorgt für eine perfekte Kombination aus Offenheit und Funktionalität.
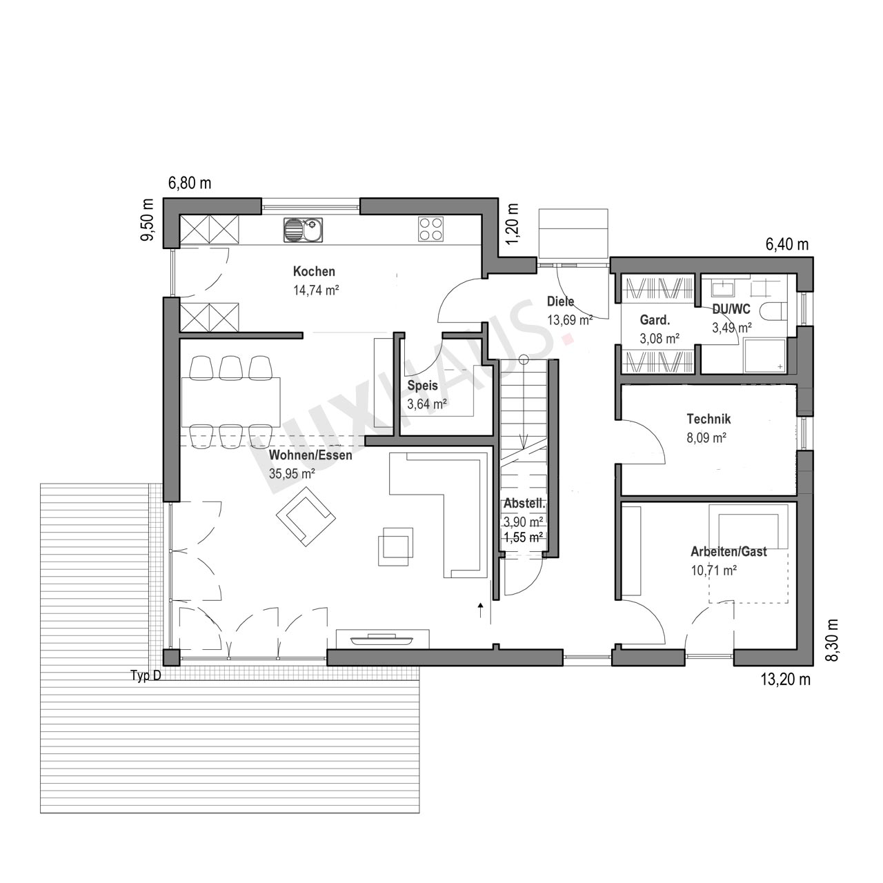
Beim Betreten des Hauses öffnet sich die Diele mit einer geradläufigen Treppe, unter der ein praktischer Abstellraum integriert ist. Direkt daneben befindet sich die Garderobe sowie ein Gäste-WC mit Dusche. Ergänzt wird dieser Bereich durch den Technikraum und ein flexibel nutzbares Gäste- oder Arbeitszimmer, das dank des Dusch-WCs als vollwertiger Gästebereich fungieren kann. Nach rechts führt der Weg in die moderne Küche, die durch eine angrenzende Speisekammer ergänzt wird. Essen und Wohnen gehen fließend ineinander über und bieten durch große Glasfronten direkten Zugang zur Terrasse und zum Garten.
Im Obergeschoss sorgt eine helle Galerie für ein großzügiges Raumgefühl. Zwei Kinderzimmer sind um einen zentral gelegenen Hauswirtschaftsraum angeordnet, der für kurze Wege sorgt. Das Elternschlafzimmer verfügt über eine eigene Ankleide und direkten Zugang zum Badezimmer, das mit zwei Waschtischen, einer bodengleichen Dusche und einer Badewanne höchsten Wohnkomfort bietet.
Dieses moderne Haus mit Pultdach überzeugt mit einer intelligenten Raumaufteilung, einer lichtdurchfluteten Gestaltung und hochwertigen Materialien. Die großzügigen Fensterflächen sorgen für helle, freundliche Räume und bieten einen direkten Bezug zur Natur. Die Kombination aus Design, Wohnqualität und Funktionalität macht dieses Haus zur idealen Wahl für anspruchsvolle Bauherren. Das moderne Haus mit Pultdach steht für zeitgemäßes Wohnen mit architektonischem Anspruch und maximalem Komfort.
Haus anfragenZusatzinfo
Für Anfragen zu diesem Kundenhaus verwenden Sie bitte die interne Bezeichnung LUXHAUS-26377.
Haus anfragen






