

Pultdach Klassik 229
Kundenhaus
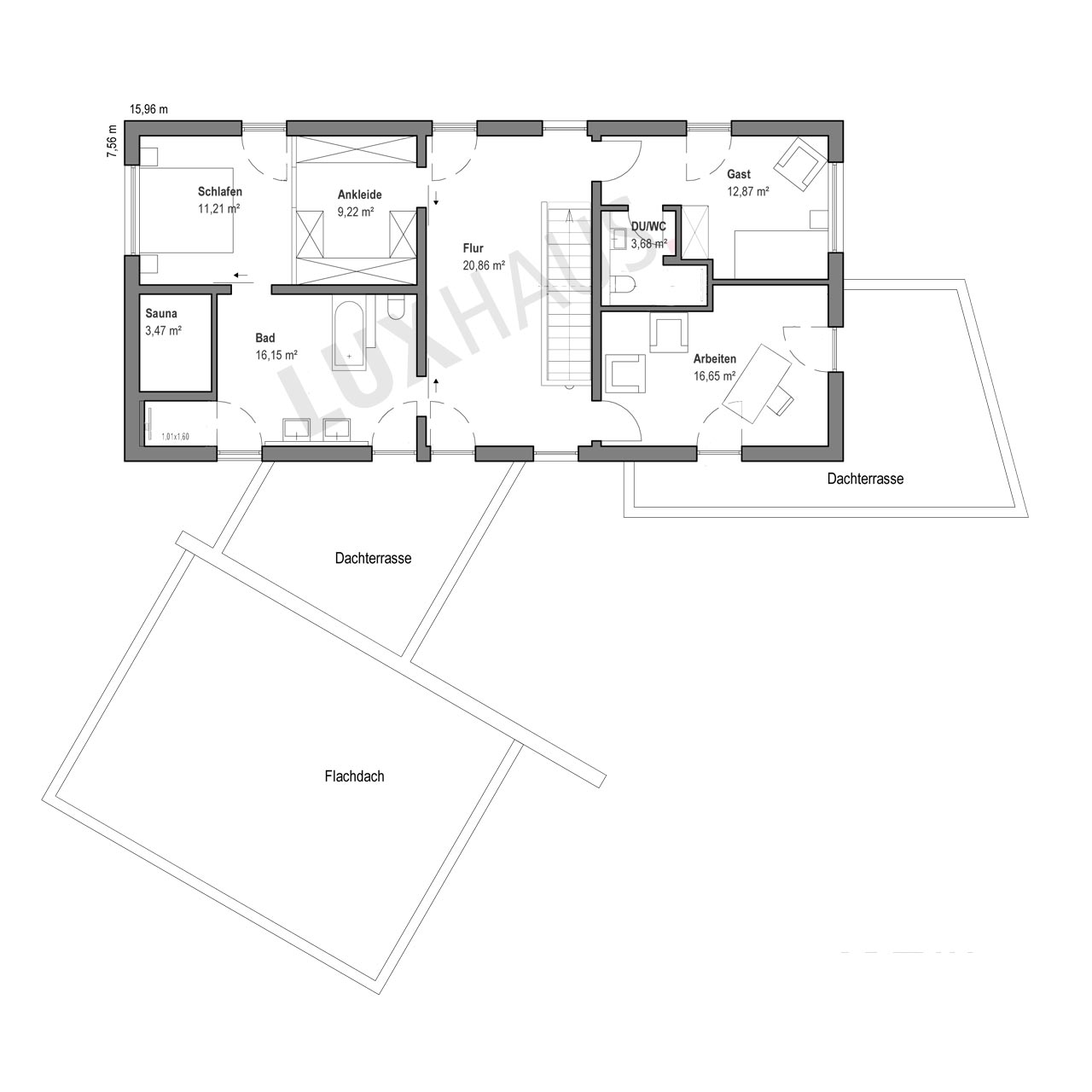
Fertighaus mit Wintergarten
Dieses Fertighaus mit Wintergarten vereint architektonische Raffinesse mit durchdachter Raumgestaltung. Die Kombination aus einer schlichten, modernen Formensprache und hochwertigen Materialien schafft eine harmonische Wohnatmosphäre. Die Fassade besticht durch eine Kombination aus weißem Putz und einer mit Lärchenholz verschalten Flachdachgarage, die sich elegant in das Gesamtkonzept einfügt. Akzente in kräftigem Rot sorgen für einen lebendigen Kontrast. Der offene Eingangsbereich erzeugt eine einladende Hofsituation, die für Gäste und Bewohner gleichermaßen ansprechend ist. Dank großer bodentiefer Fensterflächen wird der Innenraum mit Tageslicht durchflutet.
Der Wintergarten öffnet das Haus zum Garten hin und erweitert den Wohnbereich auf natürliche Weise. Helle Holzböden, moderne Möbel und farbliche Akzente schaffen eine warme, einladende Atmosphäre. Die offene Küche präsentiert sich in einem eleganten Mix aus dunklen Arbeitsflächen und glänzenden, tiefroten Fronten. Modernste Geräte, großzügige Arbeitsbereiche und durchdachte Stauraumlösungen machen sie zum idealen Ort für kulinarische Kreationen. Das großzügige Badezimmer setzt auf ein harmonisches Farbkonzept mit warmen Gelbtönen, kontrastierenden dunklen Fliesen und natürlichen Materialien. Eine integrierte Sauna sowie eine bodentiefe Regendusche bieten pure Entspannung und verwandeln den Raum in eine persönliche Wellnessoase. Dieses Fertighaus mit Wintergarten überzeugt nicht nur durch sein durchdachtes Design, sondern auch durch seine hohe Energieeffizienz und nachhaltige Bauweise. Dank intelligenter Raumaufteilung und hochwertiger Materialien wird modernes Wohnen auf höchstem Niveau möglich.
Haus anfragenZusatzinfo
Für Anfragen zu diesem Kundenhaus verwenden Sie bitte die interne Bezeichnung LUXHAUS-22574.
Haus anfragen








