

Pultdach Klassik 233
Kundenhaus
Pultdachhaus mit Einliegerwohnung
Raffinierte Architektur, gepaart mit einer klassischen Farbgebung, macht schon von außen den Reiz dieses Mehrgenerationenhauses aus. Die Pultdächer stehen versetzt zueinander und bilden so nicht nur im Gartenbereich einen eigenständigen Raum, sondern auch im eingeschossigen Herz des Hauses. Im Innenraum setzt sich diese subtile Raffinesse fort.
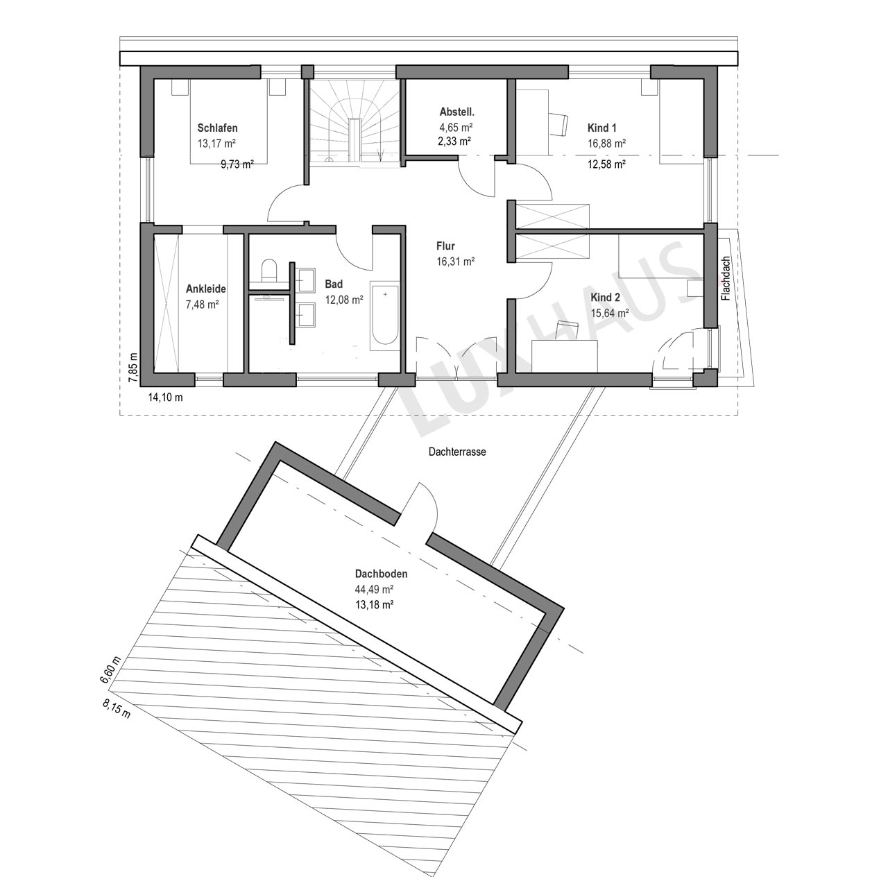
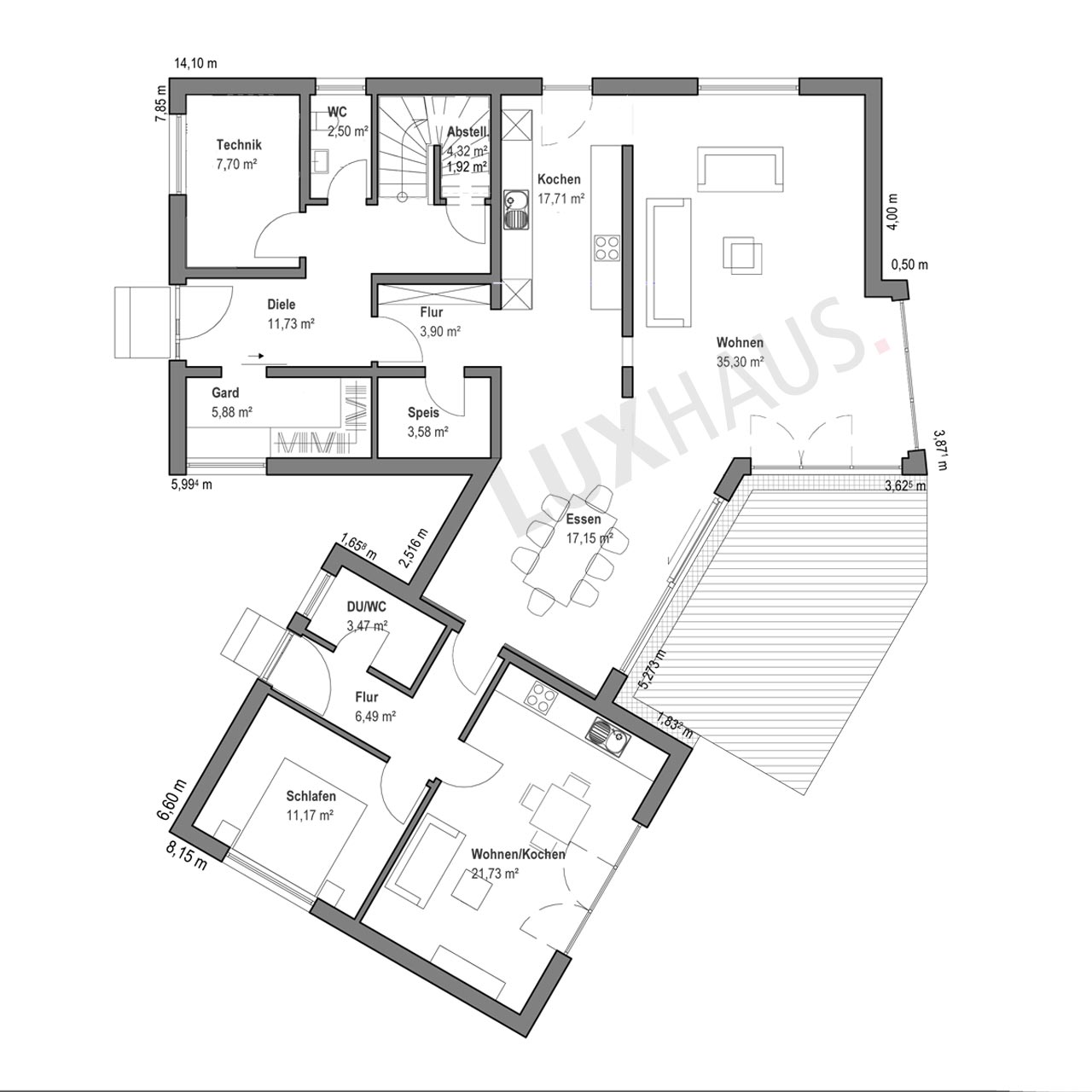
Auf 233 m² Wohnfläche leben in diesem Pultdachhaus mit Einliegerwohnung zwei Generationen zusammen. Die Hauptwohnung erstreckt sich über zwei Ebenen und bietet mit 190 m² viel Platz für modernes Wohnen. Die separate Einliegerwohnung mit 43 m² ist ideal für Familienmitglieder oder Gäste. Gedeckte Naturtöne und hochwertige Materialien sorgen für eine elegante Wohlfühlatmosphäre, während die offene Raumgestaltung Großzügigkeit und Helligkeit vermittelt.
Das harmonische Zusammenspiel aus durchdachter Architektur, natürlichen Materialien und lichtdurchfluteten Räumen macht dieses Pultdachhaus mit Einliegerwohnung zu einem Wohnkonzept, das Funktionalität und Ästhetik vereint.
Haus anfragenZusatzinfo
Für Anfragen zu diesem Kundenhaus verwenden Sie bitte die interne Bezeichnung LUXHAUS-22786.
Haus anfragen







