

Pultdach Klassik 257
Kundenhaus
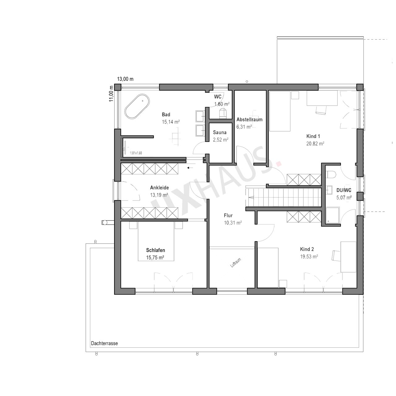
Grundriss mit Luftraum
Raffiniert miteinander kombinierte Kuben mit Pultdach verleihen diesem Haus eine moderne und ausdrucksstarke Architektur. Klare Linien, durchdachte Details und eine harmonische Materialwahl prägen das Gesamtbild. Der Grundriss mit Luftraum schafft ein offenes und luftiges Wohnkonzept, das Weite und Transparenz vermittelt. Durch die Galerie entsteht eine faszinierende Raumhöhe, die das Wohngefühl auf ein neues Niveau hebt.
Die Innenraumgestaltung setzt auf zeitlose Eleganz mit kontrastreichen Schwarz-Weiß-Tönen. Hochwertige Materialien und eine puristische Formensprache unterstreichen den modernen Charakter. Rote Akzente sorgen für gezielte Blickfänge und verleihen dem Design zusätzliche Dynamik.
Großflächige Fensterfronten durchziehen das gesamte Haus und ermöglichen eindrucksvolle Blickachsen in den Garten. Sie holen viel Tageslicht in den Innenraum und erzeugen eine starke Verbindung zwischen Drinnen und Draußen. Dadurch wirkt das Haus offen, freundlich und besonders einladend.
Der Grundriss mit Luftraum prägt nicht nur die Architektur, sondern auch die Wohnqualität. Der offene Wohn- und Essbereich geht nahtlos in die Küche über und bildet das kommunikative Zentrum des Hauses. Hier wird gemeinsam gelebt, gekocht und genossen – mit maximalem Komfort und einem einzigartigen Raumgefühl.
Das Obergeschoss bietet dank der Galerie eine besondere Perspektive auf den Wohnraum und verstärkt das großzügige Wohnkonzept. Rückzugsorte wie das Schlafzimmer und das Wellness-Bad mit Sauna sorgen für höchsten Wohnkomfort. Die durchdachte Raumaufteilung ermöglicht eine optimale Nutzung aller Bereiche und bietet ausreichend Platz für individuelle Wohnwünsche.
Auch die Außenbereiche sind konsequent in das architektonische Gesamtkonzept integriert. Die großzügige Terrasse lädt zum Verweilen ein, während der Garten als grünes Wohnzimmer dient und die Natur direkt ins Haus holt.
Dieses Haus kombiniert eine moderne Architektursprache mit einem offenen Wohnkonzept und höchstem Komfort. Der Grundriss mit Luftraum sorgt für ein einzigartiges Raumgefühl und eine außergewöhnliche Atmosphäre – ideal für alle, die stilvolles Wohnen mit viel Licht, Luft und Weite schätzen.
Haus anfragenZusatzinfo
Für Anfragen zu diesem Kundenhaus verwenden Sie bitte die interne Bezeichnung LUXHAUS-26072.
Haus anfragen







