

Satteldach Klassik 219
Kundenhaus
Modernes Satteldachhaus mit Erker
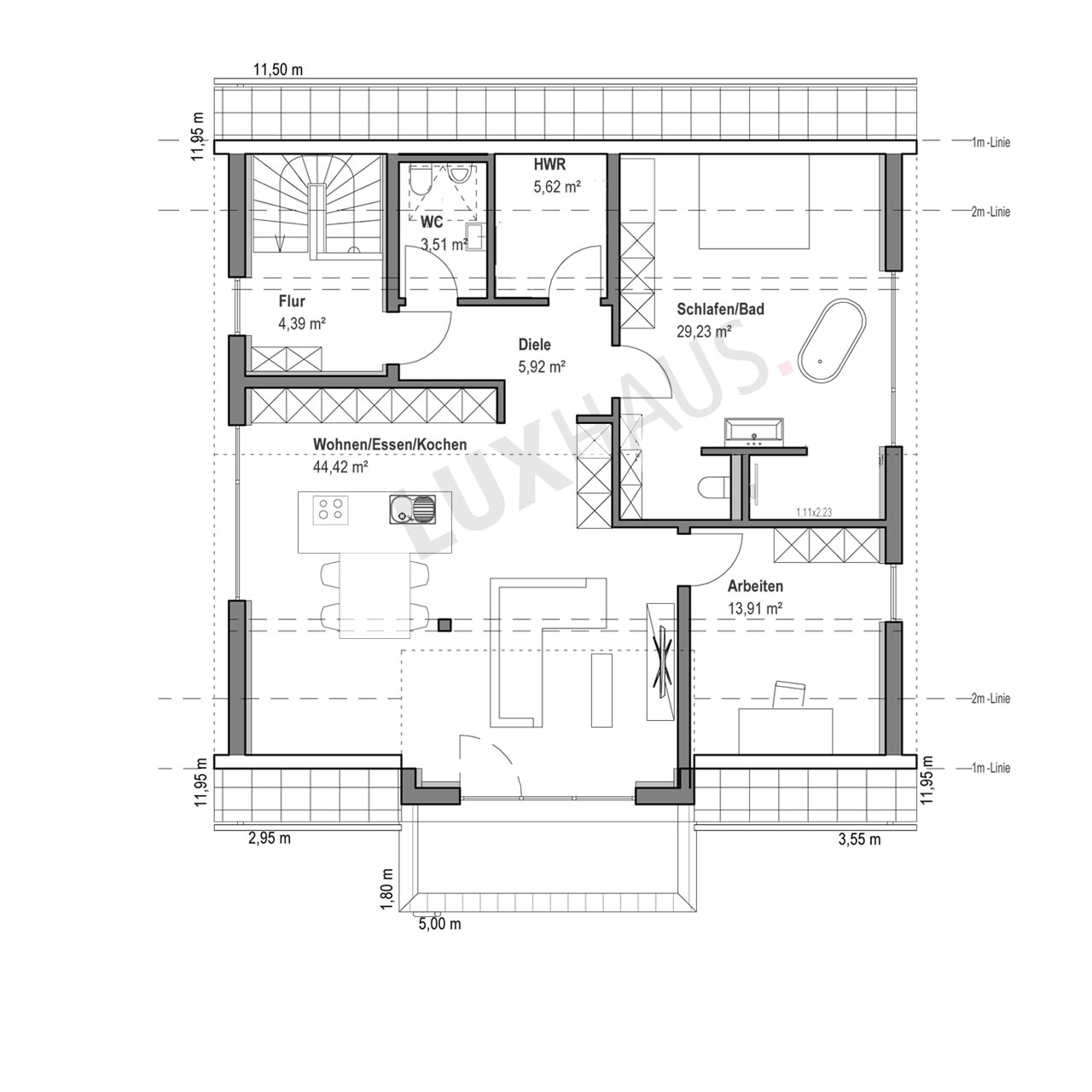
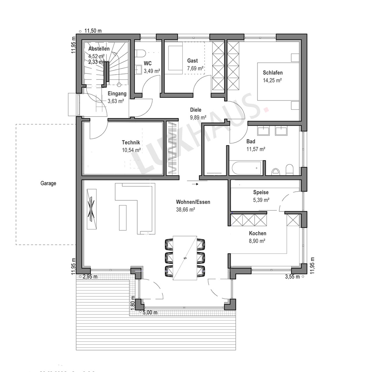
Bei diesem Kundenhaus handelt es sich um ein Satteldachhaus mit Erker, das Mehrgenerationenwohnen und Singlewohnen verbindet. Im Erdgeschoss leben die Eltern, während der Bauherr das Obergeschoss als Single bewohnt. Diese Aufteilung ermöglicht sowohl gemeinschaftliches Wohnen als auch ausreichend Privatsphäre.
Trotz der strengen Bauvorschriften wurde ein Haus geschaffen, das sich optisch abhebt und gleichzeitig in das Umfeld integriert. Besonders die Holzverschalung am Erker sorgt für eine warme, einladende Optik und setzt natürliche Akzente. Ein weiteres gestalterisches Highlight sind die bronzenen Fenster, die dem Haus eine moderne und gleichzeitig elegante Note verleihen.
Auch im Innenbereich zeigt sich die gestalterische Freiheit der Bewohner. Hochwertige Materialien und klare Linien bestimmen das Design. Im Obergeschoss sorgen Blautöne in Kombination mit natürlichen Materialien für eine moderne, individuelle Atmosphäre. Im Erdgeschoss wurde ein klassischer Stil gewählt, der mit warmen Farben und traditionellen Elementen überzeugt.
Das Konzept dieses Satteldachhauses mit Erker bietet nicht nur architektonische Raffinesse, sondern auch eine nachhaltige Wohnlösung. Gerade für Singles kann das Leben in einem Mehrgenerationenhaus eine attraktive Finanzierungsoption darstellen, da Banken Einzelpersonen oft nur eingeschränkte Kreditmöglichkeiten bieten.
Haus anfragenZusatzinfo
Für Anfragen zu diesem Kundenhaus verwenden Sie bitte die interne Bezeichnung LUXHAUS-29087.
Haus anfragen







