

Satteldach Landhaus 126
Kundenhaus
Kleines Haus mit Satteldach
Dieses kleine Haus mit Satteldach kombiniert klassische Architektur mit modernen Elementen und setzt auf puristische Eleganz. Die Geschichte dieser Baufamilie beginnt mit dem Wunsch nach einem modernen Einfamilienhaus mit hoher Wohnqualität und einem fairen Preis-Leistungs-Verhältnis: kompakt, effizient und trotzdem großzügig wirkend – mit rund 120 m² Wohnfläche. Gemeinsam mit LUXHAUS entstand das Satteldach Landhaus 126, das auf intelligente Weise jeden Quadratmeter optimal nutzt.
Durch den Einsatz von wenigen, gezielt platzierten Fenstern sowie großzügigen Festverglasungen wird der Innenraum nur dort geöffnet, wo es notwendig ist – das schafft eine gemütliche Atmosphäre, die Rückzug und Privatsphäre ermöglicht und das Haus gleichzeitig größer wirken lässt, als es tatsächlich ist. Die grauen Akzente an der Außenfassade verleihen dem Haus einen filigranen Charakter und betonen die klare Linienführung.
Grundstückssuche mit Happy End
Ursprünglich hatte die Familie bereits ein Grundstück reserviert – doch die geplante Baufläche erwies sich nach fachlicher Prüfung als ungeeignet. Gemeinsam mit LUXHAUS fand die Familie schnell einen neuen Bauplatz am unverbaubaren Ortsrand, der perfekte Voraussetzungen für ihr individuell geplantes Haus bot.
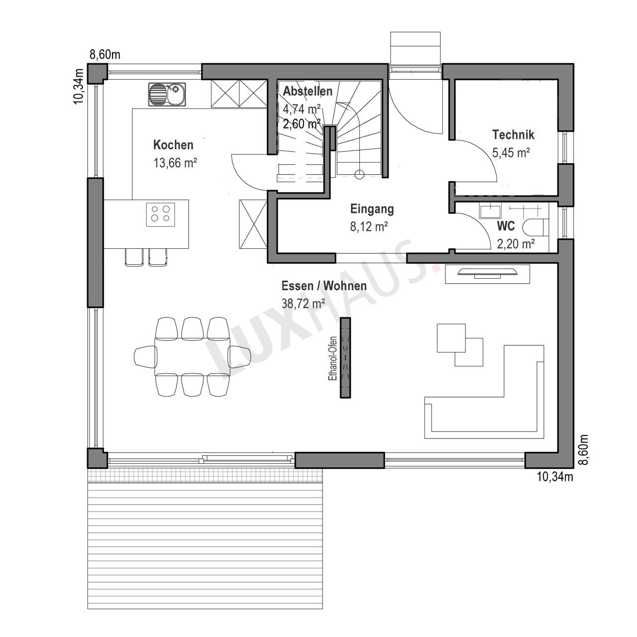
Weiterlesen Haus anfragenIntelligente Raumplanung
Der Eingangsbereich ist mit dem überdachten Carport verbunden. Links liegen Technikraum und Gäste-WC, rechts führt eine Sichtbetontreppe ins Obergeschoss. Der Raum unter der Treppe dient praktischerweise als Speisekammer.
Im Erdgeschoss sind Küche, Ess- und Wohnbereich geschickt über Eck angeordnet. Eine Wandscheibe mit integriertem Ethanol-Ofen trennt die Küche optisch ab, ohne die Luftigkeit zu beeinträchtigen. Eine Hebe-Schiebetür führt vom Esszimmer direkt auf die Terrasse und bringt viel Tageslicht ins Haus.
Im Obergeschoss befinden sich zwei gespiegelte Kinderzimmer und ein gemeinsames Badezimmer mit freistehender Badewanne. Das Schlafzimmer bietet eine gemütliche Sitzecke mit Bücherregal; eine Ankleide führt direkt ins Badezimmer.
Liebe zum Detail
Einbaustrahler, Nischen in den Bädern, eine bodengleiche Dusche und die freistehende Badewanne als Lieblingsplätze der Baufamilie. LUXHAUS zeigt, wie auf kleiner Fläche ein Höchstmaß an Komfort, Design und Funktionalität möglich ist.
Haus anfragenZusatzinfo
Für Anfragen zu diesem Kundenhaus verwenden Sie bitte die interne Bezeichnung LUXHAUS-26457.
Haus anfragen







