

Satteldach Landhaus 128
Kundenhaus
Singlehaus auf schmalem Grundstück
Das individuell geplante Einfamilienhaus ist perfekt auf die Bedürfnisse eines Singlehaushalts zugeschnitten, bei dem Wert auf modernes Design und eine funktionale Raumaufteilung gelegt wird.
Mit einer Wohnfläche von 128 m² beeindruckt das Singlehaus durch seine klare, minimalistische Architektur und die geschickte Nutzung eines schmalen Grundstücks.
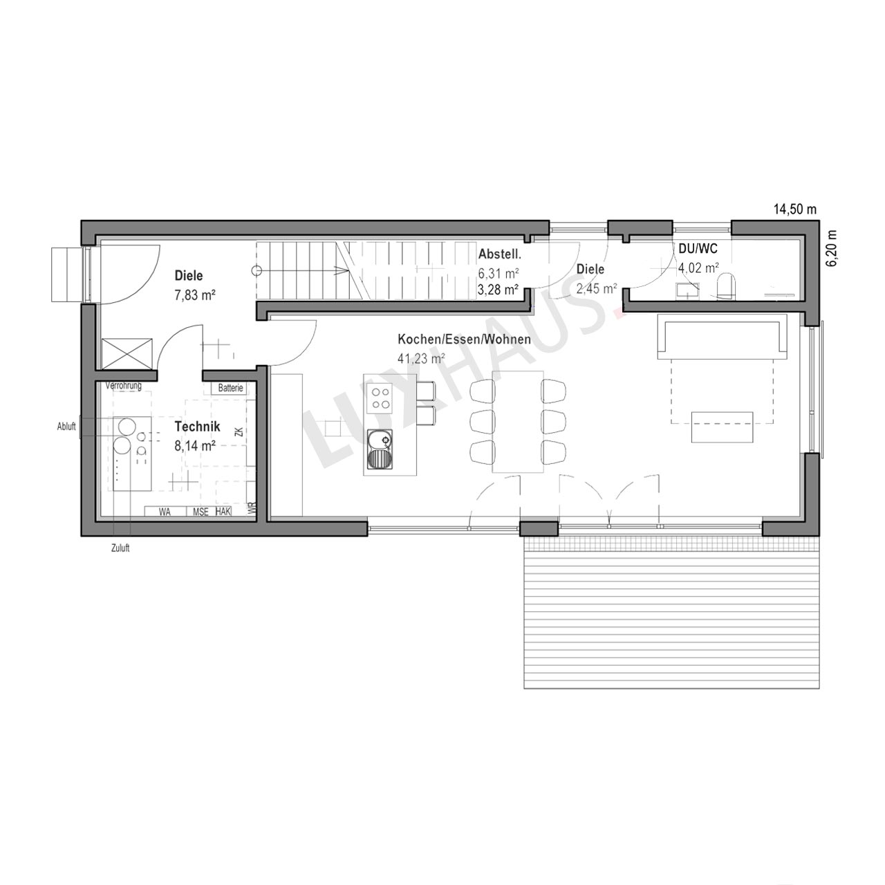
Der Grundriss ist so konzipiert, dass das begrenzte Platzangebot maximal ausgenutzt wird. Von der Straßenseite zeigt sich das Singlehaus mit einer schlichten, zugleich eleganten Fassade. Die klare Linienführung und die großzügigen Fensterfronten sorgen für viel natürliches Licht und schaffen eine Verbindung zwischen Innen- und Außenbereich. Die integrierte Garage fügt sich nahtlos in das Gesamtbild ein, während die Photovoltaikanlage auf dem Dach nicht nur ein optisches Highlight darstellt, sondern auch den nachhaltigen Anspruch des Hauses unterstreicht.
Im Inneren offenbart sich das Singlehaus als wahres Raumwunder. Der Eingangsbereich, mit seiner luftigen Treppe, die von begrünten Wänden flankiert wird, wirkt einladend und modern. Der Wohnbereich im Erdgeschoss ist offen gestaltet, sodass Küche und Esszimmer fließend ineinander übergehen. Helle Holzböden und große Fenster schaffen eine freundliche, lichtdurchflutete Atmosphäre. Durch die Terrassentüren entsteht ein direkter Zugang zum Garten, der trotz der kompakten Grundstücksgröße, ausreichend Raum für Entspannung im Freien bietet.
Das Badezimmer im Obergeschoss ist ein Ort der Entspannung und des Wohlbefindens. Dank der großzügigen Verglasung und der freistehenden Badewanne wird hier ein Ambiente geschaffen, das Ruhe und Erholung in den Vordergrund stellt.
Auch das Schlafzimmer, das ebenfalls im Obergeschoss liegt, profitiert von der durchdachten Fensteranordnung und bietet einen ruhigen Rückzugsort mit viel Tageslicht. Der Raum wirkt durch die minimalistische Einrichtung und die warmen Holzelemente besonders ruhig und harmonisch.
Dieses Singlehaus demonstriert eindrucksvoll, wie durch intelligente Planung und eine klare architektonische Vision ein komfortables und geräumiges zuhause auch auf einem kleinen Grundstück realisiert werden kann. Es ist ein Beispiel dafür, wie ein Einfamilienhaus sowohl ästhetisch ansprechend als auch funktional gestaltet werden kann – ideal für einen Singlehaushalt.
Haus anfragenZusatzinfo
Für Anfragen zu diesem Kundenhaus verwenden Sie bitte die interne Bezeichnung LUXHAUS-29319.
Haus anfragen







