

Satteldach Landhaus 139
Kundenhaus
Einfamilienhaus mit 140 qm
Modernes, beinahe sakral anmutendes Einfamilienhaus mit 140 qm, das mit klaren Linien, durchdachter Raumaufteilung und einer harmonischen Farbgestaltung überzeugt. Während die Fassade nach außen hin mit einer reduzierten, fast wehrhaften Ästhetik besticht, empfängt das Innere Bewohner und Gäste mit einer offenen, lichtdurchfluteten Atmosphäre. Großzügige Fensterflächen sorgen für einen optimalen Tageslichteinfall und schaffen ein Ambiente, das gleichermaßen modern wie einladend wirkt.
Die Kombination aus warmen, hellen Farbtönen und markanten, dunklen Akzenten verleiht den Räumen eine besondere Spannung und sorgt für ein stilvolles, zeitloses Wohngefühl. Das durchgängige Gestaltungskonzept mit hochwertigen Materialien wie Holz, Glas und modernen Lackoberflächen unterstreicht den hochwertigen Charakter des Hauses.
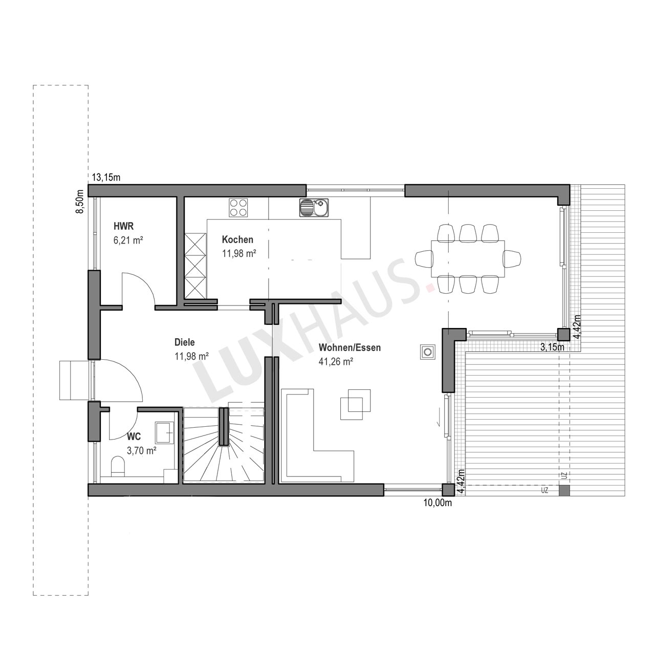
Mit einer Wohnfläche von 140 m² bietet das Einfamilienhaus eine durchdachte Aufteilung, die sowohl den Bedürfnissen einer Familie als auch den Ansprüchen an flexibles Wohnen gerecht wird. Das Erdgeschoss überzeugt mit einer offenen Küche, die nahtlos in den Essbereich übergeht – der perfekte Ort für gemeinsame Mahlzeiten und gesellige Abende. Angrenzend daran lädt das großzügige Wohnzimmer zum Entspannen ein und bietet gleichzeitig ausreichend Platz für Gäste. Die durchdachte Raumplanung sorgt für kurze Wege und ein hohes Maß an Funktionalität.
Im Obergeschoss befinden sich zwei geräumige Kinderzimmer, ein Elternschlafzimmer sowie ein komfortables, stilvoll gestaltetes Familienbad. Die klare Raumstruktur ermöglicht individuelle Nutzungsmöglichkeiten: Sobald die Kinder ausziehen, können die Räume flexibel für Homeoffice, Hobby oder Gästezimmer umgestaltet werden.
Dieses Einfamilienhaus mit 140 qm steht für eine gelungene Kombination aus Funktionalität, Wohnkomfort und hochwertigem Design. Es bietet eine ideale Lösung für Familien oder Paare, die eine nachhaltige, individuell gestaltbare Wohnlösung mit großzügigem Platzangebot suchen.
Haus anfragenZusatzinfo
Für Anfragen zu diesem Kundenhaus verwenden Sie bitte die interne Bezeichnung LUXHAUS-23460.
Haus anfragen








