

Satteldach Landhaus 143
Kundenhaus
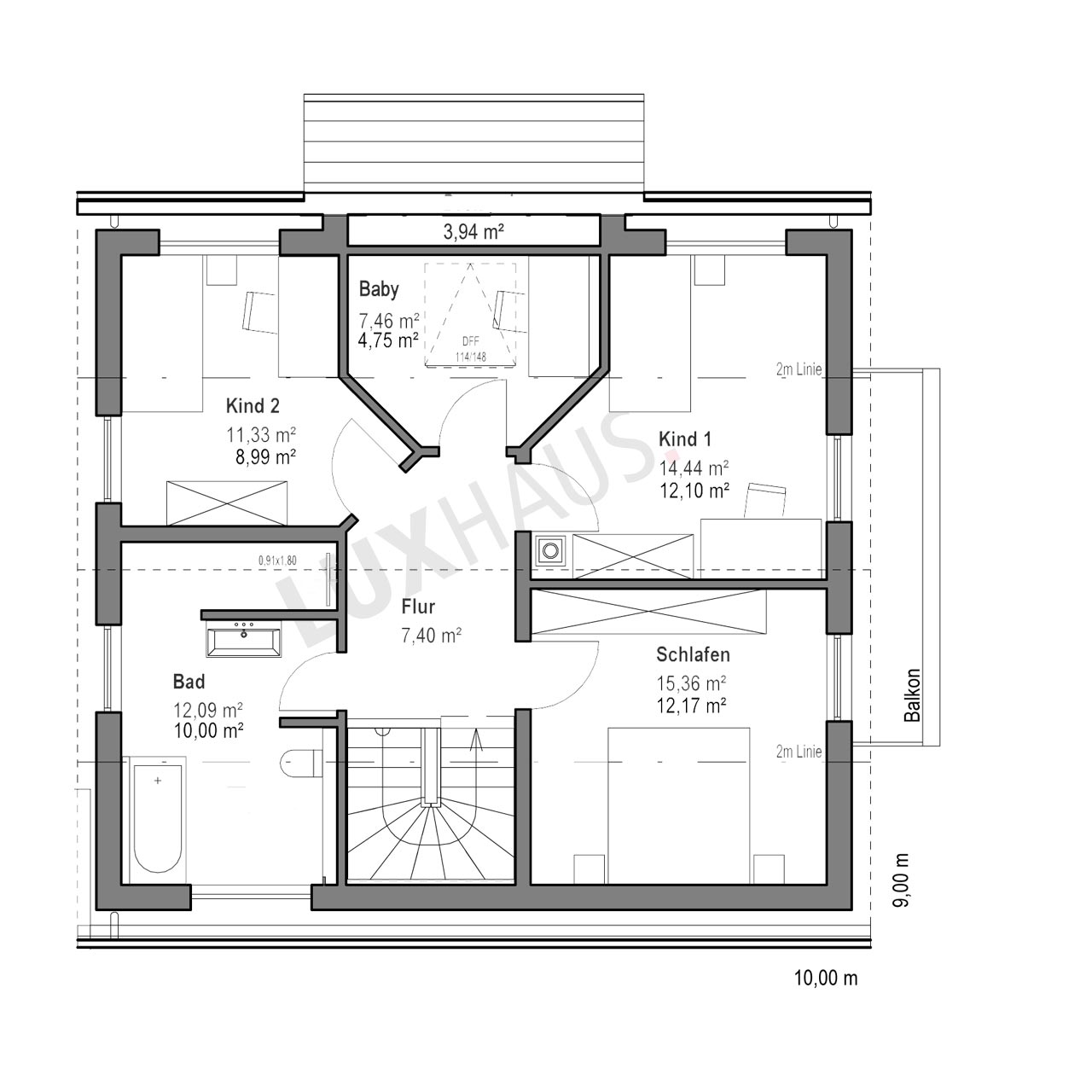
Haus mit drei Kinderzimmern
Auf den ersten Blick ein schlichtes Satteldachhaus, das aber mit drei Kinderzimmern und mit zahlreichen gestalterischen Highlights aufwarten kann. Dazu zählen die modernen, teils liegenden Fensterformate mit anthrazitfarbenen Rahmen sowie die jeweils in Grau abgesetzten Anbauteile – der großzügige Querhauserker sowie der abgestützte Balkon.
Dass es sich um einen Grundriss mit drei Kinderzimmern handelt, merkt man im ersten Moment gar nicht, denn das ursprünglich geplante Arbeitszimmer wurde kurzerhand als Kinderzimmer umfunktioniert. Dadurch bietet das Haus mit drei Kinderzimmern eine optimale Raumnutzung und passt sich flexibel an die Bedürfnisse einer wachsenden Familie an.
Im Innenraum dominieren Holz, Dunkelgrau und Weiß – eine Kombination, die gleichermaßen Schick und Wärme verbreitet. Die offene Küche mit angrenzendem Essbereich bildet das kommunikative Zentrum des Hauses. Große Fensterfronten sorgen für ein lichtdurchflutetes Ambiente und einen direkten Zugang zum Garten. Der Wohnbereich bietet mit einem modernen Kamin eine gemütliche Atmosphäre für entspannte Abende.
Das Obergeschoss überzeugt mit durchdachter Raumaufteilung. Neben dem großzügigen Elternschlafzimmer finden sich hier drei Kinderzimmer sowie ein großes Familienbad. Die moderne Badausstattung mit hochwertigen Materialien und durchdachter Beleuchtung schafft eine stilvolle Wohlfühloase.
Auch die Außenansicht des Hauses zeigt eine gelungene Kombination aus Funktionalität und Design. Die kontrastreiche Fassadengestaltung und die klaren Linien verleihen dem Haus mit drei Kinderzimmern einen modernen, aber dennoch zeitlosen Charakter. Durchdachte Details, wie die überdachte Terrasse und der Balkon, erweitern den Wohnraum ins Freie und schaffen einen fließenden Übergang zwischen Innen- und Außenbereich.
Dieses Haus mit drei Kinderzimmern vereint zeitgemäße Architektur mit maximalem Wohnkomfort und bietet ideale Bedingungen für Familien, die Wert auf durchdachte Planung, hochwertige Materialien und eine ansprechende Gestaltung legen.
Haus anfragenZusatzinfo
Für Anfragen zu diesem Kundenhaus verwenden Sie bitte die interne Bezeichnung LUXHAUS-22954.
Haus anfragen








