

Satteldach Landhaus 149
Kundenhaus
Modernes Satteldachhaus
Ein modernes Satteldachhaus, das innen wie außen harmonisch in einer Farbwelt aus Creme und Grau gestaltet ist und durch den bewussten Einsatz von Kontrasten zwischen hell und dunkel sowie modern und klassisch überzeugt.
Das flachgeneigte moderne Satteldachhaus beeindruckt durch seinen einladenden Eingangsbereich, der durch einen versetzten Kubus architektonisch aufgewertet wird. In diesem Kubus befindet sich das Arbeitszimmer, wodurch ein geschützter Eingangsbereich mit eigenem Charakter entsteht.
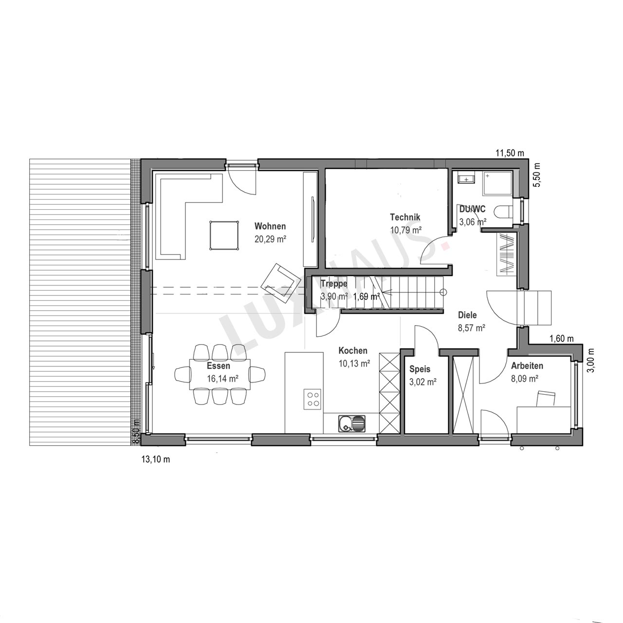
Beim Betreten des Hauses gelangt man in eine großzügige Diele. Von hier aus führt eine geradläufige Treppe ins Obergeschoss oder in den offenen Koch- und Essbereich, der sich durch große Fensterfronten zum Garten hin öffnet. Der Essbereich und das Wohnzimmer bieten direkten Zugang zur Terrasse, was das Wohnerlebnis mit viel Licht und einer fließenden Verbindung zwischen Innen- und Außenraum bereichert.
Im Erdgeschoss befinden sich zudem der Technikraum sowie ein multifunktionaler Bereich mit Dusch-WC und Arbeitszimmer – flexibel nutzbar als Gäste- oder Homeoffice-Bereich.
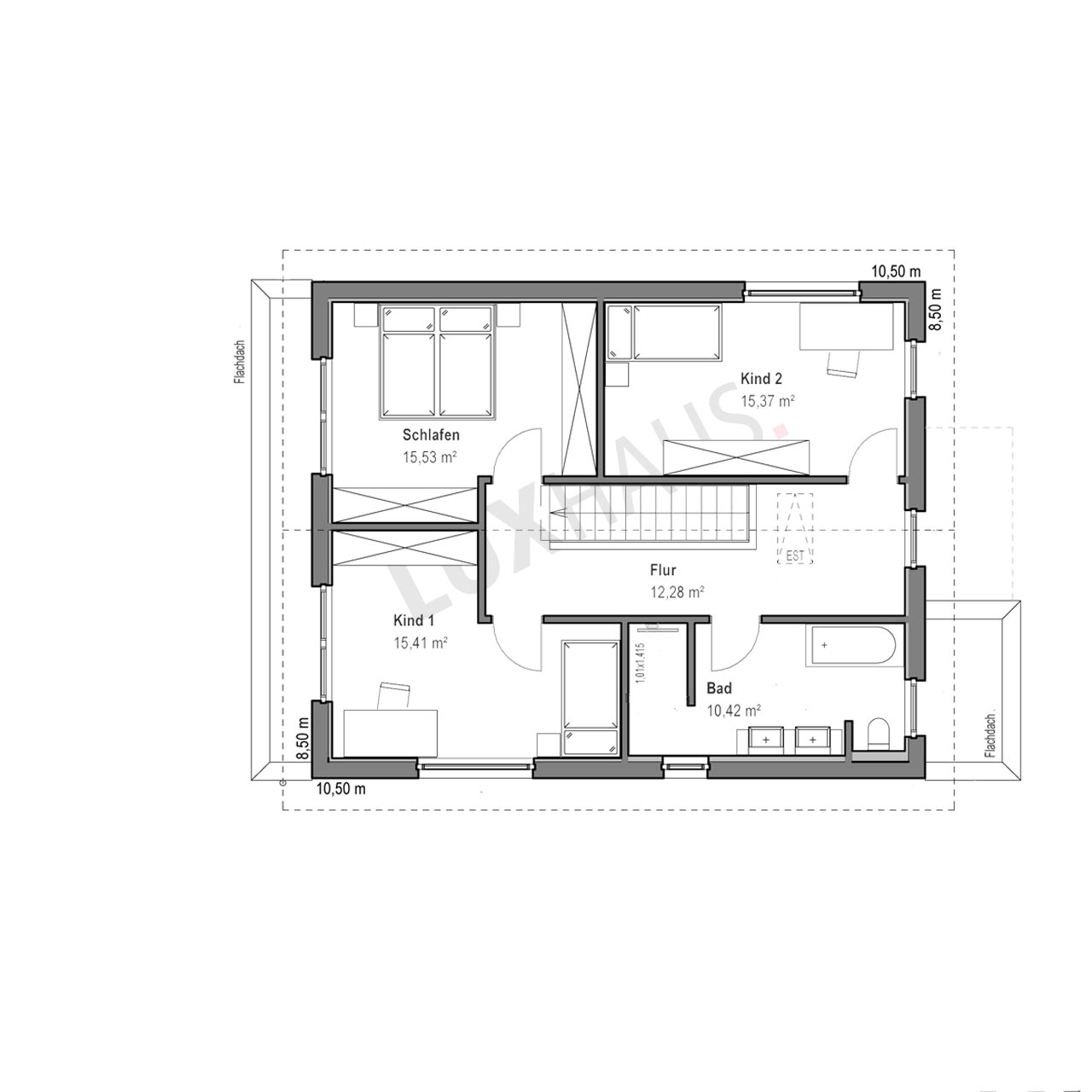
Das Obergeschoss beherbergt zwei geräumige Kinderzimmer, das Elternschlafzimmer sowie ein großes Gemeinschaftsbad mit zwei Waschbecken, Dusche und Badewanne.
Die Innenraumgestaltung des modernen Satteldachhauses setzt auf eine warme und einladende Atmosphäre. Hochwertige Holzoberflächen in Honigtönen, kombiniert mit weißen und cremefarbenen Elementen, schaffen ein harmonisches Gesamtbild, das Modernität und Gemütlichkeit vereint.
Ein besonderes Highlight dieses Hauses ist seine Zertifizierung durch das Sentinel-Institut für Wohngesundheit. Dieses unabhängige Institut stellt durch strenge Vorgaben und Grenzwerte sicher, dass die Raumluftqualität optimiert wird – ein entscheidender Beitrag zu einem gesunden Wohnklima.
Haus anfragenZusatzinfo
Für Anfragen zu diesem Kundenhaus verwenden Sie bitte die interne Bezeichnung LUXHAUS-28521.
Haus anfragen







