

Satteldach Landhaus 162
Kundenhaus
Satteldachhaus mit Keller
Ein modernes Satteldachhaus mit Garage und Keller, das alleine schon durch die dunkelgraue Fassade ein echter Eyecatcher ist. Der klare Baukörper kombiniert klassische Dachform mit zeitgemäßer Linienführung und fügt sich dennoch harmonisch in das ruhige Wohnumfeld ein. Großzügige Fensterflächen sorgen für helle Räume und schaffen eine natürliche Verbindung zwischen Innen- und Außenbereich.
Diese moderne Ästhetik zieht sich auch im Inneren des Hauses durch, wo naturbelassenes Holz, weiße Wände und dunkle Akzente in Anthrazit ein stimmiges, zeitloses Gestaltungskonzept ergeben. Der offene Wohn-Ess-Kochbereich bietet mit rund 60 Quadratmetern viel Raum für gemeinsames Leben. Die hochwertige Küche mit Kochinsel ist funktional integriert und wird durch das massive Holzesstisch-Ensemble stilvoll ergänzt.
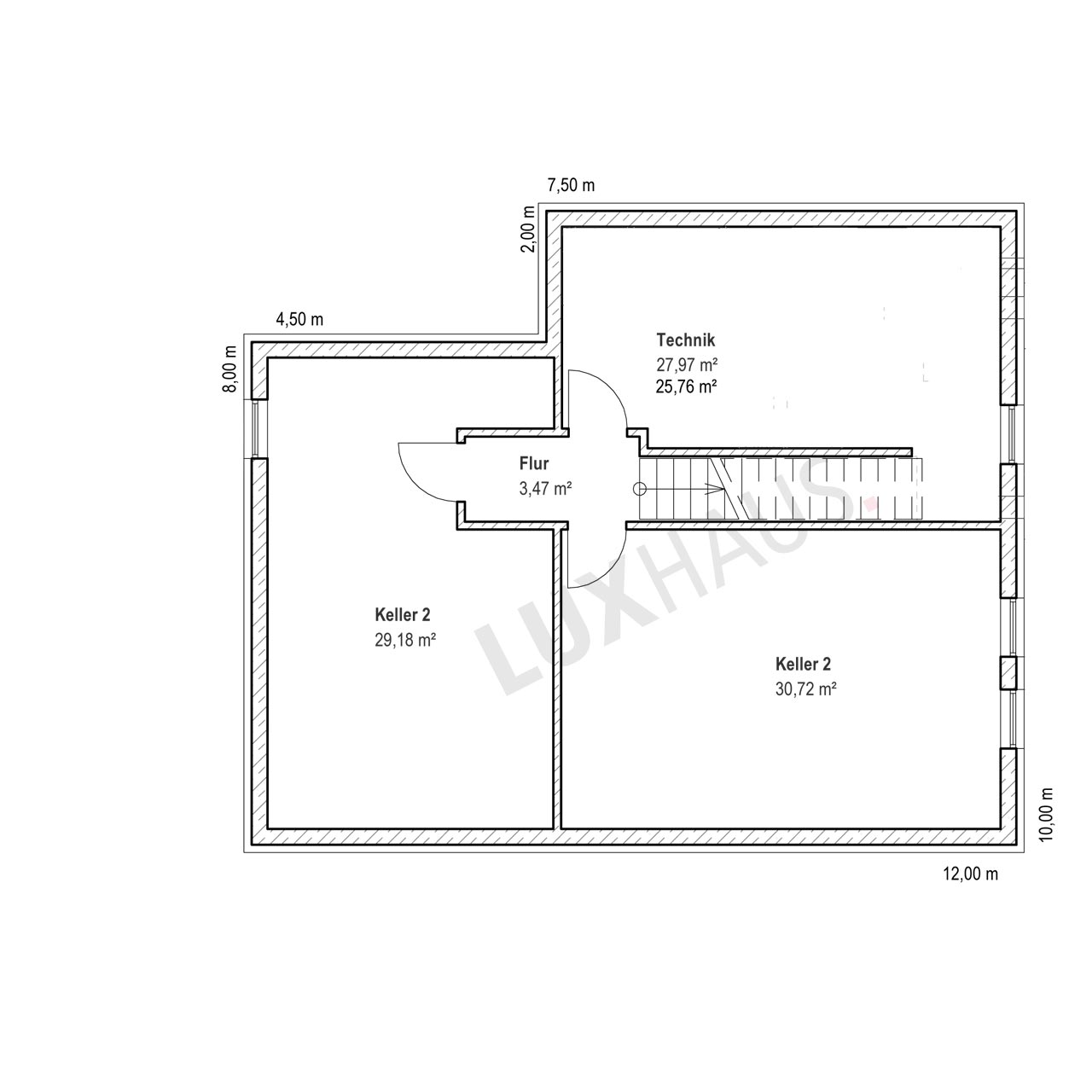
Das moderne Satteldachhaus mit Garage und Keller beherbergt eine vierköpfige Familie. Der Kellerbereich bietet nicht nur Platz für die Haustechnik, sondern mit zwei großen Räumen auch reichlich zusätzlichen Stauraum – ideal für Hobbys, Vorräte oder Homeoffice.
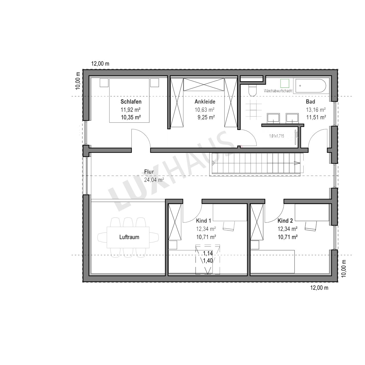
Im Erdgeschoss liegen direkt am Eingang WC, Abstellraum sowie eine separate Garderobennische. Über die geradlinige Treppe gelangt man ins Obergeschoss, das durch einen zentralen Flur erschlossen wird. Zwei gleich große Kinderzimmer, das Gemeinschaftsbad sowie der separate Elternbereich mit Schlafzimmer und Ankleide sind hier funktional und dennoch wohnlich angeordnet. Ein Highlight ist der Luftraum über dem Esszimmer, der ein großzügiges Raumgefühl vermittelt und den Wohnbereich noch offener wirken lässt.
Mit durchdachter Raumaufteilung, klarer Architektur und einem stimmigen Design überzeugt dieses Satteldachhaus mit Garage und Keller auf ganzer Linie – ein Beispiel dafür, wie modernes Wohnen, Nachhaltigkeit und hochwertige Bauweise perfekt zusammenspielen.
Haus anfragenZusatzinfo
Für Anfragen zu diesem Kundenhaus verwenden Sie bitte die interne Bezeichnung LUXHAUS-28455.
Haus anfragen








