

Satteldach Landhaus 178
Kundenhaus
Haus mit Einliegerwohnung im Keller
Dieses großzügige Einfamilienhaus mit Einliegerwohnung im Keller vereint zeitgemäße Architektur mit intelligenter Raumaufteilung und hochwertiger Ausstattung im modernen Satteldach-Stil. Die klare Linienführung der Fassade, kombiniert mit kontrastreichen Farbakzenten, verleiht dem Gebäude eine elegante, städtische Anmutung – ideal für anspruchsvolle Bauherren, die Wert auf Design und Funktionalität legen.
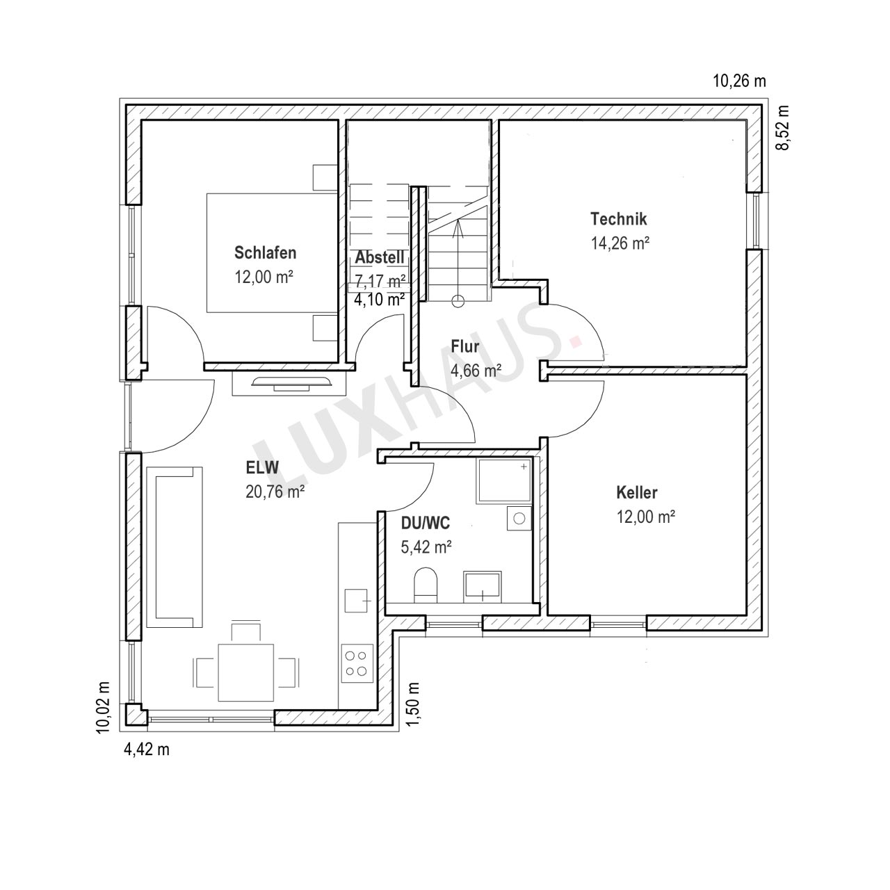
Die komfortable Einliegerwohnung im Keller ist ein echtes Highlight des Hauses. Dank der leichten Hanglage entsteht ein helles Souterrain mit separatem Zugang, das sich flexibel nutzen lässt – sei es als Wohnraum für Angehörige, zur Vermietung oder als Homeoffice-Bereich mit Rückzugsmöglichkeit. Die Einheit bietet ein Schlafzimmer, ein modernes Duschbad sowie einen großzügigen Wohn-Essbereich mit Küchenanschluss.
Im Erdgeschoss schafft der im Untergeschoss untergebrachte Haustechnikbereich zusätzlichen Platz für das tägliche Familienleben. Hier dominieren Offenheit und Kommunikation: Der weitläufige Wohn- und Essbereich mit direktem Zugang zur Küche und angrenzender Speisekammer wird zum zentralen Treffpunkt. Ergänzt wird das Raumangebot durch ein separates Gäste-WC sowie ein flexibel nutzbares Zimmer – ideal als Arbeits- oder Gästezimmer.
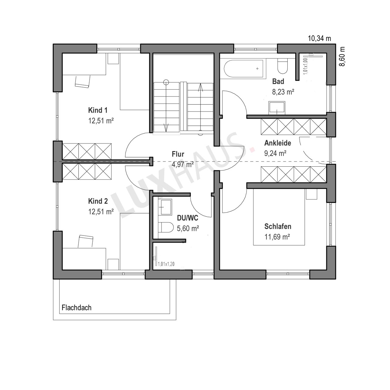
Im Obergeschoss steht die klare Trennung von Kinder- und Elternbereich im Fokus. Zwei gleich große Kinderzimmer mit zugehörigem Bad bieten ausreichend Rückzugsraum für den Nachwuchs. Der Elternbereich überzeugt mit durchdachter Funktionalität: Schlafzimmer, Ankleide und Bad sind als abgeschlossene Einheit gestaltet und sorgen für Privatsphäre und Komfort.
Insgesamt zeichnet sich dieses Einfamilienhaus mit Einliegerwohnung im Keller durch eine hochwertige Bauweise, energieeffiziente Planung und eine durchdachte Raumaufteilung aus – abgestimmt auf die Bedürfnisse moderner Familien, die Wert auf Flexibilität und nachhaltiges Wohnen legen.
Haus anfragenZusatzinfo
Für Anfragen zu diesem Kundenhaus verwenden Sie bitte die interne Bezeichnung LUXHAUS-28001.
Haus anfragen








