

Satteldach Landhaus 192
Kundenhaus
Zweigeschossiges Haus mit Satteldach
Dieses Satteldachhaus mit zwei Vollgeschossen überzeugt durch eine klare, zeitlose Architektursprache und eine durchdachte Raumaufteilung. Die Kombination aus weißer Putzfassade und anthrazitfarbenen Fenstern und Dachflächen verleiht dem Gebäude eine moderne, kontrastreiche Optik. Die symmetrisch angeordneten Fenster unterstreichen den harmonischen Charakter dieses Hauses, das durch ein Querhaus zusätzlich an Struktur gewinnt.
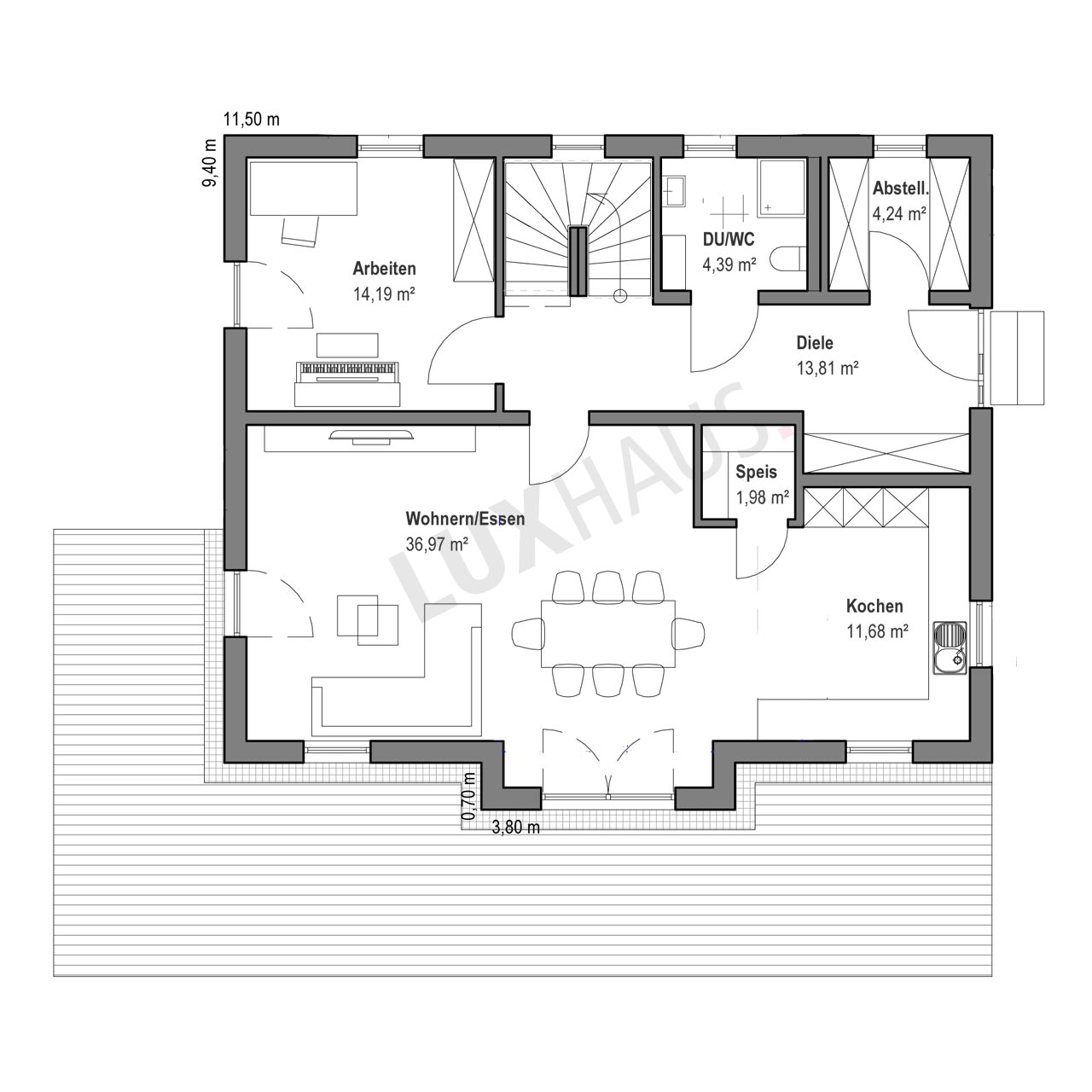
Das Erdgeschoss ist geprägt von einem großzügigen Wohn- und Essbereich mit direktem Zugang zum Garten über eine doppelflüglige Glastür. Die Küche ist geschickt abtrennbar und bietet gleichzeitig kurze Wege zum angrenzenden Vorratsraum. Die Diele bildet einen repräsentativen Empfangsbereich mit viel Stauraum und Zugang zu einem zusätzlichen Arbeitszimmer sowie einem Gäste-WC mit Dusche.
Im Obergeschoss zeigen sich die Vorteile der zwei Vollgeschosse mit Satteldach besonders deutlich: Ohne Dachschrägen stehen voll nutzbare Räume zur Verfügung – ideal für Familien mit hohem Platzbedarf. Neben dem großzügigen Elternschlafzimmer mit direkt anschließender Ankleide bietet das Obergeschoss ein komfortables Familienbad sowie zwei weitere Räume, die als Kinderzimmer oder Hobbyräume genutzt werden können.
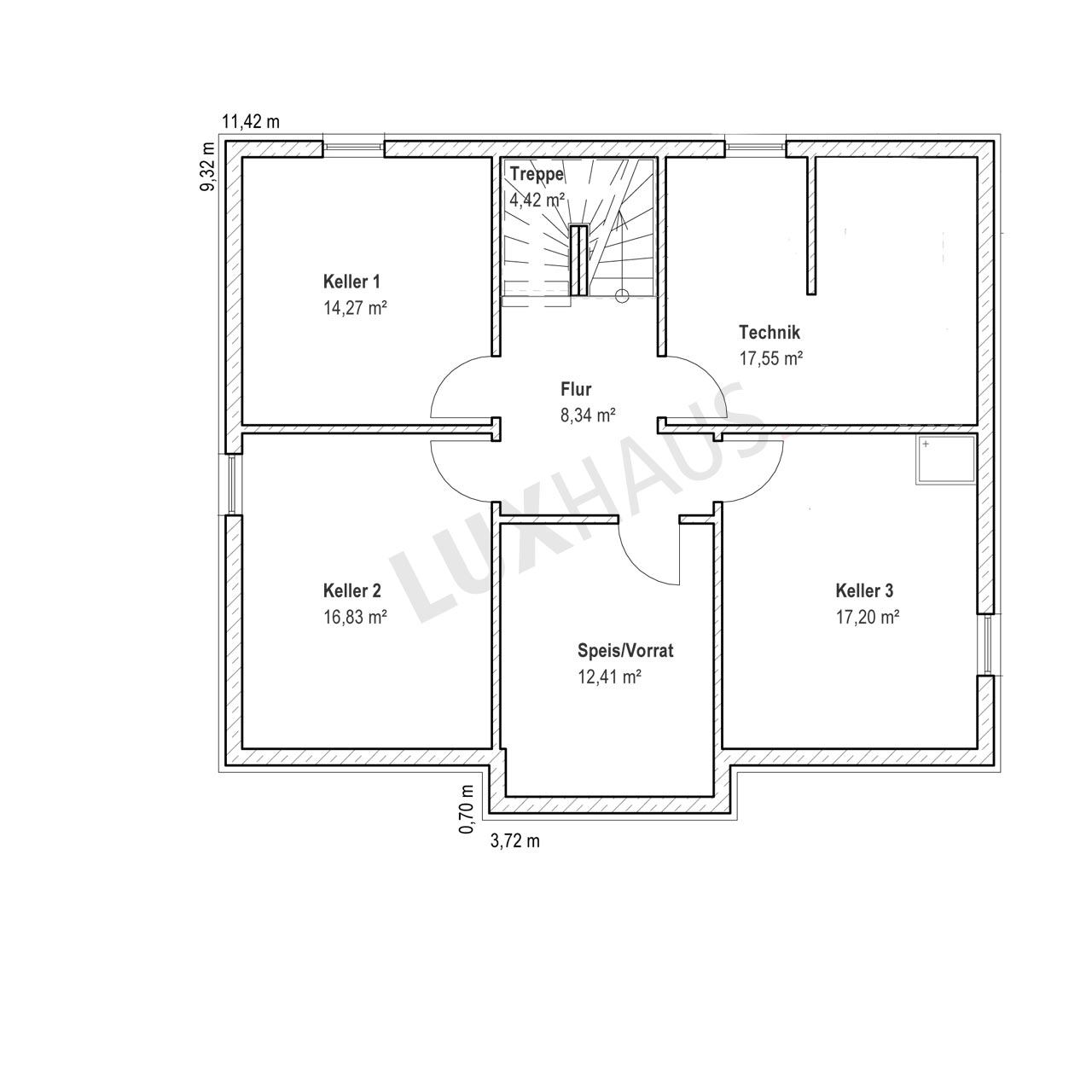
Der Keller rundet das Raumangebot funktional ab: Technikraum, Vorratskammer und drei große Kellerräume bieten vielseitige Nutzungsoptionen – von Hauswirtschaft über Lager bis hin zu Freizeitgestaltung.
Insgesamt vereint dieses Haus Wohnkomfort, Funktionalität und ein klares architektonisches Konzept. Die durchgehende Gestaltung im Innenbereich mit warmen Holztönen, hellen Oberflächen und hochwertigen Materialien spiegelt die Wertigkeit des gesamten Baukonzepts wider. Ein gelungenes Beispiel für ein Satteldachhaus mit zwei Vollgeschossen, das modernes Design und Alltagstauglichkeit ideal miteinander verbindet.
Haus anfragenZusatzinfo
Für Anfragen zu diesem Kundenhaus verwenden Sie bitte die interne Bezeichnung LUXHAUS-27773.
Haus anfragen








