

Satteldach Landhaus 196
Kundenhaus
Einfamilienhaus mit Veranda
Das Einfamilienhaus mit Veranda beeindruckt durch seine moderne und zugleich zeitlose Architektur. Die weiß-rote Putzfassade verleiht dem Gebäude Frische und Charakter, während dunkle Fassadenelemente gezielt Kontraste setzen. Die symmetrische Fensteranordnung bringt optische Ruhe ins Gesamtbild – ein durchdachtes Zusammenspiel aus Design, Funktionalität und Ästhetik.
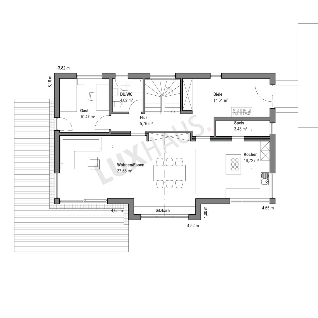
Der Grundriss dieses individuell geplanten Architektenhauses bietet großzügige Flächen und eine klare Raumstruktur. Große Fenster im offenen Wohn-Essbereich schaffen lichtdurchflutete Räume, die den Blick in den Garten freigeben und gleichzeitig den Innenraum mit natürlichem Licht versorgen. Die angrenzende Küche überzeugt durch Funktionalität und modernes Design – mit zentraler Kochinsel und viel Stauraum.
Im Dachgeschoss befinden sich neben dem Elternschlafzimmer mit Ankleide und Badezimmer drei gleichwertige Kinderzimmer, die flexibel nutzbar sind. Ergänzt wird die Ebene durch ein weiteres Duschbad und einen Abstellraum. Der Keller bietet mit Räumen für Technik, Hobby, Arbeiten und Vorrat zusätzlichen Raum für die individuelle Nutzung.
Besonders hervorzuheben ist die überdachte Veranda, die den Übergang vom Wohnraum zum Außenbereich bildet. Sie erweitert den Wohnraum ins Freie und schafft eine ideale Fläche für entspannte Stunden im Freien – ein echtes Plus für Familienalltag, Freizeit und Gästeempfang.
Das Einfamilienhaus mit Veranda steht exemplarisch für die LUXHAUS Philosophie: individuelle Planung, höchste Ausführungsqualität und ein Zuhause, das mit durchdachter Architektur und klaren Linien überzeugt.
Haus anfragenZusatzinfo
Für Anfragen zu diesem Kundenhaus verwenden Sie bitte die interne Bezeichnung LUXHAUS-22814.
Haus anfragen








