

Satteldach Landhaus 200
Kundenhaus
Satteldachhaus mit Flachdachanbau
Ein klassisches Satteldachhaus mit Flachdachanbau, der nicht nur für mehr Platz, sondern auch für eine reizvolle Terrassensituation sorgt. Die klare Architektursprache wird durch die helle Putzfassade mit weißen Fenstern betont, während das anthrazitfarbene Dach für einen stilvollen Kontrast sorgt. Die Kombination aus traditionellem Satteldach mit Flachdachanbau ermöglicht eine klare Zonierung und verleiht dem Gebäude ein modernes, gleichzeitig aber zeitloses Erscheinungsbild.
Im Erdgeschoss überzeugt das Haus mit einem großzügig geschnittenen, offenen Wohn-Ess-Kochbereich. Der Essbereich im Flachdachanbau ist durch raumhohe Verglasungen lichtdurchflutet und bietet direkten Zugang zur Terrasse – ein idealer Ort für gesellige Stunden im Freien. Die Küche ist funktional gestaltet, mit hochwertigen Einbauelementen und viel Stauraum. Angrenzend befinden sich Speisekammer, Technikraum sowie ein Hauswirtschaftsraum – funktional durchdacht und auf kurzen Wegen erreichbar.
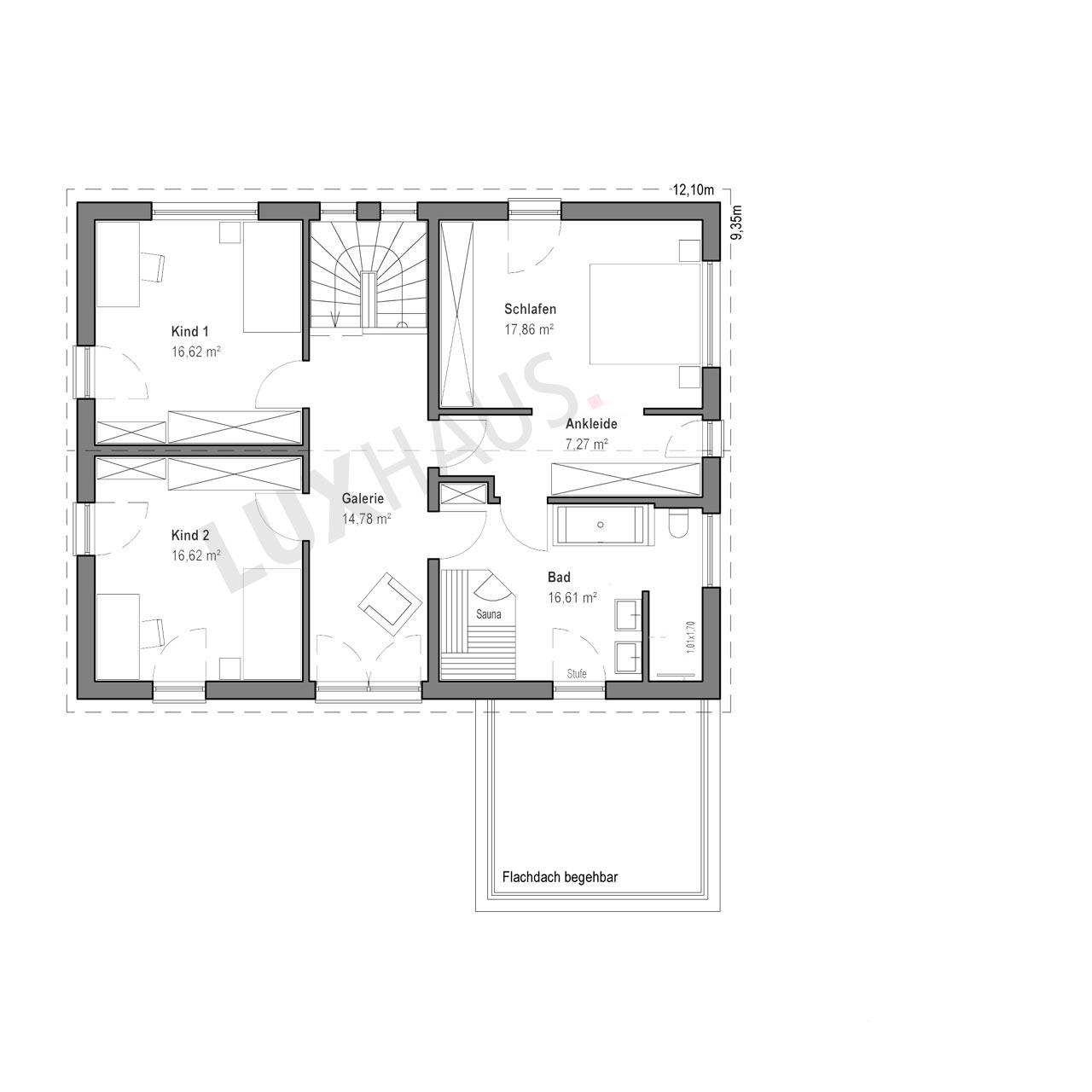
Im Obergeschoss setzt sich das durchdachte Raumkonzept fort: Zwei gleich große Kinderzimmer, ein großzügiges Schlafzimmer mit Ankleidebereich sowie ein Wellnessbad mit Sauna bilden eine stimmige Einheit. Helle Farben, warme Holzelemente und gezielt gesetzte Farbakzente schaffen eine angenehme, wohnliche Atmosphäre im gesamten Innenraum. Besonders hervorzuheben ist der direkte Zugang vom Bad zur begehbaren Dachterrasse, die dem Flachdachanbau zusätzliche Aufenthaltsqualität verleiht.
Diese architektonisch präzise geplante Lösung vereint klassische Dachform mit modernem Anbau – ein Beispiel für die individuelle Gestaltungskompetenz von LUXHAUS.
Haus anfragenZusatzinfo
Für Anfragen zu diesem Kundenhaus verwenden Sie bitte die interne Bezeichnung LUXHAUS-25109.
Haus anfragen







