

Satteldach Landhaus 207
Kundenhaus
Satteldachhaus mit 200 qm
Ein modernes Satteldachhaus mit flacher Dachneigung und hohem Kniestock überzeugt hier durch eine stimmige Architektur, die Funktionalität, Ästhetik und Wohnqualität vereint. Die klar strukturierte Fassadengestaltung wird durch natürliche Holzelemente und den harmonisch integrierten, holzverkleideten Anbau aufgelockert. Diese Kombination sorgt für eine freundliche und einladende Ausstrahlung. Großzügige und abwechslungsreiche Fensterformate verleihen dem Gebäude Dynamik und unterstreichen die moderne Architektursprache.
Im Inneren setzt sich das Gestaltungskonzept fort: Holz und schwarze Akzente schaffen im gesamten Wohnbereich eine behagliche, gleichzeitig moderne Atmosphäre. Der offen gestaltete Koch-, Ess- und Wohnbereich ist dank der großen Fensterflächen lichtdurchflutet und bietet viel Platz für das tägliche Familienleben. Die hochwertige Einbauküche fügt sich harmonisch in das Gestaltungskonzept ein und wird durch ein stilvolles Esszimmer ergänzt. Im Wohnzimmer schafft eine gemütliche Sofalandschaft Raum für Rückzug und Entspannung.
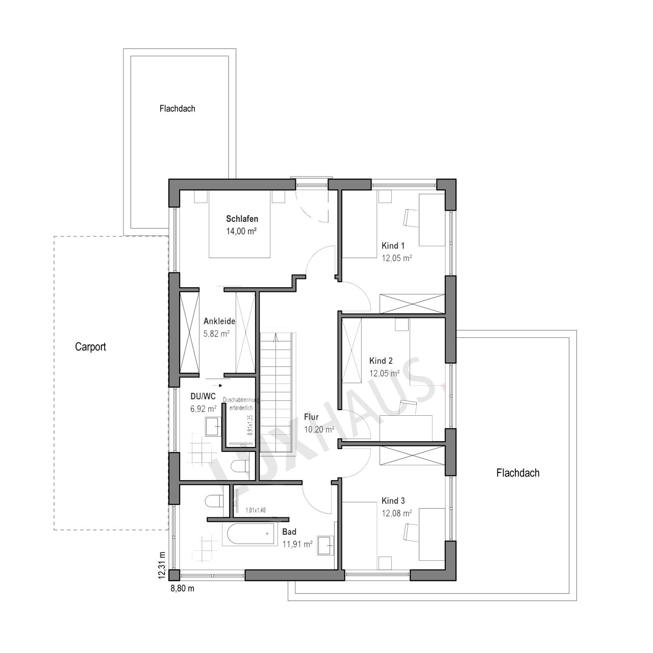
Die Diele empfängt Bewohner und Gäste mit einem großzügigen, lichtdurchfluteten Eingangsbereich. Über eine massive Holztreppe mit klarem Design gelangt man ins Obergeschoss, das sich ebenfalls durch eine durchdachte Raumaufteilung auszeichnet. Hier befinden sich drei nahezu gleich große Kinderzimmer, ein Elternschlafzimmer mit Ankleide sowie ein komfortables Familienbad und ein separates Duschbad.
Der Keller bietet mit drei großen Räumen und einem separaten Technikraum zusätzliche Stau- und Nutzungsmöglichkeiten – von Hauswirtschaft über Hobby bis Lagerung.
Dieses Satteldachhaus mit etwas über 200 qm Wohnfläche bietet eine gelungene Mischung aus Offenheit, Komfort und modernem Wohnstil. Die durchgängige Material- und Farbgestaltung sorgt für eine ruhige, elegante und zugleich wohnliche Atmosphäre, die sich über alle Etagen hinweg spürbar zeigt.
Haus anfragenZusatzinfo
Für Anfragen zu diesem Kundenhaus verwenden Sie bitte die interne Bezeichnung LUXHAUS-26259.
Haus anfragen








