

Satteldach Landhaus 223
Kundenhaus
Mehrgenerationenhaus Allgäu
Ein Bauernhof für Generationen im Allgäu – das klingt nicht nur romantisch, sondern ist gleichzeitig ein überzeugender Beweis für die planerische und handwerkliche Kompetenz von LUXHAUS. In diesem Projekt wurde ein Mehrgenerationenhaus im Allgäu realisiert, das auf besondere Weise Tradition und Moderne verbindet.
Die Herausforderung bestand darin, eine gelungene Bestandserweiterung umzusetzen und die vorhandene Substanz mit einem Neubau harmonisch zu kombinieren. Die Bauherren legten dabei großen Wert auf die Verbindung von alt und neu sowie auf den Erhalt des regionaltypischen Allgäuer Baustils. Das Ergebnis ist ein Haus, das sich durch seine Gestaltung perfekt in die landschaftliche Umgebung einfügt.
Im Inneren zeigt sich das Mehrgenerationenhaus im Allgäu wohnlich und atmosphärisch. Besondere Akzente setzen zahlreiche Einbauten aus originalen, historischen Balkender ehemaligen Scheune, die dem neuen Anbau weichen musste. Diese liebevollen Details verleihen dem Haus seinen individuellen Charakter und unterstreichen die Wertschätzung für das Bestehende.
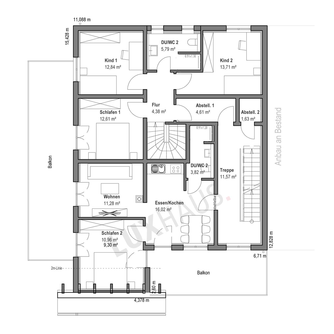
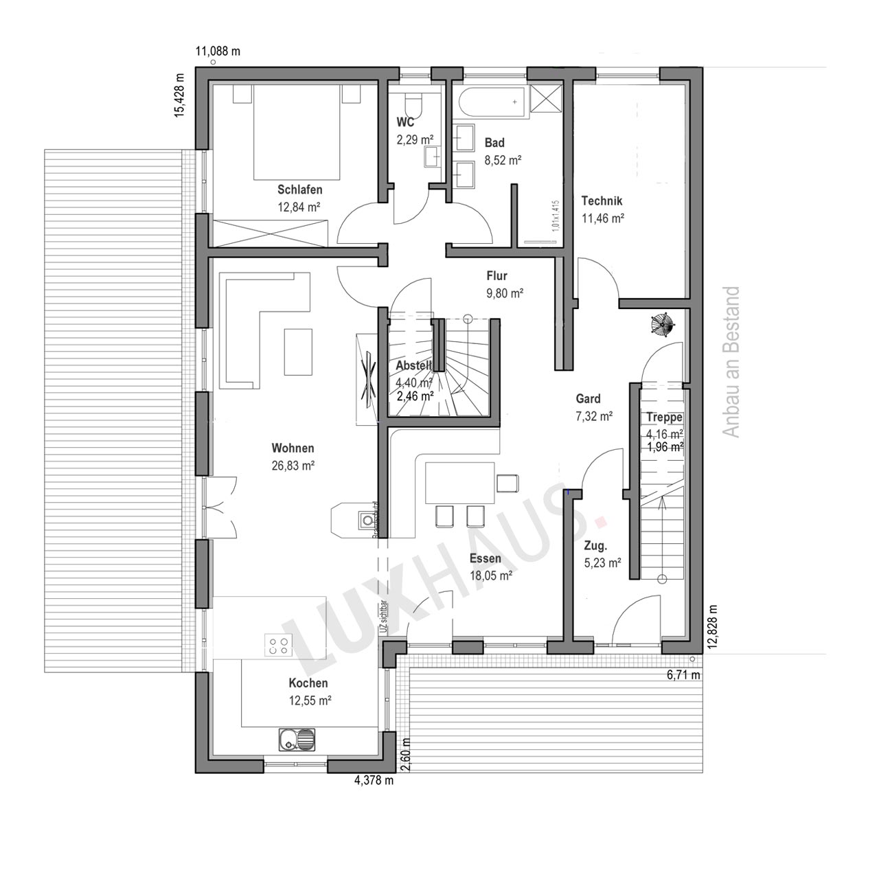
Die durchdachte Raumaufteilung unterstützt das generationsübergreifende Zusammenleben. Im Erdgeschoss befindet sich der großzügige Wohn-, Ess- und Kochbereich, der das kommunikative Herzstück bildet. Ein Büro, ein Schlafzimmer mit angrenzendem Bad sowie ein separates Gäste-WC runden das Raumangebot auf dieser Ebene ab. Im Obergeschoss sorgen zwei Kinderzimmer, ein weiteres Schlafzimmer und ein Duschbad für genügend Rückzugsmöglichkeiten. Eine zusätzlich integrierte Einliegerwohnung ermöglicht eigenständiges Wohnen, sei es für Angehörige oder später auch als Wohnraum im Alter.
Neben der Großzügigkeit der Räume überzeugt dieses Mehrgenerationenhaus im Allgäu mit modernster Technik, die dank der energieeffizienten Climatic-Wand-Technologie nicht nur für Komfort, sondern auch für nachhaltige Energieeinsparungen sorgt.
So entstand ein Haus, das mit viel Liebe zum Detail, Funktionalität und Komfort mehreren Generationen ein gemeinsames Zuhause bietet.
Haus anfragenZusatzinfo
Für Anfragen zu diesem Kundenhaus verwenden Sie bitte die interne Bezeichnung LUXHAUS-27685.
Haus anfragen








