

Satteldach Modern 164
Kundenhaus
Satteldachhaus mit Einliegerwohnung
Ein architektonisches Statement: Dieses moderne Satteldachhaus ohne Dachüberstand überzeugt durch eine außergewöhnliche Kombination aus kubischen Baukörpern und der markanten Linienführung des Satteldachs. Je nach Blickwinkel wirkt die Silhouette beinahe wie ein modernes Flachdachhaus – ein spannendes Spiel aus Reduktion und Prägnanz.
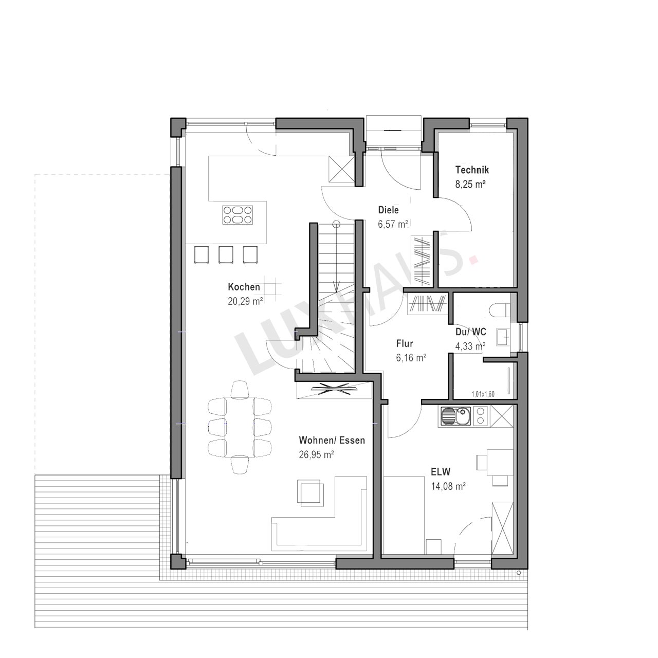
Der Verzicht auf einen Dachüberstand unterstreicht die klare und zeitgemäße Architektursprache. Im Erdgeschoss bildet der offen gestaltete Wohn-, Koch- und Essbereich das Zentrum des Hauses. Die großzügige Küche mit Küchenblock und integrierter Barlösung schafft eine harmonische Verbindung zwischen Funktionalität und Design. Großzügige Fensterflächen sorgen für helle, lichtdurchflutete Räume und einen fließenden Übergang zwischen Innen- und Außenraum.
Besonderen Mehrwert bietet die separateEinliegerwohnung, die sich ideal als Gästebereich, Homeoffice oder zur Vermietung eignet.
Ein echtes Highlight ist die überdachte Dachterrasse im Obergeschoss, welche von mehreren Räumen zugänglich ist – sowohl das Kinderzimmer, als auch die Galerie und das Schlafzimmer führen direkt hinaus. Der Wellnessfaktor wird durch das großzügige Bad mit integrierter Sauna perfekt ergänzt. Die geräumige Ankleide mit fast 14 m² rundet den Komfort auf stilvolle Weise ab.
Im gesamten Haus dominieren hochwertige Materialien, warme Naturtöne und eine harmonische Kombination aus Holz, Stein und gezielt eingesetzten Farbakzenten. Die Einrichtung unterstreicht die moderne, klare Formensprache der Architektur und schafft zugleich eine wohnliche, behagliche Atmosphäre.
Dieses moderne Satteldachhaus ohne Dachüberstand verbindet anspruchsvolle Architektur, hohe Wohnqualität und zeitloses Design auf gekonnte Weise.
Haus anfragenZusatzinfo
Für Anfragen zu diesem Kundenhaus verwenden Sie bitte die interne Bezeichnung LUXHAUS-27316.
Haus anfragen







