

Walmdach 201
Kundenhaus
Stadtvilla-Grundriss mit 200 m²
Die Stadtvilla mit 200 m² kombiniert auf elegante Weise einen modernen Flachdachanbau mit einem klassischen Walmdach-Haupthaus. Das architektonische Zusammenspiel aus klaren Linien, reduzierten Formen und durchdachten Proportionen sorgt für einen zeitlosen und zugleich zeitgemäßen Gesamteindruck. Die kontrastreiche Farbgebung aus weißem Putz und anthrazitfarbenen Flächen gliedert das Gebäude optisch und betont die verschiedenen Baukörper. Zusätzlich verleihen fein dosierte Holzelemente sowohl der Fassade als auch dem überdachten Eingangsbereich eine warme, einladende Note.
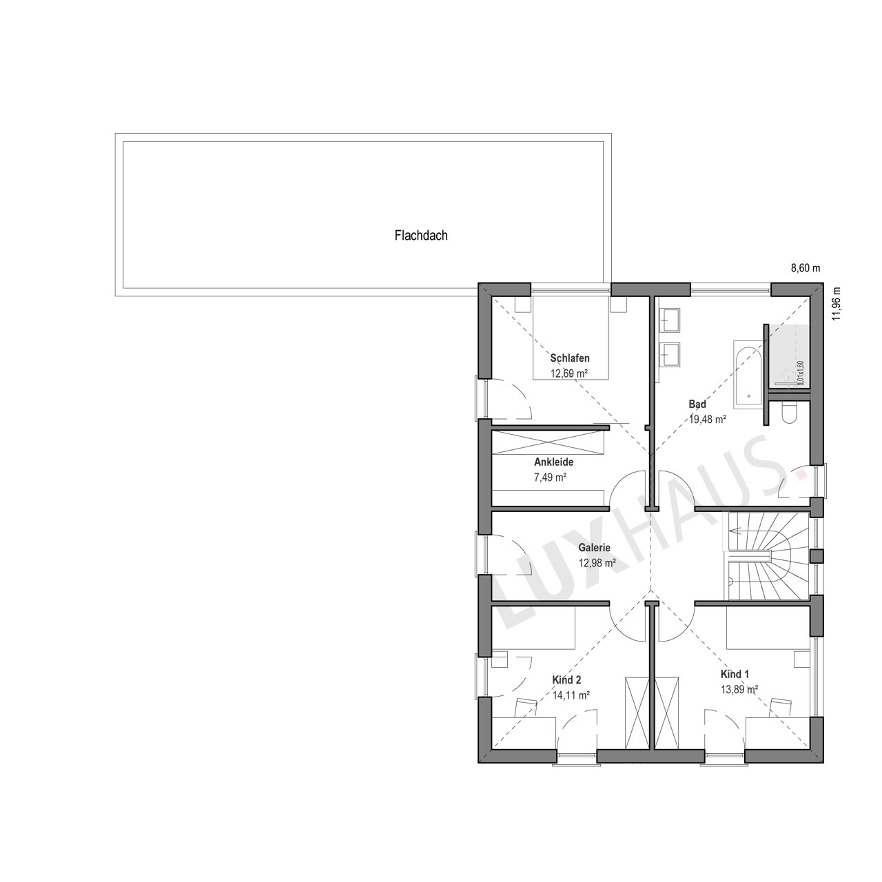
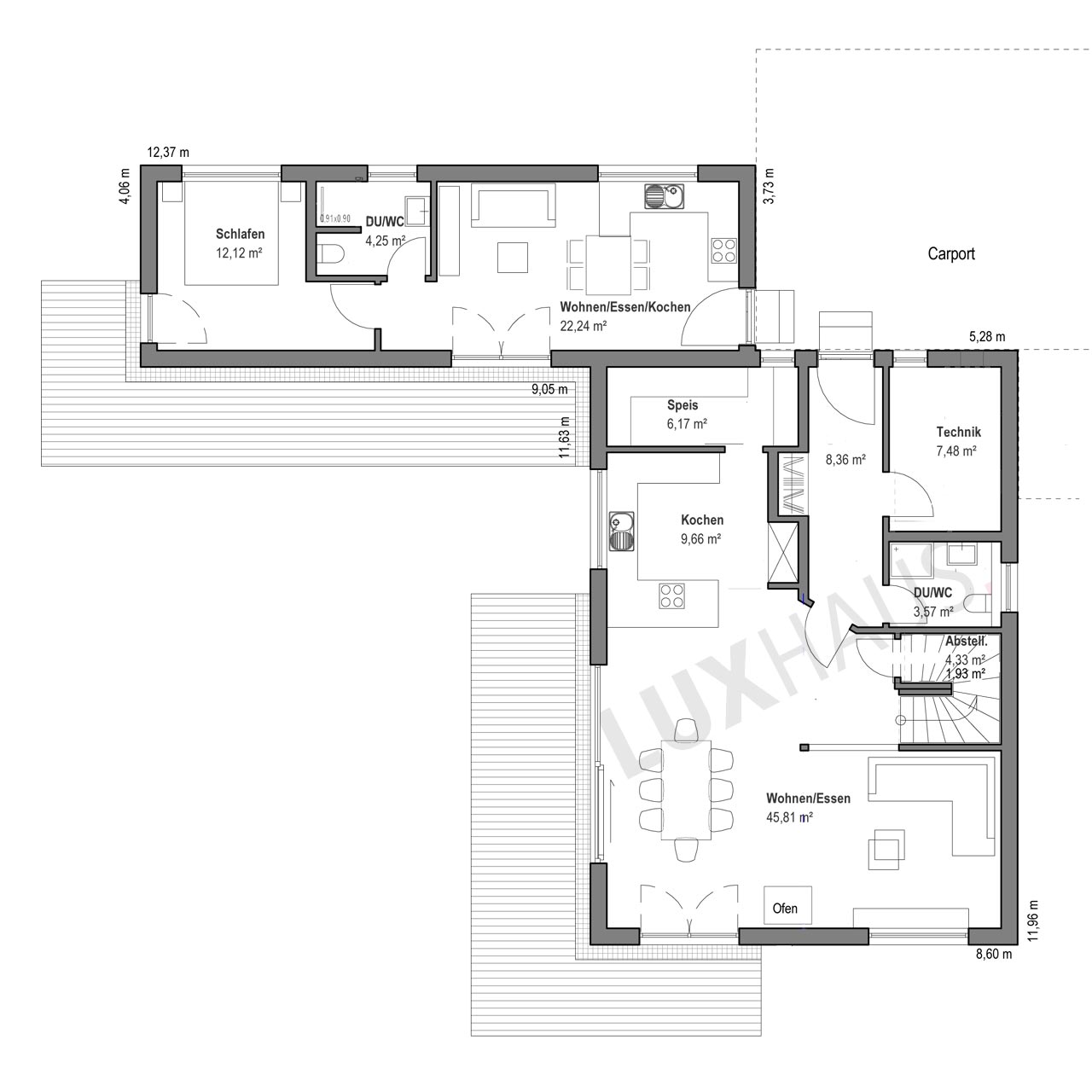
Innen zeigt sich der Stadtvilla-Grundriss mit 200 m² äußerst vielseitig. Die großzügige Wohnfläche verteilt sich geschickt auf Haupthaus und Anbau. Großzügige Verglasungen schaffen lichtdurchflutete Räume und ermöglichen fließende Übergänge zwischen Innen- und Außenraum. Der offen gestaltete Wohn-, Ess- und Kochbereich bildet das Herzstück im Erdgeschoss. Hochwertige Materialien, natürliche Holzoptik und dezente Grautöne dominieren den Innenraum und werden durch gezielte Farbakzente harmonisch ergänzt.
Im Badezimmer setzt ein leuchtendes Rot einen mutigen, modernen Akzent und bildet einen spannenden Kontrast zu den schlichten Boden- und Wandfliesen. Das Obergeschoss bietet mit Schlaf- und Kinderzimmern, Ankleide sowie einer offenen Galerie viel Platz und Rückzugsräume für die ganze Familie.
Besonders hervorzuheben ist die integrierte Einliegerwohnung im Erdgeschoss, die sich ideal als Gästebereich, Homeoffice oder als separate Wohneinheit nutzen lässt.
Der Außenbereich rundet das Konzept ab: Großzügige Terrassenflächen, der harmonisch gestaltete Garten und ein moderner Carport sorgen für hohe Aufenthaltsqualität. Die Kombination aus hochwertigen Materialien und einer klaren Architektur machen diesen Stadtvilla-Grundriss mit 200 m² zu einer architektonisch anspruchsvollen Lösung für alle, die Wert auf Design, Funktionalität und Wohnkomfort legen.
Haus anfragenZusatzinfo
Für Anfragen zu diesem Kundenhaus verwenden Sie bitte die interne Bezeichnung LUXHAUS-23149.
Haus anfragen







