

Flachdach 283
Kundenhaus
Modernes Einfamilienhaus mit Pool
Mitten in den Wiener Weinbergen gelegen, verbindet dieses moderne Einfamilienhaus mit Pool im klassischen Bauhausstil eine exklusive Lage mit modernem Design und schafft so ein ebenso repräsentatives wie einladendes Gesamtbild.
Nichts verkörpert luxuriöses Wohnen mehr als ein großzügiges, strahlend weißes Gebäude mit Pool. Dieses moderne Einfamilienhaus mit Pool beeindruckt durch seine kubische Architektur mit Flachdach und zeitlosem Chic. Es kombiniert einen idyllischen Schwimmteich mit einem mondänen Swimmingpool – eingebettet in eine traumhafte Landschaft. Die Bauherren, die durch zahlreiche Reisen und verschiedene Wohnsituationen inspiriert wurden, haben hier ihren persönlichen Wohnstil gefunden und umgesetzt. Während die äußere Gestaltung von klaren Linien und puristischem Design geprägt ist, sorgen im Innenraum helle Farben und große Fensteröffnungen für eine lichtdurchflutete, offene Atmosphäre. Der gekonnte Mix aus Antiquitäten und modernen Möbeln schafft ein stilvolles und zugleich gemütliches Ambiente.
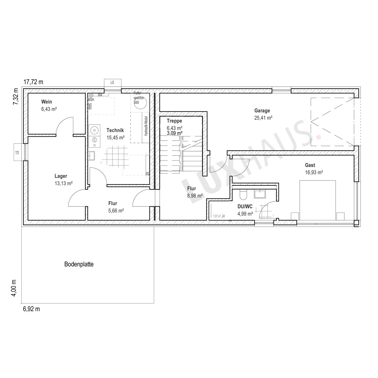
Bei der Grundrissplanung und den architektonischen Details stand der Wohnkomfort im Mittelpunkt. Ein großzügiges Wellnessbad steigert die Aufenthaltsqualität, während eine umfassende Automatisierung viele Abläufe erleichtert. Das Haus ist am Hang gelegen, wodurch das Souterrain eine praktische Nutzung als Garage, Einliegerwohnung, Lagerraum und Weinkeller ermöglicht.
Im Erdgeschoss befindet sich die großzügige Küche mit Speisekammer, die vom Wohn- und Essbereich getrennt werden kann. Ergänzt wird die Ebene durch ein flexibel nutzbares Zimmer – ideal als Büro, Gästezimmer oder privater Rückzugsort – sowie ein Dusch-WC und eine geräumige Garderobe. Das Obergeschoss dient dem privaten Rückzug und beherbergt das Schlafzimmer mit angrenzender Ankleide, das exklusive Wellnessbad, einen zusätzlichen Aufenthaltsraum sowie eine beeindruckende Dachterrasse.
Dieses moderne Einfamilienhaus mit Pool ist eine gelungene Verbindung aus zeitloser Architektur, innovativer Technik und exklusivem Wohnkomfort.
Haus anfragenZusatzinfo
Für Anfragen zu diesem Kundenhaus verwenden Sie bitte die interne Bezeichnung LUXHAUS-19313.
Haus anfragen








