

Flachdach 300
Kundenhaus
Flachdachhaus mit 300m² Wohnfläche
Modernes Flachdachhaus – Klassische Bauhausarchitektur trifft auf moderne Technik. Die graphisch anmutende Anordnung der dunkel gerahmten Fenster wirkt harmonisch und verleiht dem raffinierten Entwurf Ruhe und Prägnanz. Betont wird dieser Effekt durch die horizontalen Beleuchtungselemente, die dem großzügigen Haus eine gewisse Leichtigkeit verleihen.
Auch im Innenraum setzt sich das Konzept fort: Holz trifft auf Weiß und Grau – stets klar, stets prägnant, aber niemals kühl. Der offene Wohn- und Essbereich mit seiner großzügigen Küche bildet das Herzstück des Hauses. Ein durchdachtes Beleuchtungskonzept sorgt für eine angenehme Atmosphäre und unterstreicht das moderne Design.
Reizvoll: Während die Straßenansicht trutzig und geschlossen wirkt, öffnet sich das moderne Flachdachhaus zur Gartenseite hin zu einer großzügigen Poolanlage mit Holzdeck – ein nahtloser Übergang zwischen Wohnraum und Außenbereich.
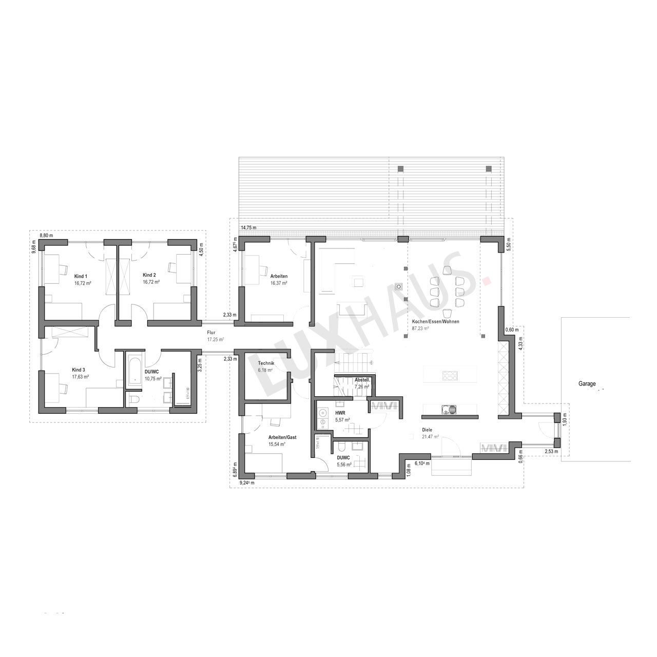
Mit einer Wohnfläche von 300 m² ist der Grundriss so konzipiert, dass sich das Haus über die Jahre flexibel an verschiedene Lebenssituationen anpassen kann – von der Familienphase über Wohnen und Arbeiten bis hin zur Phase der Pflegebedürftigkeit, in der Betreuungspersonal in einem eigenen Bereich wohnen kann.
Drei Kinderzimmer mit einem großzügigen Bad befinden sich im Erdgeschoss in einem separaten Anbau, der später als Einliegerwohnung oder zum Wohnen auf einer Ebene genutzt werden kann. Im Obergeschoss bietet die Elternsuite mit großem Schlafraum, Ankleide, Wellnessbad mit Sauna und einem Fitnessraum einen privaten Rückzugsort.
Repräsentativer Wohlfühllebensraum vom Feinsten – ein Haus, das Individualität, Flexibilität und modernes Design perfekt vereint.
Haus anfragenZusatzinfo
Für Anfragen zu diesem Kundenhaus verwenden Sie bitte die interne Bezeichnung LUXHAUS-27214.
Haus anfragen







