

Flachdach 335
Kundenhaus
Fertighaus mit Indoorpool
Dieses Bauvorhaben lässt keine Wünsche offen. Von außen besticht es durch raffiniert ineinander verschobene Kuben, die sich von der Straßenseite her eher zurücknehmen und zum Garten hin öffnen, indem der großzügige Balkon mit Stahlgeländer, von Säulen gestützt, die Terrasse überdacht. Dunkle Elemente wie Garagentor, Fallrohre, Attika und Fensterrahmen kontrastieren elegant mit der schneeweißen Fassade, bei der dunkelgraue Akzente geschickt eingesetzt wurden, um die Wirkung der Fensterflächen zu optimieren.
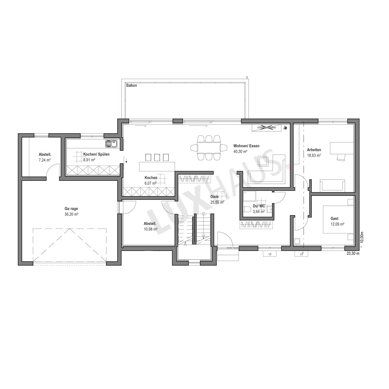
Ein Vordach sorgt für einen wettergeschützten Zugang zum Haus. Vom Flur aus gehen rechts das Arbeitszimmer, Gästezimmer und das Gäste-Dusch-WC ab und bilden einen eigenen Bereich, der ideal für Besuch ist und später auch als Einliegerwohnung abgetrennt werden kann. Links liegt ein großer Abstellraum mit Zugang zur Garage, sodass das Haus auch durch die Garage betreten werden kann. Herzstück ist der große, offene Wohn-Ess-Kochbereich mit einer zusätzlichen abgetrennten Schmutzküche. Große Fenster und ein Schiebeelement öffnen sich zum Garten.
Im Obergeschoss befinden sich zwei Kinderzimmer, eines zum Schlafen und eines zum Spielen, sowie ein Fernsehzimmer. Das WC ist separat, das Bad schließt an den Elterntrakt mit Schlafzimmer und Ankleide an.
Im Keller des Hauses haben die Bauherren eine Wellnessoase mit Fitnessraum, eigenem WC, Dampfbad und Indoorpool geschaffen. Dieses Fertighaus mit Indoorpool vereint modernes Design mit höchstem Komfort und bietet damit eine exklusive Ausstattung, die kaum zu übertreffen ist.
Zudem finden sich im Keller noch ein Abstellraum, ein Hobbyraum und der Technikraum. Der Indoorpool macht dieses Fertighaus zu einem besonderen Highlight für alle, die Erholung und Luxus im eigenen Zuhause suchen.
Im Innenraum lebt das Haus von warmen Brauntönen, Leder und Holz, akzentuiert durch Schwarz und Weiß. So entsteht eine wohnliche, einladende und dennoch elegante Atmosphäre, die das Fertighaus mit Indoorpool zu einem Ort des Wohlbefindens macht.
Haus anfragenZusatzinfo
Für Anfragen zu diesem Kundenhaus verwenden Sie bitte die interne Bezeichnung LUXHAUS-27613.
Haus anfragen








