

Pultdach Klassik 157
Kundenhaus
Modernes Haus mit Pool
Bereits bei der Annäherung vermittelt dieses moderne Haus mit Pool einen einladenden Eindruck. Die klare Linienführung und die harmonische Kombination aus hellen Putzflächen und warmen Natursteinelementen verleihen der Architektur einen zeitlosen und eleganten Charakter.
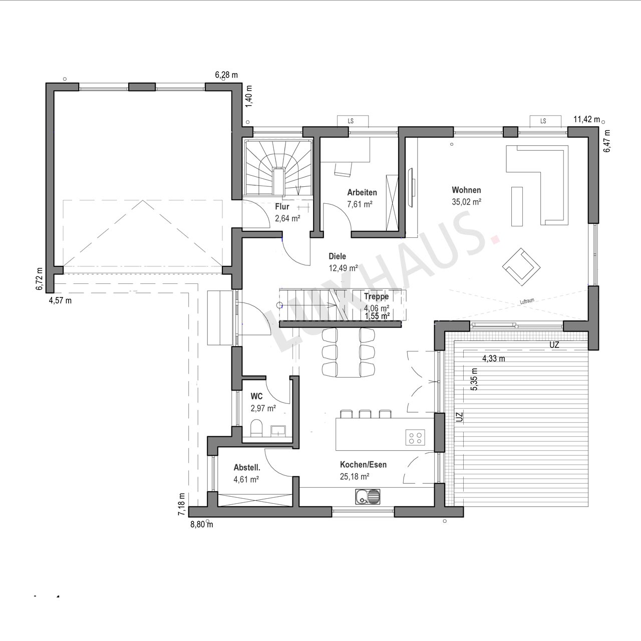
Im Innenraum setzt sich das anspruchsvolle Design konsequent fort: Puristische Elemente treffen auf hochwertige Materialien. Ein besonderes Highlight ist die mit Leder bezogene Treppe, die als Designelement einen eleganten Akzent setzt. Der rustikale Parkettboden im Used-Look sorgt für eine warme und behagliche Atmosphäre, die den modernen Stil perfekt ergänzt.
Die offene Küche mit Kochinsel ist ein funktionaler Mittelpunkt des Hauses, der modernes Design mit wohnlicher Gemütlichkeit verbindet. Großzügige Fensterflächen schaffen lichtdurchflutete Räume und ermöglichen einen nahtlosen Übergang zur Terrasse und dem Garten.
Ein besonderes Highlight ist der Außenbereich: Die stilvoll gestaltete Terrasse und der Pool verleihen dem Garten ein mediterranes Flair und laden zum Entspannen ein. Das Zusammenspiel aus Architektur, Landschaft und Wasser verwandelt dieses moderne Haus mit Pool in einen echten Wellnessort, in dem Erholung und Komfort im Mittelpunkt stehen.
Haus anfragenZusatzinfo
Für Anfragen zu diesem Kundenhaus verwenden Sie bitte die interne Bezeichnung LUXHAUS-25081.
Haus anfragen








