

Pultdach Klassik 220
Kundenhaus
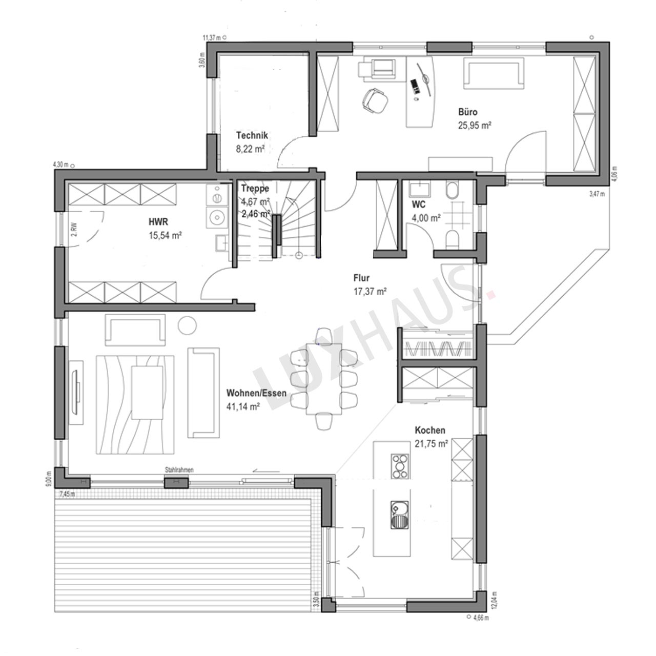
Hausgrundriss mit Büro
Dieses moderne Haus mit Bürotrakt verbindet stilvolles Wohnen mit funktionalem Arbeiten unter einem Dach. Der Grundriss des Hauses mit Büro ist so gestaltet, dass eine klare Trennung zwischen beruflichen und privaten Bereichen gewährleistet ist. Der Bürotrakt verfügt über einen eigenen Eingang, bleibt jedoch durch eine Verbindungstür mit dem Haupthaus verbunden – ideal für die professionelle Betreuung von Geschäftskunden, ohne die Wohnatmosphäre zu beeinträchtigen.
Das Herzstück des Hauses bildet der offene Essbereich, um den sich Wohn- und Kochbereich harmonisch gruppieren. Das Haus setzt auf eine moderne Bauhausarchitektur, die großzügige, lichtdurchflutete Räume schafft. Diese ermöglichen eine perfekte Kombination aus Wohnen und Arbeiten, ohne dass der Wohnkomfort eingeschränkt wird.
Da das Gebäude über keinen Keller verfügt, sorgt ein durchdachter „Kellerersatzraum“ für ausreichend Stauraum. Im Obergeschoss unterstreicht der Grundriss des Hauses mit Büro die funktionale Wohnqualität: Ein Elterntrakt mit Schlafzimmer, Ankleide und eigenem Bad sowie ein separater Kinderbereich mit eigenem Badezimmer bieten ideale Rückzugsmöglichkeiten. So bleibt die Arbeitsumgebung vom Familienleben getrennt, ohne dass Wohn- oder Arbeitsqualität darunter leiden.
Farblich setzt das Haus innen auf eine Kombination aus Weiß- und Grautönen mit hellem Holz, wodurch eine elegante und einladende Atmosphäre entsteht. Die weiße Fassade mit anthrazitfarbenen Fenstern und stilvollen Akzenten im Außenbereich unterstreicht den modernen und hochwertigen Charakter des Hauses.
Dank der durchdachten Planung entsteht ein harmonisches Wohnkonzept, das sowohl den Anforderungen des Homeoffice als auch dem Wunsch nach Privatsphäre gerecht wird.
Haus anfragenZusatzinfo
Für Anfragen zu diesem Kundenhaus verwenden Sie bitte die interne Bezeichnung LUXHAUS-23482.
Haus anfragen






