

Pultdach Klassik 254
Kundenhaus
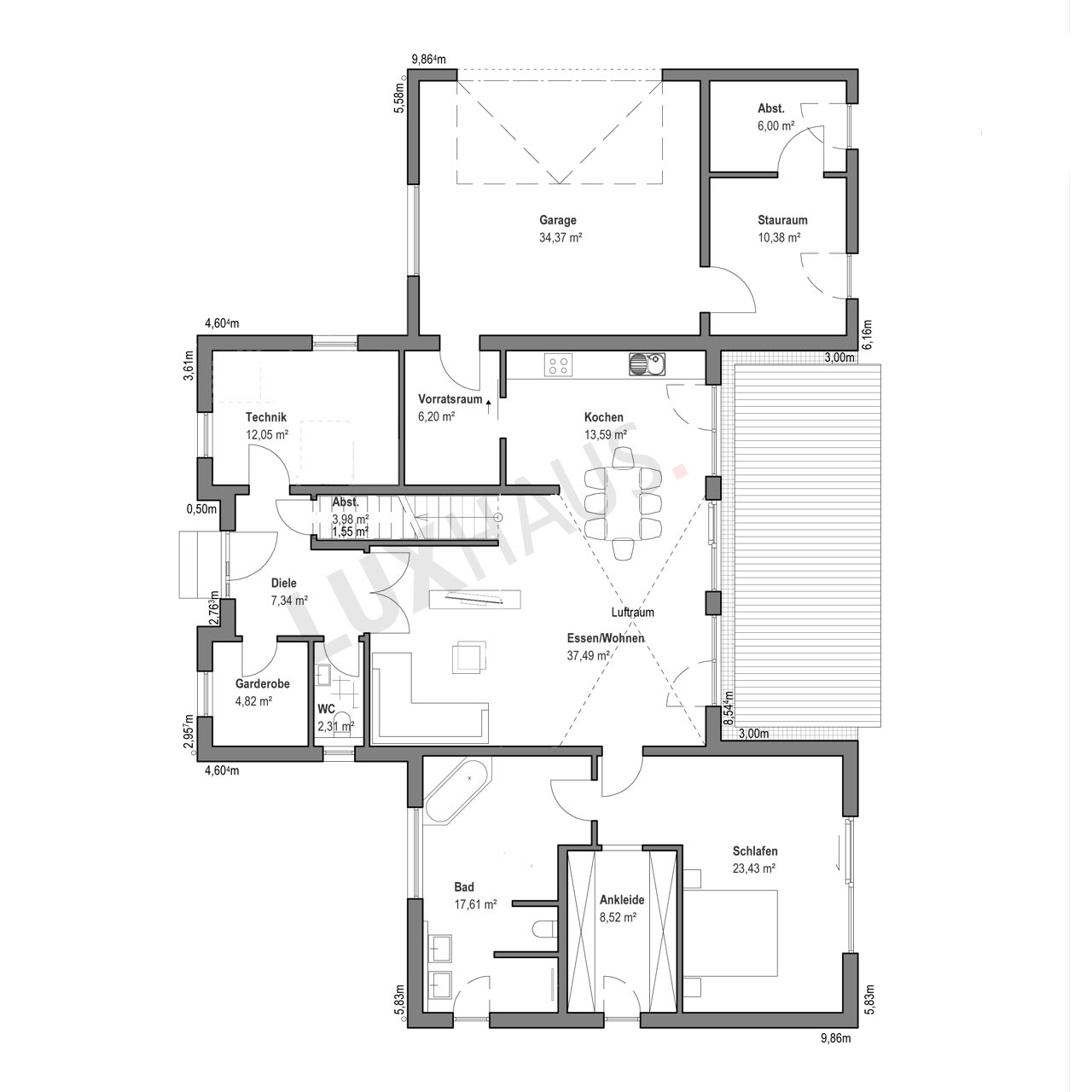
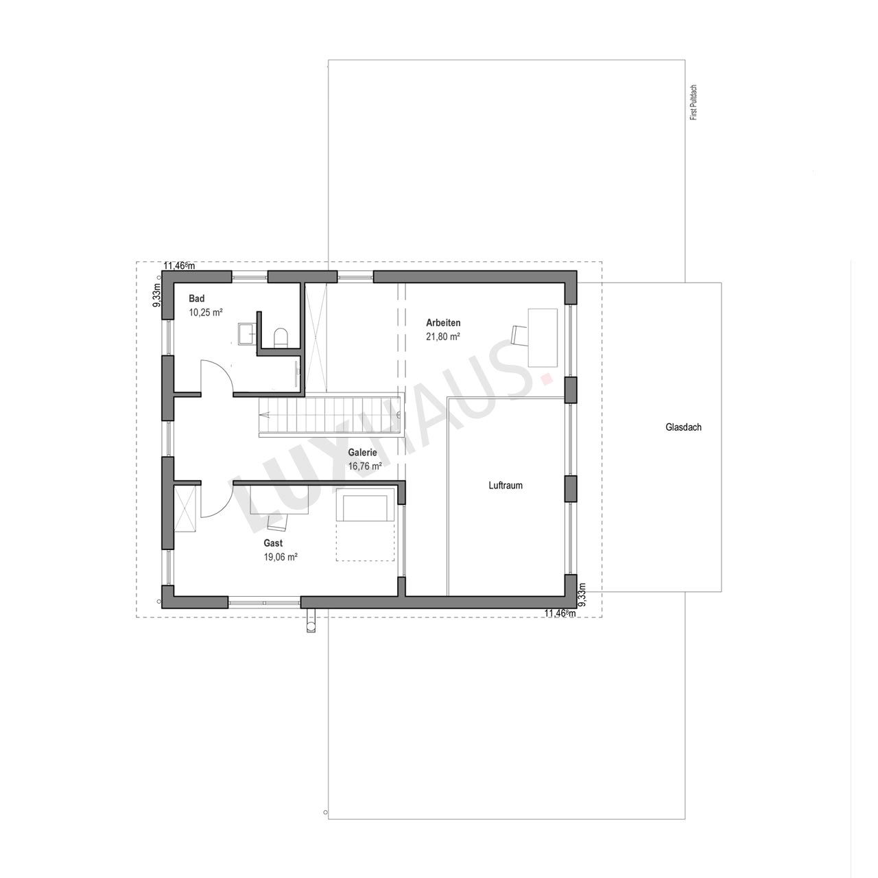
Stadtvilla mit Pultdach und Galerie
Diese Stadtvilla mit Pultdach und Galerie besticht durch ihre elegante Architektur und harmonische Symmetrie. Der zweigeschossige Mittelteil ragt stilvoll zwischen zwei eingeschossigen Seitenflügeln hervor und verleiht dem Haus eine moderne, repräsentative Ausstrahlung. Der großzügige Wohnbereich mit Galerie öffnet das Raumgefühl nach oben und sorgt für ein beeindruckendes Ambiente.
Ein besonderes Highlight ist der Swimmingpool, der sich direkt vor dem Mittelteil erstreckt und dem Haus eine luxuriöse Note verleiht. Bodentiefe Fenster ermöglichen eine nahtlose Verbindung zwischen Innen- und Außenbereich und schaffen eine lichtdurchflutete Atmosphäre.
Im Inneren sorgt ein durchdachtes Farbkonzept für eine angenehme Wohnlichkeit. Grautöne in verschiedenen Nuancen bilden die Basis und werden durch gezielt gesetzte farbliche Akzente aufgelockert. Die offene Küche mit Kochinsel fügt sich perfekt in den Wohnbereich ein und lädt zum geselligen Kochen ein.
Das Schlafzimmer präsentiert sich als stilvolle Rückzugsoase mit warmen Holzelementen und einer großzügigen Fensterfront. Ein begehbarer Kleiderschrank sorgt für zusätzlichen Komfort. Im Badezimmer dominieren moderne, geschwungene Armaturen und edle Materialien, ergänzt durch eine freistehende Badewanne als weiteres Design-Highlight.
Diese Stadtvilla mit Pultdach und Galerie vereint stilvolle Architektur, durchdachtes Design und höchste Wohnqualität – eine perfekte Kombination aus Ästhetik, Funktionalität und Komfort.
Haus anfragen
Zusatzinfo
Für Anfragen zu diesem Kundenhaus verwenden Sie bitte die interne Bezeichnung LUXHAUS-26134.
Haus anfragen







