

Satteldach Landhaus 290
Kundenhaus
Moderne Satteldacharchitektur
So hell und großzügig kann ein Haus mit Souterrain geplant werden. Dieses am Hang gelegene Gebäude überzeugt durch eine moderne Satteldacharchitektur, die sich durch eine reduzierte Dachneigung harmonisch in das Umfeld integriert und auf den ersten Blick kaum als klassische Satteldachform erkennbar ist. Der architektonische Anspruch zeigt sich nicht nur an der äußeren Erscheinung, sondern auch in der durchdachten Grundrissgestaltung und hochwertigen Detailausarbeitung. Die Hanglage ermöglicht einen dezenten und zurückhaltenden Straßenauftritt. Auf der Rückseite hingegen öffnet sich das Gebäude mit großzügigen Glasflächen und einer weitläufigen Dachterrasse zum Hang hin, wodurch sich eine beeindruckende Aussicht und ein hoher Wohnwert ergeben. Die Terrasse schafft zusätzlichen Lebensraum und bietet sowohl Rückzugsmöglichkeiten für die Bewohnerinnen und Bewohner als auch perfekte Voraussetzungen für die repräsentative Nutzung im Rahmen von Einladungen oder besonderen Anlässen.
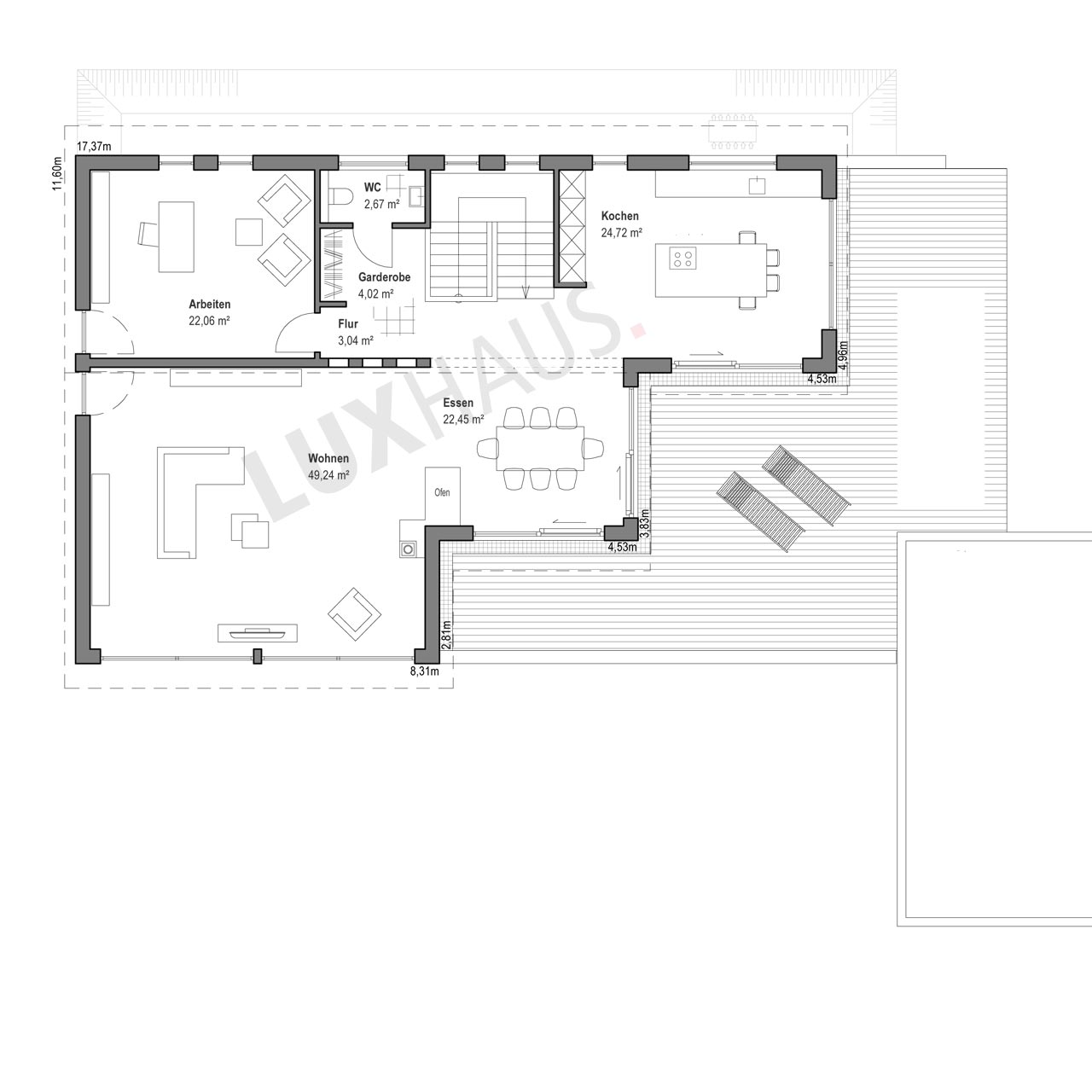
Im Inneren setzt sich der Anspruch an Design und Funktionalität fort. Klare Linien und eine zeitlose Formsprache bestimmen das Raumgefühl. Eine puristische Küche mit dezentem Farbspiel aus Weiß- und Anthrazittönen fügt sich perfekt in den offen gestalteten Wohn- und Essbereich ein. Raumbildende Elemente wie eine filigran durchbrochene Wandscheibe sorgen für eine angenehme Zonierung und laden zur kreativen Inszenierung mit Kunst oder Licht ein.
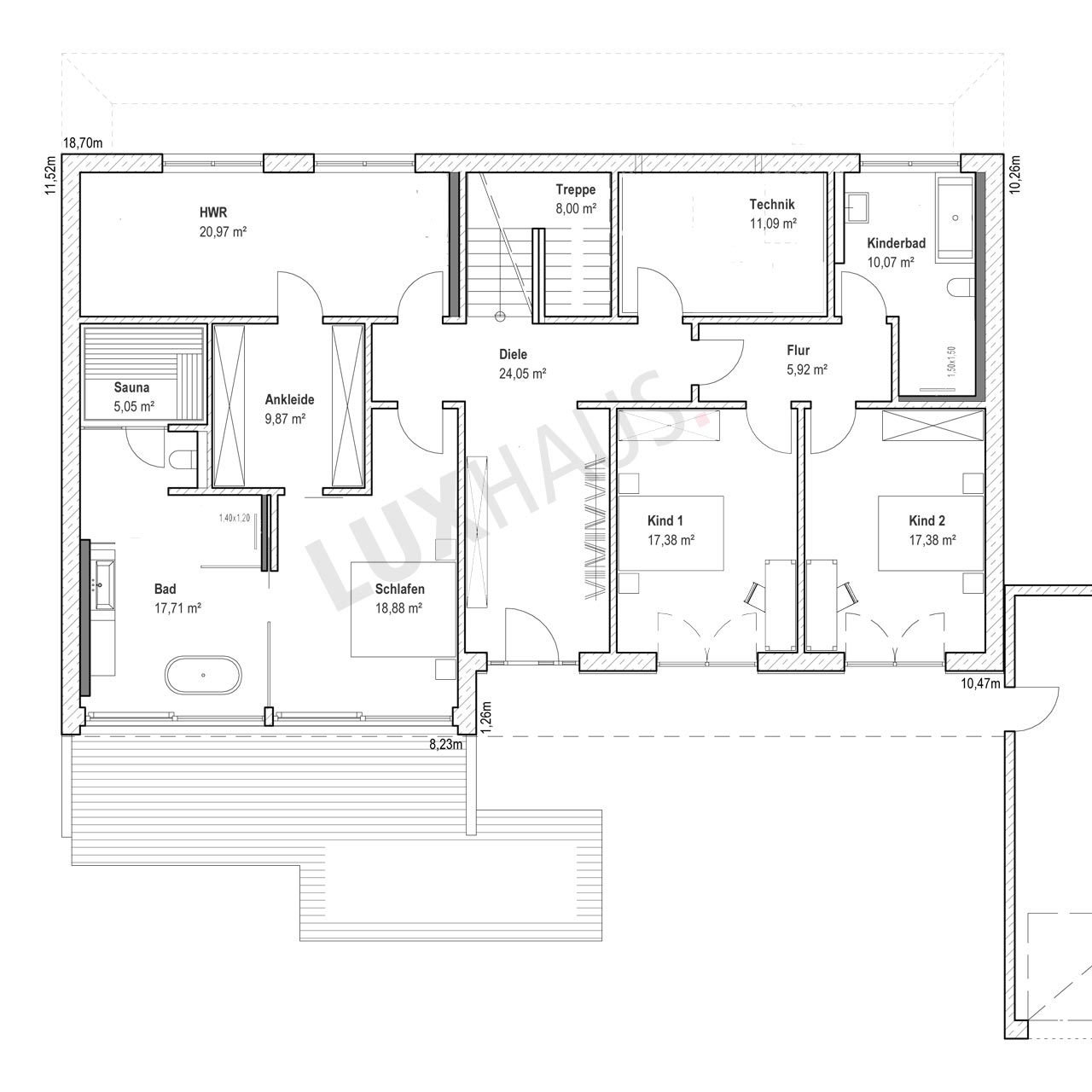
Die privaten Bereiche befinden sich im Erdgeschoss und sind optimal organisiert. Das Schlafzimmer verfügt über eine separate Ankleide und ein großzügiges Bad, das mit freistehender Badewanne, bodengleicher Dusche und Sauna Wellnesskomfort bietet. Zwei gleichwertige Kinderzimmer mit eigenem Kinderbad komplettieren den privaten Bereich. Die Treppe führt von hier aus direkt in den offen und lichtdurchflutet gestalteten Wohnbereich, der durch seine großzügige Gestaltung und eine leicht zurückversetzte Küche besticht. Ein separates Arbeitszimmer sowie eine Garderobe mit Einbauschrank runden das Raumkonzept ab. Gäste werden über einen eigenen Bereich empfangen und elegant in den repräsentativen Teil des Hauses geleitet, während die Familie sich im Alltag über kurze Wege und durchdachte Abläufe freuen kann.
Haus anfragenZusatzinfo
Für Anfragen zu diesem Kundenhaus verwenden Sie bitte die interne Bezeichnung LUXHAUS-23169.
Haus anfragen







