

Walmdach 129
Kundenhaus
Klassische Stadtvilla
Eine klassische Stadtvilla – das wünschen sich viele Bauherren. Diese zeitlos schöne Villa greift die typischen Gestaltungselemente klassischer Architektur gekonnt auf und interpretiert sie modern und stilvoll. Die Sprossenfenster, kombiniert mit der harmonischen Farbgestaltung der Fassade, prägen den eleganten Charakter und lassen bereits von außen die besondere Handschrift dieser klassischen Stadtvilla erkennen.
Durchdacht bis ins Detail präsentiert sich das Haus sowohl außen als auch innen. Liebevoll ausgewählte Materialien, helle Farbtöne und eine klare Linienführung sorgen für eine freundliche und einladende Atmosphäre. Große Fensterflächen lassen viel Tageslicht in die Räume strömen, wodurch sie offen, großzügig und zugleich gemütlich wirken. Im Wohnbereich erzeugen eher kühle Farben eine moderne Klarheit, während ein Kamin für Behaglichkeit und ein wohnliches Ambiente sorgt.
Das Badezimmer setzt mit warmen Holz- und Naturtönen einen harmonischen Kontrast. Es wurde bewusst als private Wellnessoase konzipiert, die nicht nur funktional, sondern auch ein Ort der Entspannung ist – ideal, um neue Energie zu tanken.
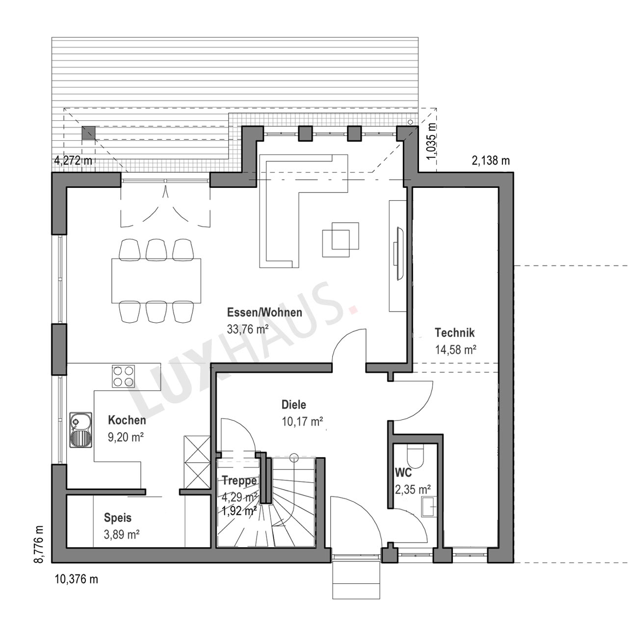
Der offene Wohn-, Ess- und Kochbereich in L-Form bildet das Herzstück des Hauses. Die direkt angeschlossene Speisekammer macht deutlich, wie durchdacht der Grundriss angelegt ist: Praktisch und alltagstauglich, ohne auf Ästhetik zu verzichten. Hier wird nicht nur gekocht, sondern auch gelebt – gemütliche Runden am Esstisch sind ebenso selbstverständlich wie das gemeinsame Genießen der schönen Aussicht ins Grüne.
Zwei gleichwertige Kinderzimmer im Obergeschoss bieten Privatsphäre und individuelle Rückzugsorte. Sie lassen sich flexibel nutzen und gestalten, ganz nach den Bedürfnissen der Bewohner. Der Stauraum unter der Treppe schafft zusätzlichen Platz für Alltagsgegenstände, die nicht immer sichtbar sein sollen, während der Technik- und Hauswirtschaftsraum weiteren praktischen Raum bietet.
Insgesamt vereint diese klassische Stadtvilla stilvolle Architektur, hochwertige Materialien und eine perfekt abgestimmte Raumaufteilung zu einem Haus, das sowohl durch seine äußere Erscheinung als auch durch seine inneren Werte überzeugt.
Haus anfragenZusatzinfo
Für Anfragen zu diesem Kundenhaus verwenden Sie bitte die interne Bezeichnung LUXHAUS-19336.
Haus anfragen







