

Walmdach 157
Kundenhaus
Stadtvilla mit Doppelgarage
Diese klassische Stadtvilla mit Doppelgarage überzeugt durch eine moderne Architektur, die auf zeitlose Eleganz und durchdachte Raumaufteilung setzt. Die warme Gestaltung der Fassade mit dezenten Farbakzenten sorgt für eine harmonische Gliederung und fügt sich perfekt in jede Wohnumgebung ein. Die Formensprache bleibt klar und reduziert, wodurch das Gebäude eine repräsentative und gleichzeitig einladende Ausstrahlung erhält.
Die weißen Fensterrahmen halten sich bewusst dezent im Hintergrund, um den großzügigen Fassadenflächen Raum zur Entfaltung zu geben. Der großzügige Wohn-, Ess- und Kochbereich im Erdgeschoss öffnet sich über bodentiefe Fensterflächen nach außen und schafft eine helle, lichtdurchflutete Atmosphäre. Diese Offenheit bietet ideale Voraussetzungen für kommunikatives Wohnen und entspanntes Zusammensein.
Im Innenraum bildet die Kombination aus warmen, eher dunklen Holztönen und viel Weiß ein elegantes Zusammenspiel, das eine wohnliche und zugleich stilvolle Atmosphäre schafft. Die moderne Küche mit Kochinsel fügt sich nahtlos in den offenen Wohnbereich ein und wird so zum zentralen Treffpunkt des Hauses.
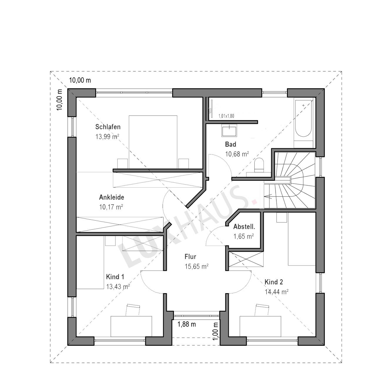
Das Obergeschoss bietet mit einem großzügigen Elternbereich, inklusive Ankleide, zwei gleichwertigen Kinderzimmern sowie einem komfortabel ausgestatteten Bad durchdachten Wohnkomfort für die gesamte Familie. Praktische Nebenräume wie ein Abstellraum und ein Arbeitszimmer im Erdgeschoss runden das Raumangebot ab.
Die Stadtvilla mit Doppelgarage bietet durch ihre klare Architektur und die harmonische Material- und Farbgestaltung ein stimmiges Gesamtbild, das sowohl von außen als auch im Inneren durch Qualität, Funktionalität und Design überzeugt.
Haus anfragenZusatzinfo
Für Anfragen zu diesem Kundenhaus verwenden Sie bitte die interne Bezeichnung LUXHAUS-26811.
Haus anfragen







