

Walmdach 160
Kundenhaus
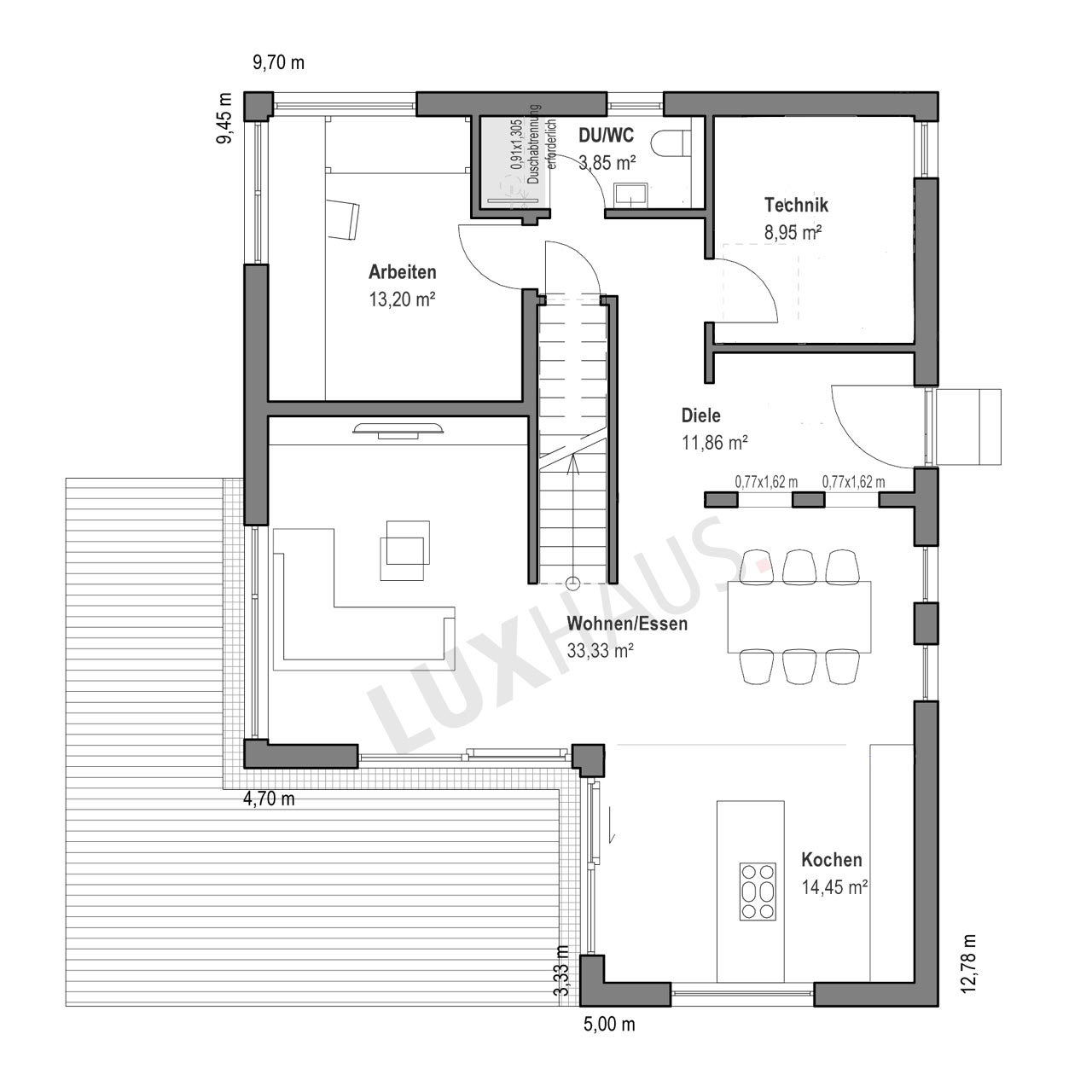
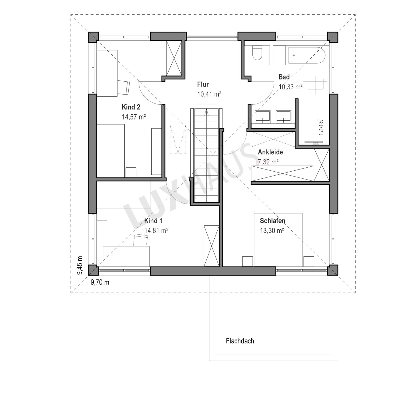
Stadtvilla mit 160 m² Wohnfläche
Eine moderne Stadtvilla mit Walmdach, die auf rund 160 m² Wohnfläche klassische Eleganz mit aktuellen Wohntrends vereint. Die reduzierte und klare Linienführung der Fassade setzt ein architektonisches Statement und schafft einen zeitlosen Look. Im Inneren beeindruckt das Haus durch eine warme, einladende Atmosphäre, geprägt von einer harmonischen Farbgestaltung aus Naturtönen. Holz als dominierendes Material wird gekonnt mit Elementen in Betonoptik, sanften Creme- und Weißtönen kombiniert.
Jeder Bereich dieser Stadtvilla mit Walmdach ist mit Liebe zum Detail gestaltet. Mobiliar und Dekoration sind perfekt aufeinander abgestimmt, wodurch einzelne Zonen der Architektur bewusst in Szene gesetzt werden. Besonders markant ist eine durchbrochene Wand im Eingangsbereich, in der stilvolle Sitznischen mit integrierten Leuchten geschaffen wurden – perfekte Orte für gemütliche Lesemomente und zugleich ein außergewöhnlicher Blickfang.
Ergänzt wird die Architektur durch einen zurückhaltenden Flachdachanbau, der sich durch eine graue Putzstruktur harmonisch vom weißen Haupthaus abhebt. Dieser Anbau bietet zusätzlichen Raum für eine großzügige Küche mit direktem Bezug zum Wohn- und Essbereich. Die großen Fensterflächen sorgen für lichtdurchflutete Räume und verbinden Innen und Außen auf elegante Weise.
Die moderne Formsprache wird auch in den Innenräumen konsequent fortgeführt. Die offenen, fließenden Grundrisse, kombiniert mit dem Einsatz hochwertiger Materialien, erzeugen eine wohnliche Atmosphäre, die gleichzeitig modern und zeitlos wirkt. Trotz der klaren Architektur vermittelt die Stadtvilla mit Walmdach beim Eintreten eine echte Wohlfühlatmosphäre – stilvoll, warm und einladend.
Haus anfragenZusatzinfo
Für Anfragen zu diesem Kundenhaus verwenden Sie bitte die interne Bezeichnung LUXHAUS-27531.
Haus anfragen







