

Walmdach 164
Kundenhaus
Moderne Stadtvilla mit Anbau
Diese Stadtvilla mit Anbau überzeugt durch eine gelungene Kombination aus moderner Architektur, durchdachter Raumplanung und hochwertigen Ausstattungsdetails. Klare Linien, große Fensterflächen und ein harmonisches Zusammenspiel von Farben und Materialien prägen das Erscheinungsbild. Die Stadtvilla mit Anbau bietet nicht nur ein optisches Highlight, sondern auch eine hohe Funktionalität für den Alltag.
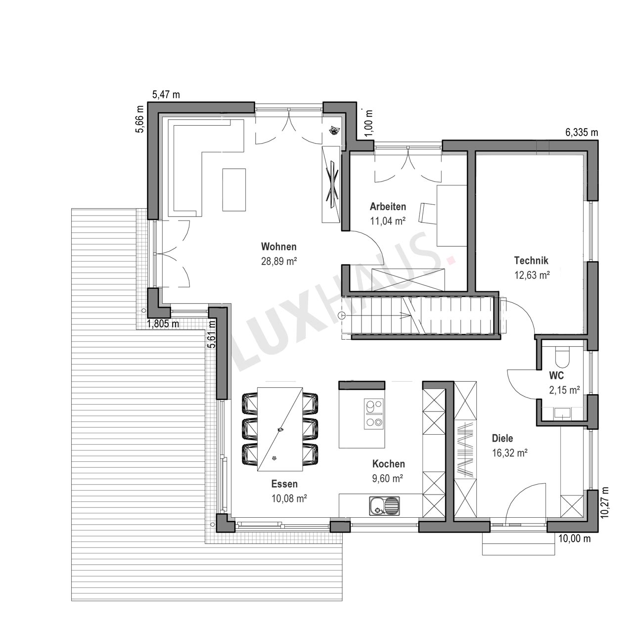
Im Erdgeschoss öffnet sich der großzügige Wohn-, Ess- und Kochbereich. Die offene Küche mit moderner Kochinsel und hochwertigen Geräten bildet das Herzstück des Hauses. Der nahtlose Übergang vom Kochen zum Essen und Wohnen schafft eine offene, kommunikative Atmosphäre, die perfekt für das Familienleben oder gesellige Abende mit Freunden geeignet ist. Der Anbau erweitert den Wohnbereich optimal und sorgt durch die zusätzliche Fläche für noch mehr Raumgefühl. Ein separater Arbeitsraum, das Gäste-WC sowie der Technikraum runden das Raumangebot im Erdgeschoss ab.
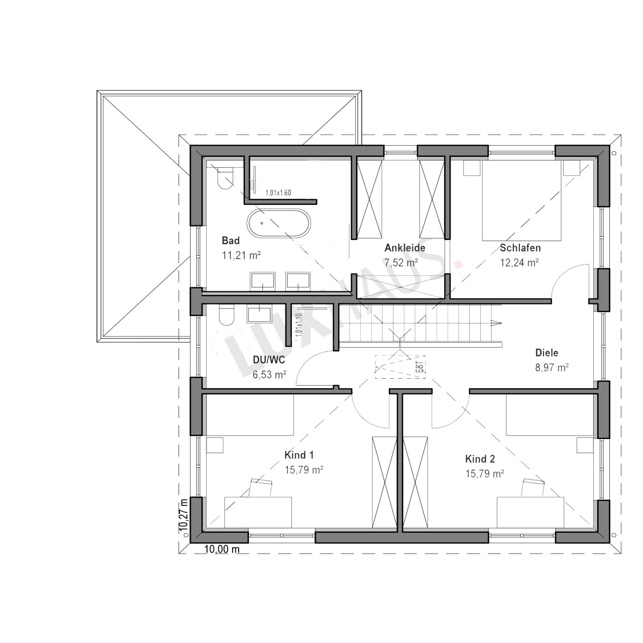
Im Obergeschoss der Stadtvilla mit Anbau befinden sich die privaten Rückzugsbereiche. Das Elternschlafzimmer ist direkt mit einer komfortablen Ankleide verbunden. Zwei nahezu gleich große Kinderzimmer bieten viel Platz für Spiel und Entwicklung. Ein modernes Familienbad sowie ein weiteres Duschbad sorgen für Flexibilität und Komfort im Alltag. Durch die offen gestaltete Diele im Obergeschoss entsteht ein angenehmes Wohngefühl mit viel Licht und Freiraum.
Auch im Innenraum überzeugt das Haus mit modernem Charakter und einer hochwertigen Ausstattung. Qualitative Materialien wie Echtholzböden, stilvolle Einbaumöbel und ein durchdachtes Beleuchtungskonzept unterstreichen das anspruchsvolle Design. Bodentiefe Fenster und der direkte Zugang zur Terrasse und dem Garten schaffen fließende Übergänge zwischen Innen- und Außenbereich.
Mit ihrer klaren Formsprache, der clever integrierten Anbau-Lösung und dem Fokus auf Funktionalität und Ästhetik ist diese Stadtvilla mit Anbau ein zeitgemäßes Zuhause, das höchsten Wohnkomfort bietet.
Haus anfragenZusatzinfo
Für Anfragen zu diesem Kundenhaus verwenden Sie bitte die interne Bezeichnung LUXHAUS-28378.
Haus anfragen







