

Walmdach 168
Kundenhaus
Stadtvilla mit Sauna
Dieses Kundenhaus überzeugt auf ganzer Linie mit einem deutlichen Wow-Effekt – eine klassische Walmdach-Stadtvilla mit mondänem Chic, bei der sich auf den ersten Blick zeigt, wie sorgfältig und individuell die Planung erfolgt ist. Die Bauherren haben zahlreiche Wünsche verwirklicht und dabei eine äußerst stilvolle und funktionale Wohnlösung geschaffen.
Die helle Fassadengestaltung mit akzentuierenden dunklen Elementen und gezielt eingesetzten Farbtupfern erzeugt ein harmonisches Gesamtbild – sowohl im Innen- als auch im Außenbereich. Bereits beim ersten Blick auf das Gebäude fallen die bewusst gewählten, außergewöhnlichen Fensterformate ins Auge. Während im Obergeschoss kleinere Fenster für Privatsphäre und Rückzugsmöglichkeiten sorgen, öffnet sich das Erdgeschoss durch große Glasflächen weit zum Garten hin. So entsteht ein lichtdurchfluteter Wohnbereich mit fließendem Übergang in den Außenraum, der Weite und Großzügigkeit vermittelt.
Besonders attraktiv ist die gelungene Raumaufteilung dieser Stadtvilla mit Sauna, die moderne Architektur mit Komfort vereint. Im Inneren dominiert eine helle Farbgestaltung mit gekonnt gesetzten dunklen Kontrasten. Natürliche Holztöne schaffen eine warme Atmosphäre, während dezente Pastellfarben dem Interieur eine elegante, persönliche Note verleihen.
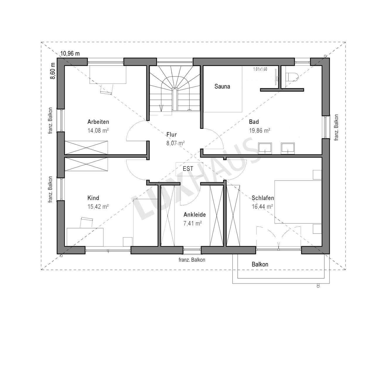
Der Grundriss ist durchdacht und funktional. Im Erdgeschoss befindet sich neben der offenen Wohn-, Ess- und Kochzone auch ein voll ausgestatteter Fitnessraum, der für sportliche Aktivitäten direkt im eigenen Haus sorgt. Hier lassen sich Training und Alltag perfekt verbinden. Der große Wohnbereich lädt zu gemütlichen Stunden mit Familie und Freunden ein. Besonders hervorzuheben ist das Bad im Obergeschoss, das in Kombination mit der integrierten Sauna den Wellnessfaktor dieser Stadtvilla deutlich unterstreicht – ideal, um nach dem Sport oder einem langen Tag zu entspannen. Ein weiteres Highlight ist der direkt vom Elternschlafzimmer aus zugängliche Balkon, der Raum für ruhige Momente im Freien bietet – sei es nach der Sauna oder bei einem Glas Wein am Abend.
Für das Homeoffice bietet das separate Arbeitszimmer im Obergeschoss einen optimalen Rückzugsort. Das großzügige Kinderzimmer schafft Platz für Privatsphäre und individuelle Gestaltungsmöglichkeiten. Ergänzt wird der Grundriss durch eine Ankleide, ein Gäste-WC, Abstellräume sowie einen Technikraum, die den Alltag erleichtern und zusätzlichen Stauraum schaffen.
Diese Stadtvilla mit Sauna verbindet gekonnt modernes Design, Funktionalität und Lebensqualität – ein Haus, das auf ganzer Linie begeistert.
Haus anfragenZusatzinfo
Für Anfragen zu diesem Kundenhaus verwenden Sie bitte die interne Bezeichnung LUXHAUS-22937.
Haus anfragen







