

Walmdach 169
Kundenhaus
Walmdachhaus mit Anbau
Klassiker kommen nie aus der Mode. Dieses Walmdachhaus mit Anbau überzeugt mit der typischen Eleganz einer Stadtvilla und bringt durch den versetzten Kubus eine moderne Raffinesse in die Architektur. Der Anbau erweitert den Essbereich und schafft zusammen mit den anthrazitfarbenen Fenstern und dem dunklen Walmdach ein harmonisches Gesamtbild. Die zurückversetzte Garage bildet zudem einen geschützten Hofbereich und sorgt für eine einladende Außenwirkung.
Beim Betreten des Hauses eröffnet sich eine klare Raumstruktur: Die geradläufige Treppe im Eingangsbereich führt ins Obergeschoss, während sich rechts ein Gäste-Dusch-WC und ein separiertes Gästezimmer befinden – ideal für einen eigenständigen Gästebereich. Auf der linken Seite findet sich die Garderobe, die geschickt den Zugang zum Technikraum verbirgt. Versetzt zur Garderobe und direkt von der Küche aus begehbar, liegt die praktische Speisekammer. Diese ergänzt funktional die offen gestaltete Küche, die nahtlos in den großzügigen Wohn-Ess-Kochbereich übergeht – das Herzstück des Walmdachhauses mit Anbau.
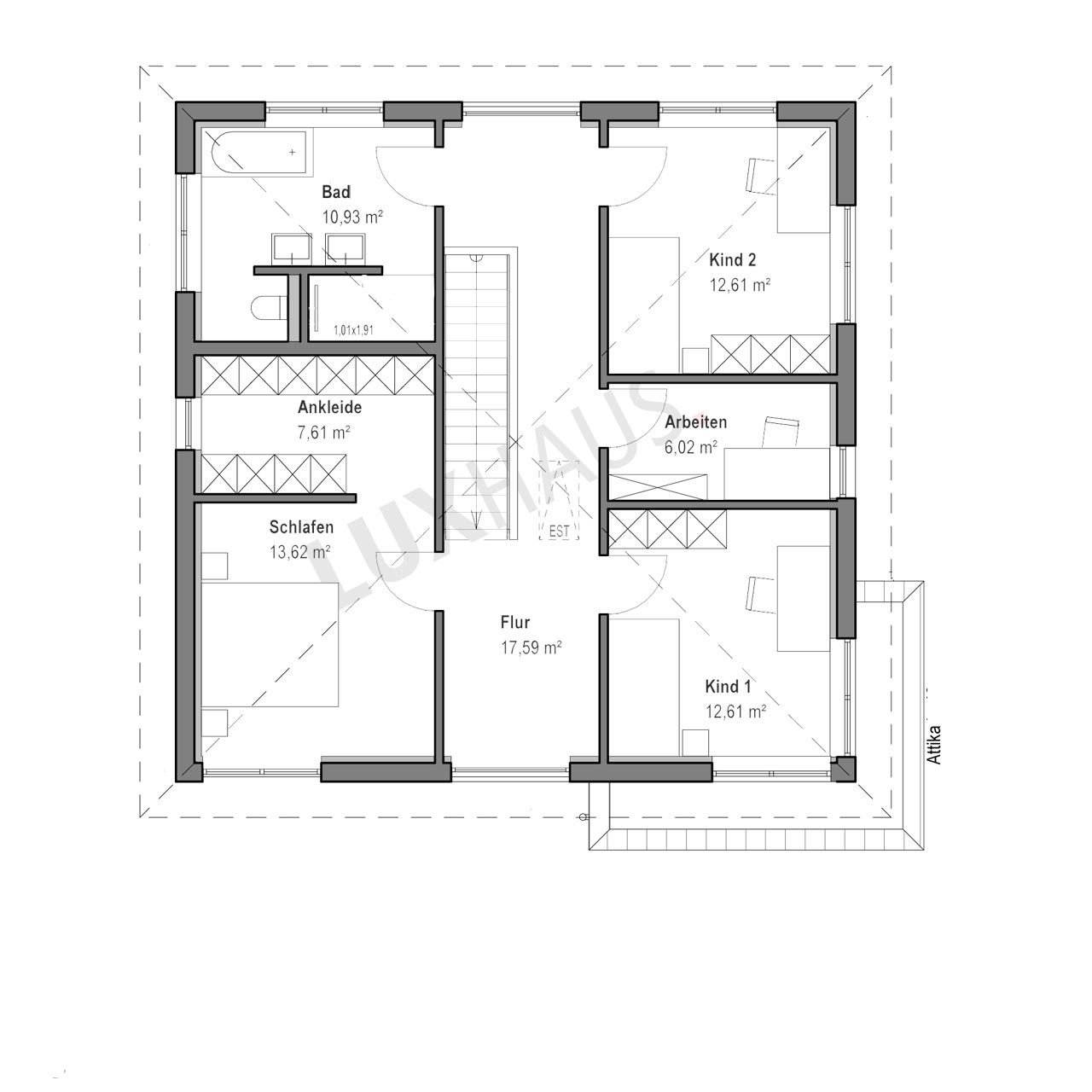
Im Obergeschoss wurden zwei nahezu identische Kinderzimmer geplant, getrennt durch ein Arbeitszimmer. Gegenüber befinden sich das moderne Gemeinschaftsbad sowie der Rückzugsbereich der Eltern mit Schlafzimmer, Ankleide und direktem Zugang zum Bad.
Der Stil dieses Hauses zeigt sich bis ins Detail durchdacht. Mit filigranen Formen, einer gelungenen Kombination aus Schwarz und Naturmaterialien sowie dem gezielten Einsatz von viel Holz entsteht eine warme, aber gleichzeitig zeitgemäße Atmosphäre. Die Einrichtung unterstreicht den hohen Designanspruch der Bauherren und lässt das Interieur hochwertig, stilvoll und wohnlich wirken.
Haus anfragenZusatzinfo
Für Anfragen zu diesem Kundenhaus verwenden Sie bitte die interne Bezeichnung LUXHAUS-28466.
Haus anfragen







