

Walmdach 176
Kundenhaus
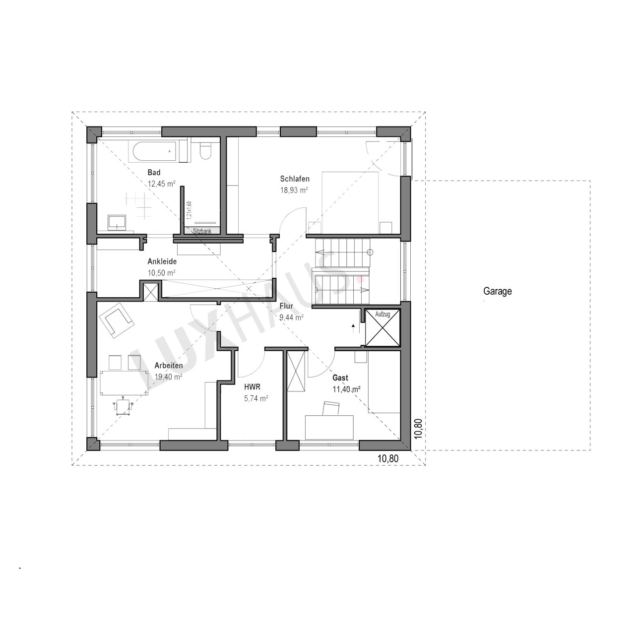
Stadtvilla-Grundriss mit Aufzug
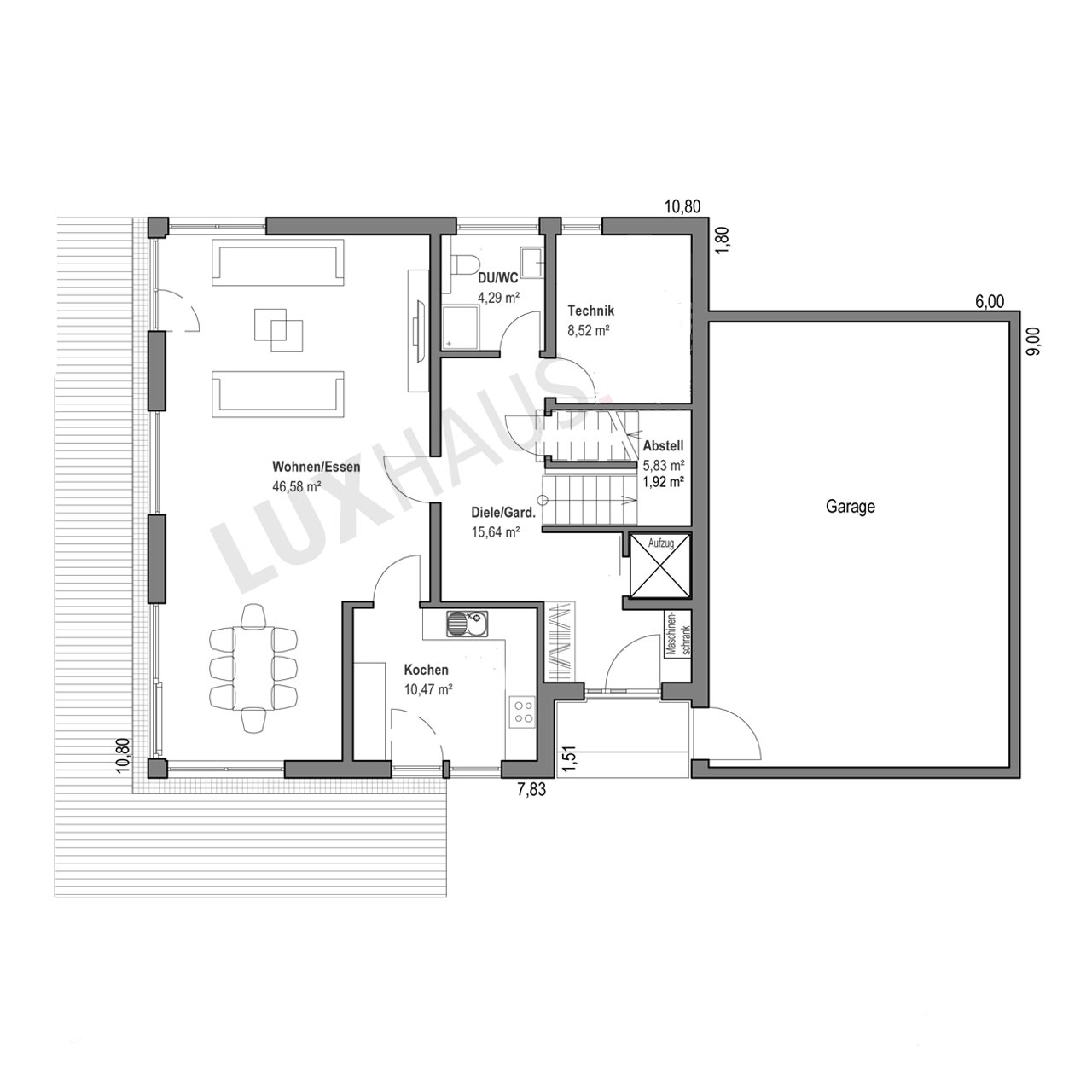
Eine geradlinige Stadtvilla mit Aufzug, die mit vielen guten Ideen überzeugt. Der überdachte Zugang erlaubt es, die Einkäufe trockenen Fußes ins Haus zu bringen. Graue Farbakzente verleihen dem Haus Individualität. Ein gelungenes Konzept, das sich auch im Innenraum fortsetzt, wo durchdachte Lösungen den Alltag erleichtern. Eine abgetrennte Küche mit Zugang zur Terrasse verbindet Außenbezug mit Rückzug, so werden auch Gerüche im Wohn-Essbereich vermieden. Die Glastür in der Diele sorgt für zusätzliches Licht und lässt den Raum insgesamt größer wirken. Eine tolle Idee, die man gerade für kompaktere Grundrisse im Hinterkopf behalten sollte. Ein zusätzlicher Abstellraum unter der Treppe schafft Platz für alles, was nicht ständig in Nutzung ist, und ein Arbeits- und Gästezimmer bietet Flexibilität und Rückzugsmöglichkeiten für die Bewohner, aber eben auch für Besuch, der bei Bedarf sein eigenes Reich vorfindet.
Auch im Obergeschoss gibt es raffinierte Details wie den Hauswirtschaftsraum, der Organisation und Ordnung sowie die Haushaltstätigkeiten erleichtert und ein Äquivalent zum Abstellraum im Erdgeschoss bietet. Auch hier wurden mögliche zukünftige Veränderungen in Fitness und Ansprüchen der Bewohner berücksichtigt. Das Badezimmer, das nur über die Ankleide erreichbar ist, schafft Privatsphäre. Diese ungewöhnliche Anordnung bietet zudem den Vorteil, dass man sich Kleidung ins Bad mitnehmen oder aus dem Bad mitbringen kann. Das entzerrt die interfamiliären Abläufe. Gestalterisch treffen Grautöne auf Holz und Akzente in Rot und Orange.
Der Grundriss der Stadtvilla mit Aufzug überzeugt dabei nicht nur durch die intelligente Raumaufteilung, sondern schafft auch langfristige Flexibilität und Komfort. Neben der einfach gewendelten Holztreppe sorgt der Aufzug für zusätzlichen Komfort und lässt Raum für mögliche Veränderungen der Lebensumstände.
Haus anfragenZusatzinfo
Für Anfragen zu diesem Kundenhaus verwenden Sie bitte die interne Bezeichnung LUXHAUS-25262.
Haus anfragen







