

Walmdach 208
Kundenhaus
Stadtvilla mit Galerie
Diese klassische Stadtvilla mit Galerie überzeugt durch zeitlose Architektur, elegante Details und eine durchdachte Raumaufteilung. Besonders prägend sind der großzügige Dachüberstand sowie die markanten grau-weißen Bossen, die der Villa eine besondere Ausstrahlung und einen hohen Wiedererkennungswert verleihen. Die perfekte Symmetrie und harmonische Proportionen unterstreichen das architektonische Konzept und sorgen für ein stimmiges Gesamtbild.
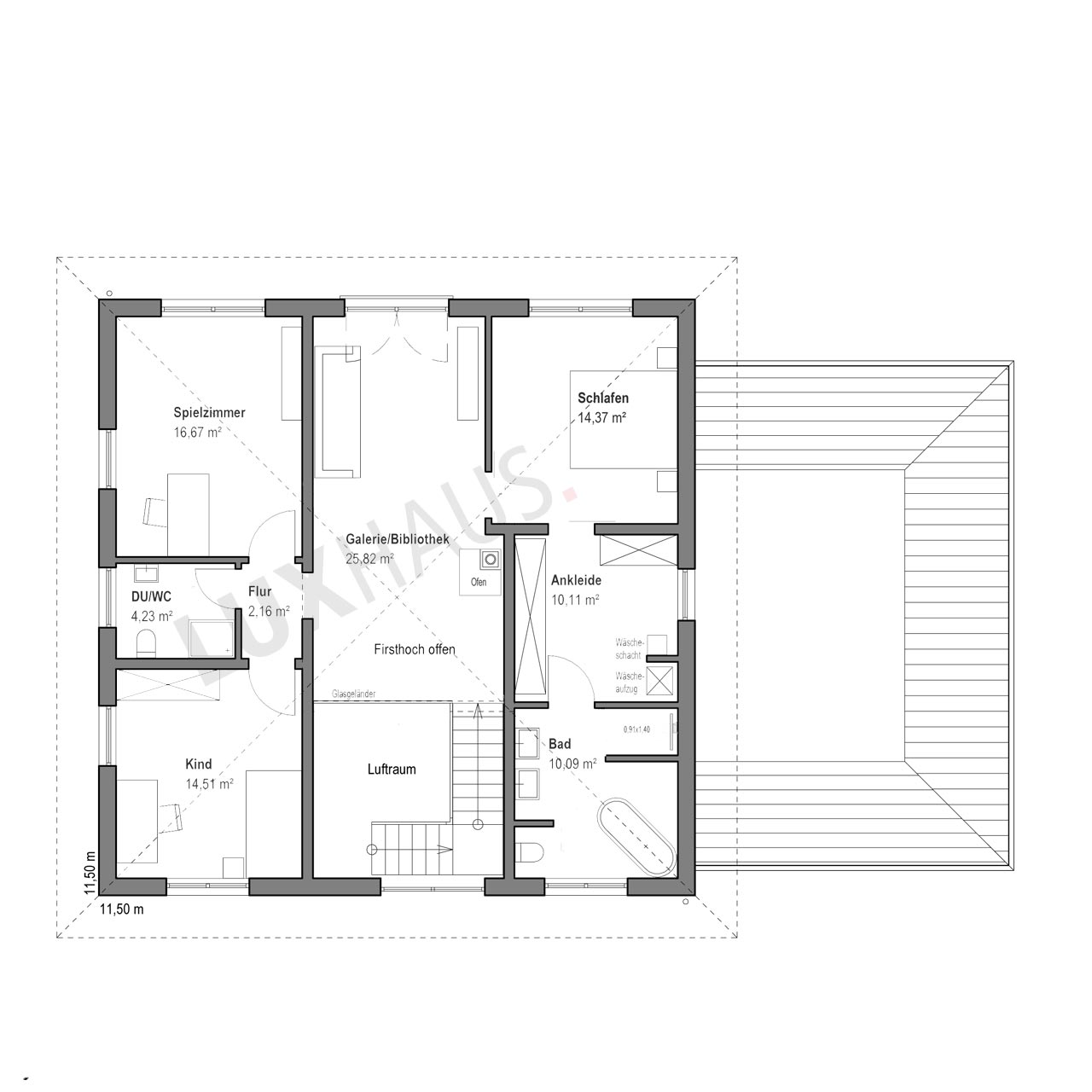
Das architektonische Highlight bildet der firstoffene Eingangsbereich mit offener Galerie, der schon beim Betreten des Hauses beeindruckt und ein repräsentatives Entrée schafft. Diese offene Gestaltung verleiht dem Haus Leichtigkeit und Großzügigkeit und macht es zu einem echten Blickfang.
Im Inneren prägen edle Materialien und eine helle Farbgestaltung das Erscheinungsbild. Akzente in frischen Grün- und Pinktönen setzen lebendige Kontraste und verleihen dem Haus eine moderne und freundliche Atmosphäre. Der durchdachte Grundriss bietet zahlreiche raffinierte Lösungen und kreative Details, die den Alltag erleichtern und den langfristigen Werterhalt sichern.
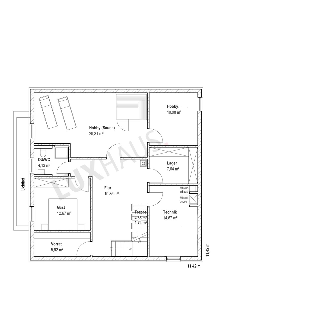
Ein echtes Plus ist der vollwertige Wohnkeller, der mit Sauna, Gästezimmer und Hobbyraum viel Flexibilität bietet. Dieser Bereich kann später problemlos zur eigenständigen Jugendwohnung oder zu einer Einliegerwohnung, beispielsweise für eine Pflegekraft, umgestaltet werden. Bis dahin sorgt er für Wellness, Erholung und zusätzlichen Lebensraum.
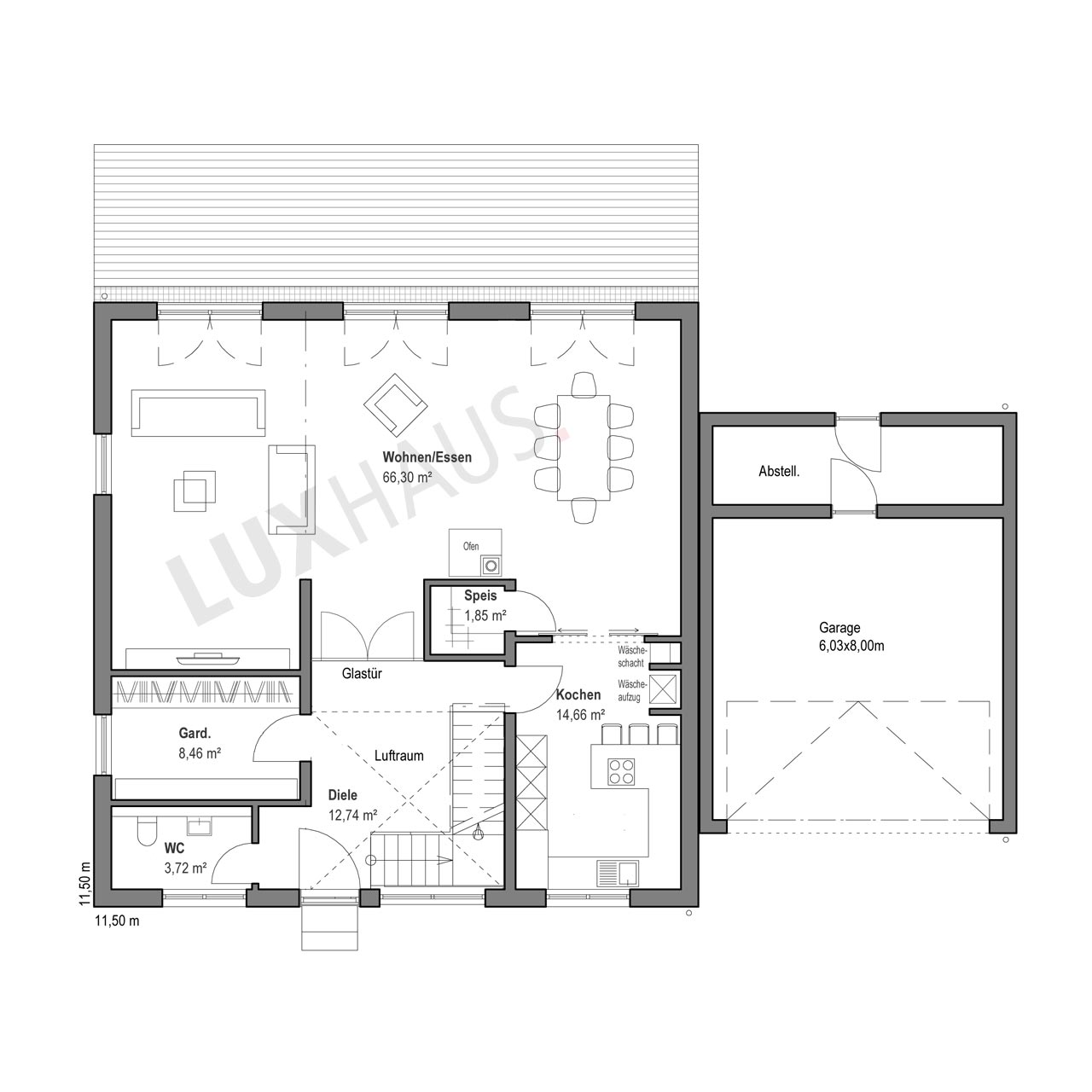
Die Garage mit separatem Abstellraum ergänzt das Raumangebot ideal. Hier finden Gartengeräte, Fahrräder oder andere Utensilien Platz, die nicht im Haus untergebracht werden müssen.
Der rund 66 m² große Wohn- und Essbereich bildet das Herzstück des Hauses. Er vereint Repräsentation und Komfort und ist sowohl ideal für Gäste als auch für entspannte Stunden im Familienkreis. Die separate Küche mit angrenzender Speisekammer sorgt für kurze Wege und ein aufgeräumtes Erscheinungsbild. Für Kinder bietet die Stadtvilla mit Galerie einen eigenen Bereich mit Kinderzimmer, Spielzimmer und separatem Kinderbad. Die Eltern profitieren von einer Ankleide im Obergeschoss sowie einem zusätzlichen Garderobenraum im Erdgeschoss.
Praktische Highlights, wie der integrierte Wäscheschacht mit Aufzug, unterstreichen die intelligente Planung und sorgen für spürbare Entlastung im Alltag – ein echter Gamechanger.
Haus anfragenZusatzinfo
Für Anfragen zu diesem Kundenhaus verwenden Sie bitte die interne Bezeichnung LUXHAUS-22513.
Haus anfragen








