

Walmdach 266
Kundenhaus
Zweigeschossiges Haus mit Walmdach
Bei diesem zweigeschossigen Haus mit Walmdach treffen klassische Architektur und moderne Gestaltung auf harmonische Weise zusammen. Das markante Walmdach verleiht dem Gebäude eine repräsentative Villenanmutung, während große Fensterflächen und klare Farbkontraste für eine zeitgemäße Optik sorgen. Der Pool im Garten unterstreicht zusätzlich den eleganten und exklusiven Charakter dieses Hauses.
Die gezielte Ausrichtung der Fenster folgt den Himmelsrichtungen: Nach Südosten sorgen großzügige Glasflächen für helle und lichtdurchflutete Wohnräume. Im Nordosten und Nordwesten hingegen bieten kleinere Fensterformate angenehme Rückzugsmöglichkeiten und betonen den wohnlichen Charakter.
Bereits beim Betreten überzeugt die Diele mit einer klaren und funktionalen Raumaufteilung. Auf der linken Seite befindet sich eine großzügige Garderobe, an die sich direkt der Fitnessraum anschließt – mit Zugang zum Garten und idealer Nähe zur Natur. Rechts liegen das Arbeitszimmer sowie ein Dusch-WC, wodurch sich ein separater Gästebereich ergibt. Gleichzeitig bietet die Dusche einen praktischen Komfort nach sportlichen Aktivitäten.
Der Technikbereich wurde dezent hinter der Treppe positioniert, sodass er sich harmonisch in das Gesamtbild einfügt. Das Herzstück des Hauses bildet der offene Wohn-, Ess- und Kochbereich, der sich durch eine moderne Glasabtrennung von der Diele absetzt. Große Schiebeelemente öffnen den Wohnraum zum Garten hin und verbinden Innen- und Außenbereich fließend. Eine Durchgangslösung führt von der Küche direkt in die in den Technikbereich integrierte Speis und Schmutzküche.
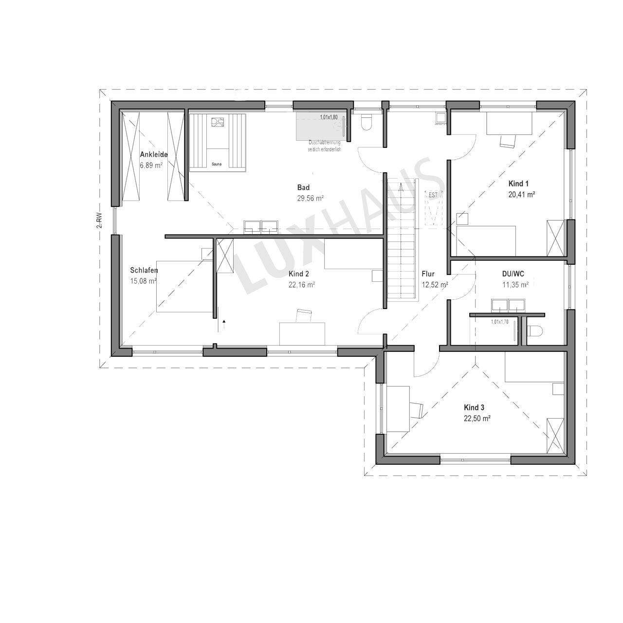
Über die geradläufige Treppe gelangen Sie ins Obergeschoss des zweigeschossigen Hauses mit Walmdach. Von der zentralen Verteilerdiele aus erschließen sich drei Kinderzimmer, das großzügige Kinderbad sowie der Elterntrakt mit Schlafzimmer, Wellnessbad inklusive Sauna und einer komfortablen Ankleide. Das durchdachte Raumkonzept bietet dabei sowohl großzügige Rückzugsorte als auch perfekt nutzbare Gemeinschaftsbereiche.
Haus anfragenZusatzinfo
Für Anfragen zu diesem Kundenhaus verwenden Sie bitte die interne Bezeichnung LUXHAUS-29117.
Haus anfragen







