

Musterhaus Georgensgmünd
Musterhaus
GEORGENSGMÜND
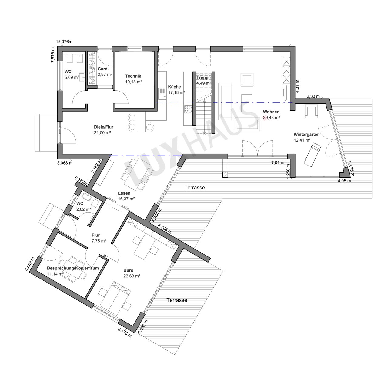
Direkt am Produktionsstandort und der Zentrale von LUXHAUS zeigt das Musterhaus Georgensgmünd, was individuelle Architektur „made in Germany“ bedeutet. Der großzügige Eingangsbereich empfängt Besucher mit einer offenen und einladenden Gestaltung. Klare Sichtachsen und fließende Übergänge prägen das Erdgeschoss, das Wohnen, Essen und Kochen in einem lichtdurchfluteten Raumkonzept vereint. Bodentiefe Fenster öffnen den Blick ins Grüne und schaffen eine direkte Verbindung zu den weitläufigen Terrassenbereichen und dem Wintergarten.
Ein besonderes Highlight ist der separate Bürotrakt mit Besprechungsraum und eigenem Zugang – ideal für modernes Arbeiten im eigenen Zuhause.
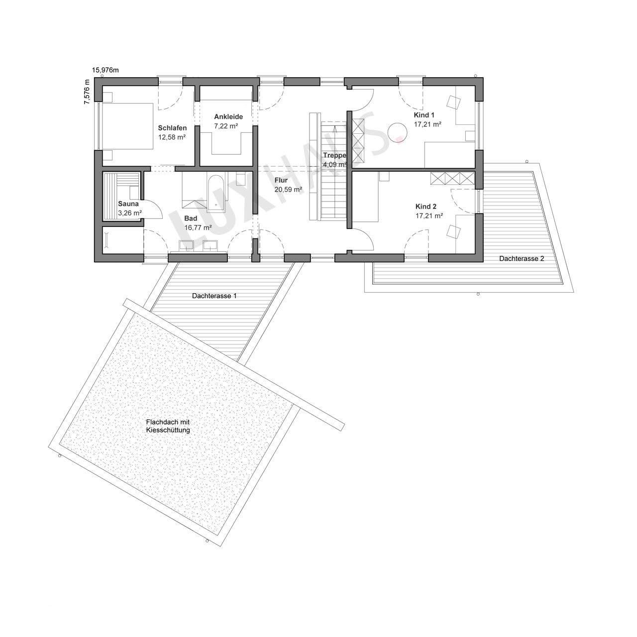
Im Obergeschoss erwartet Sie ein großzügiges Wellnessbad mit Sauna und Zugang zur Dachterrasse – ein Rückzugsort mit Wohlfühlatmosphäre. Zwei flexibel nutzbare Zimmer bieten Raum für Kinder, Gäste oder ein Homeoffice. Das Schlafzimmer mit angeschlossener Ankleide komplettiert das komfortable Raumangebot.
Die markante Architektur des Hauses setzt außen auf eine klare Linienführung, akzentuiert durch kontrastreiche Fassadenelemente und große Fensterflächen. Innen überzeugt das Musterhaus durch modernes Design, hochwertige Materialien und eine harmonische Verbindung von Funktionalität und Ästhetik.
Haus anfragenKontakt
LUXHAUS Musterhaus Georgensgmünd
Werksstandort
Pleinfelder Straße 64
91166 Georgensgmünd
Telefon: +49 9172 692344
Telefax: +49 9172 692348
Öffnungszeiten: Jeden Mittwoch von 12-18 Uhr
Terminvereinbarungen jederzeit möglich:
Ihre Ansprechpartner

Ansprechpartner Maximilian SteinerE-MailDetailseite

Ansprechpartner Jürgen VolkE-MailDetailseite

Ansprechpartner Klaus OkunekE-MailDetailseite

Ansprechpartner Carl HodderE-MailDetailseite







