

Musterhaus München
Musterhaus
MÜNCHEN
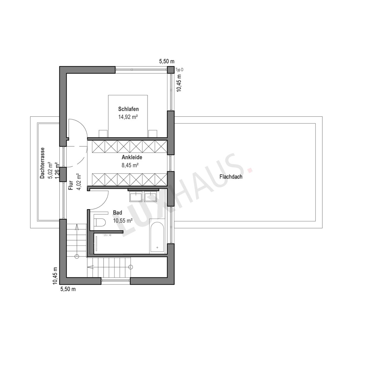
Das Musterhaus Poing vereint auf einer Wohnfläche von 110m² Raumgefühl, Wohnqualität und zukunftsweisende Technik.
Das Plus-Energie-Haus im Bauhausstil trägt der Tendenz zu kleineren Grundstücken Rechnung, wobei sich repräsentativer Anspruch und individuelle Rückzugsmöglichkeiten hier nicht ausschließen.
In großzügiger Offenheit erstreckt sich das Flachdachhaus über zwei Geschosse. Mit intelligenten Raumaufteilungen und geschickt auf die täglichen Bedürfnisse abgestimmten Einbaumöbeln nutzt das Konzept die Wohnfläche optimal. Eine durchgängige, auf das Wesentliche reduzierte Design- und Formensprache erzeugt ein harmonisches Raumgefühl und eine einzigartige Wohlfühlatmosphäre.
Architektonische Highlights unseres Musterhauses sind zum einen das 2,45 Meter frei auskragende Element des oberen der beiden ineinandergeschobenen Baukörper, zum anderen die Panoramaverglasungen in beiden Geschossen.
Wir freuen uns darauf Sie in unserem Musterhaus Poing bei München begrüßen zu dürfen!
Haus anfragen
Kontakt
LUXHAUS Musterhaus Poing/München
Senator-Gerauer-Straße 25
85586 Poing/Grub
Telefon: +49 89 5025085
Telefax: +49 89 509459
geöffnet Mittwoch bis Sonntag
von 11 bis 18 Uhr oder Besichtigung nach telefonischer Vereinbarung
Ihre Ansprechpartner

Ansprechpartner Nihat IncirE-MailDetailseite

Ansprechpartner Jessica GistelE-MailDetailseite

Ansprechpartner Robin PeifferE-MailDetailseite







