Durchdachter Grundriss für ein kleines Haus Satteldach Landhaus 126
Die Geschichte unserer Baufamilie beginnt mit dem Wunsch nach einem modernen Einfamilienhaus mit hoher Wohnqualität und einem fairen Preis-Leistungs-Verhältnis. Klar war: Das neue Zuhause sollte kompakt, effizient und trotzdem großzügig wirken – mit rund 120 m² Wohnfläche. Gemeinsam mit LUXHAUS entstand ein individuell geplantes Architektenhaus, das auf intelligente Weise jeden Quadratmeter optimal nutzt.


Grundstückssuche mit Happy End
Ursprünglich hatte die Familie bereits ein Grundstück reserviert. Nach dem Besuch eines Kundenhauses von LUXHAUS waren sie sofort überzeugt von Design, Bauqualität und Wohnkomfort. Doch die geplante Baufläche erwies sich nach einer fachlichen Prüfung als ungeeignet.
Gemeinsam mit LUXHAUS begab sich die Familie auf die Suche nach einem neuen Bauplatz – und wurde schnell fündig. Das neue Grundstück am unverbaubaren Ortsrand bot perfekte Voraussetzungen, um das individuell geplante Haus auf kleinem Grundstück zu realisieren. Das Ergebnis: ein kompaktes, energieeffizientes Haus mit durchdachtem Grundriss und hoher Wohnqualität.
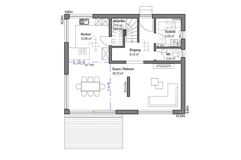
Intelligente Raumplanung: Der perfekte Grundriss für modernes Wohnen
Jeder Quadratmeter wurde optimal genutzt:
Der Carport wurde zu einer Verlängerung der Garage gemacht, wodurch der Eingang überdacht wird. Beim Betreten des Hauses gelangt man in einen großzügigen Vorraum, der auf der linken Seite den Technikraum und ein Gäste-WC beherbergt. Auf der rechten Seite führt eine Sichtbetontreppe nach oben.
Im Hauptbereich des Erdgeschosses befinden sich die Küche, der Essbereich und das Wohnzimmer, die geschickt über Eck angeordnet sind. Obwohl die Küche offen ist, wurde sie optisch vom Wohnbereich abgetrennt, was durch eine Wandscheibe mit einem integrierten Ethanol-Ofen verstärkt wird.
Praktisch: Der Raum unterhalb der Treppe wird als Speisekammer genutzt und kann von der Küche aus geöffnet werden.


Dank der großzügigen Verglasungen und der offenen Gestaltung im Erdgeschoss entstand ein Raumgefühl, das das Haus größer erscheinen ließ als es tatsächlich war. Statt vieler Terrassentüren entschied sich die Baufamilie für großzügige Festverglasungen, wodurch auch etwas Geld gespart werden konnte.
Eine beeindruckende Hebe-Schiebetür führt vom Esszimmer auf die Terrasse.
Im Obergeschoss gibt es zwei identische (gespiegelte) Kinderzimmer sowie ein gemeinsames Badezimmer mit einer eleganten freistehenden Badewanne. Das Schlafzimmer verfügt über eine gemütliche Sitzecke mit Bücherregalen. Durch die Schiebetür in der Ankleide gelangt man direkt ins Badezimmer.



Liebe zum Detail bei der Hausplanung
Bei der Hausplanung wurde auf viele praktische Details geachtet:
- Einbaustrahler für harmonische Beleuchtung
- Nischen in den Bädern als stilvolle Ablagen
- Großzügige, bodengleiche Dusche
- Freistehende Badewanne als Design-Highlight
Diese durchdachten Elemente zeigen, wie LUXHAUS auch auf kleiner Fläche ein Höchstmaß an Komfort, Design und Funktionalität realisiert.
Hausdaten im Überblick
| Wohnfläche EG: | 63 m² |
| Wohnfläche OG: | 63 m² |
| Gesamtwohnfläche: | 126 m² |
| Dachform, Dachneigung: | Satteldach, 30° |
| Abmessung: | 10,34 x 8,6 m |
Jetzt Ihr eigenes LUXHAUS planen
Erleben Sie, wie aus einer Idee ein individuelles Zuhause wird – mit einem durchdachten Grundriss, moderner Architektur und hochwertiger Bauweise.
Starten Sie jetzt Ihre persönliche Hausplanung mit LUXHAUS: >> Termin buchen <<












