

Bungalow Walmdach 157
Kundenhaus
Bungalow für zwei Personen
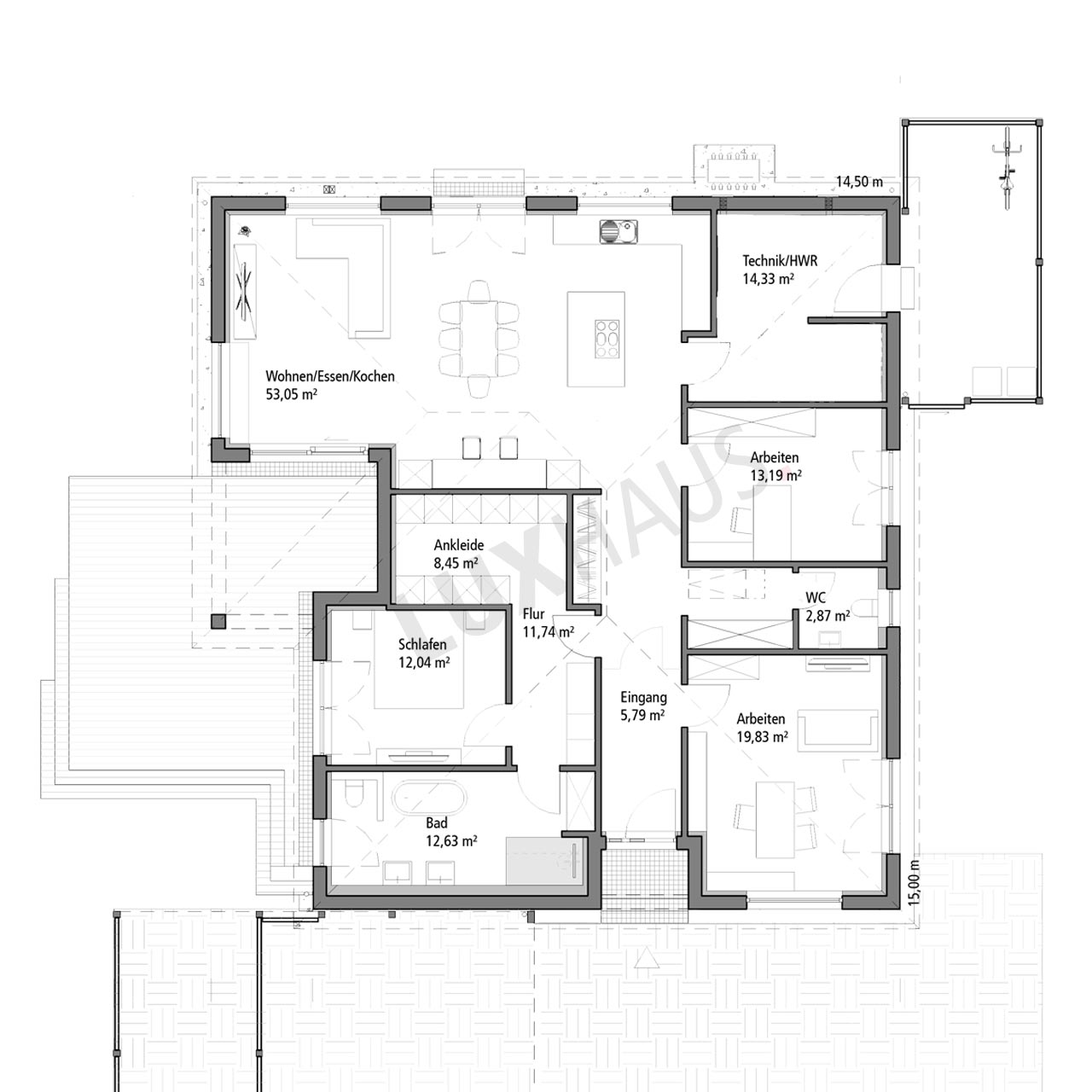
Ein moderner und luxuriöser Bungalow, der ideal für zwei Personen konzipiert ist und Wohnen sowie Arbeiten unter einem Dach vereint. Alle Wohnbereiche befinden sich auf einer Ebene, sodass auch im Alter ein komfortables Wohnen gewährleistet ist. Zwei separate Büros bieten individuelle Rückzugsorte und können bei Bedarf leicht in Gästezimmer umgewandelt werden.
Der Haupteingang öffnet sich zu einem großzügigen Entree, das direkt in den Flur und weiter in den 53 m² großen offenen Wohn-, Koch- und Essbereich führt. Eine zusätzliche Tür im Eingangsbereich führt zu einem zweiten Flur, der als Vorraum für das Hauptbadezimmer, Schlafzimmer und die Ankleide der Bauherren dient, wodurch ein privater Bereich abgeschottet vom restlichen Trubel entsteht. Das Badezimmer bietet mit einer freistehenden Badewanne und einer Regendusche mit Blick in den Garten ein luxuriöses Ambiente.
Der offen gestaltete Wohnbereich und die schwarze Küche mit Insel sind durch große Fensterflächen geprägt, die den Raum trotz dunkler Farben hell und einladend erscheinen lassen. Besonders das Sitzfenster mit unverbaubarem Blick auf den Sonnenuntergang und den Pool lädt zum Verweilen ein. Auf der Terrasse schaffen der Pool sowie die gepflanzten Palmen und Olivenbäume ein Urlaubsfeeling im eigenen Zuhause.
Als Effizienzhaus KfW 40+ verfügt der Bungalow für zwei Personen über einen Technikraum, der gleichzeitig als Hauswirtschaftsraum dient und einen direkten Zugang zur Fahrrad- und Mülltonnengarage bietet. Die durchdachte Haustechnik mit Wärmepumpe inklusive Kühlfunktion, Lüftungsanlage, PV-Anlage und Smarthome-System bietet vollumfängliche Möglichkeiten, in dem Bungalow für zwei Personen smart und nachhaltig mit bestem Wohlfühlklima zu wohnen.
Haus anfragenZusatzinfo
Für Anfragen zu diesem Kundenhaus verwenden Sie bitte die interne Bezeichnung LUXHAUS-29136.
Haus anfragen






