

Satteldach Landhaus 152
Kundenhaus
Satteldachhaus mit 22° Dachneigung
Dieses Satteldachhaus mit 22° Dachneigung zeigt, wie moderne Architektur und Alltagstauglichkeit perfekt miteinander harmonieren können. Die warmen Holzdetails in der Fassade verleihen dem Haus eine einladende, zugleich elegante Ausstrahlung.
Mit rund 152 m² Wohnfläche bietet es Raum für individuelles Wohnen mit Stil – offen, hell und durchdacht geplant.
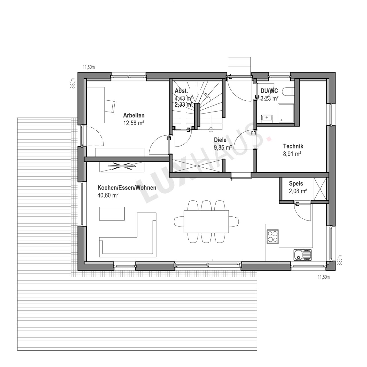
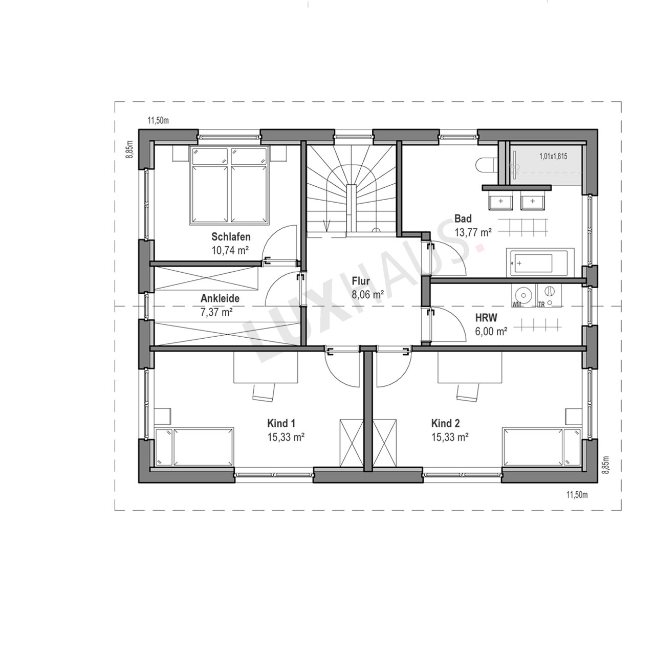
Im Inneren überzeugt der Grundriss durch seine klare Struktur und smarte Lösungen. Der großzügige Wohn- und Essbereich ist Mittelpunkt des Familienlebens, während der praktische Hauswirtschaftsraum im Obergeschoss für kurze Wege sorgt – ein Detail, das den Alltag spürbar erleichtert.
Große Fensterflächen und das Sitzfenster im Wohnzimmer lassen viel Licht herein und schaffen eine angenehme Verbindung zwischen Innen- und Außenraum.
Mit der modernen Architektur, den natürlichen Materialien und dem harmonischen Zusammenspiel aus Design und Funktion wird dieses Satteldachhaus zum Beispiel dafür, wie durchdachtes Wohnen heute aussieht – modern, gemütlich und mit Liebe zum Detail geplant.
Weiterlesen Haus anfragen
„Bei der Grundrissgestaltung haben wir besonders darauf geachtet, funktionale und durchdachte Lösungen umzusetzen: spiegelgleiche Kinderzimmer, keine unnötige Platzverschwendung durch übergroße Flure, eine direkt von der Küche zugängliche Speis sowie ausreichend Raum für eine Infrarotkabine im Bad. Auch die Verbindung zwischen Ankleide und Schlafzimmer war für uns ein wichtiges Detail, das den Alltag spürbar komfortabler macht.“
Haus anfragen
Zusatzinfo
Für Anfragen zu diesem Kundenhaus verwenden Sie bitte die interne Bezeichnung LUXHAUS-28476.
Haus anfragen







