

Pultdach Modern 224
Kundenhaus
Designhaus mit Pool
Dieses Designhaus mit Pool ist alles andere als ein gewöhnliches Haus. Auf 251 m² Wohnfläche mit modernem Pultdach und einem großzügigen Garten hat sich der Bauherr mit zahlreichen Highlights und raffinierten Details verwirklicht.
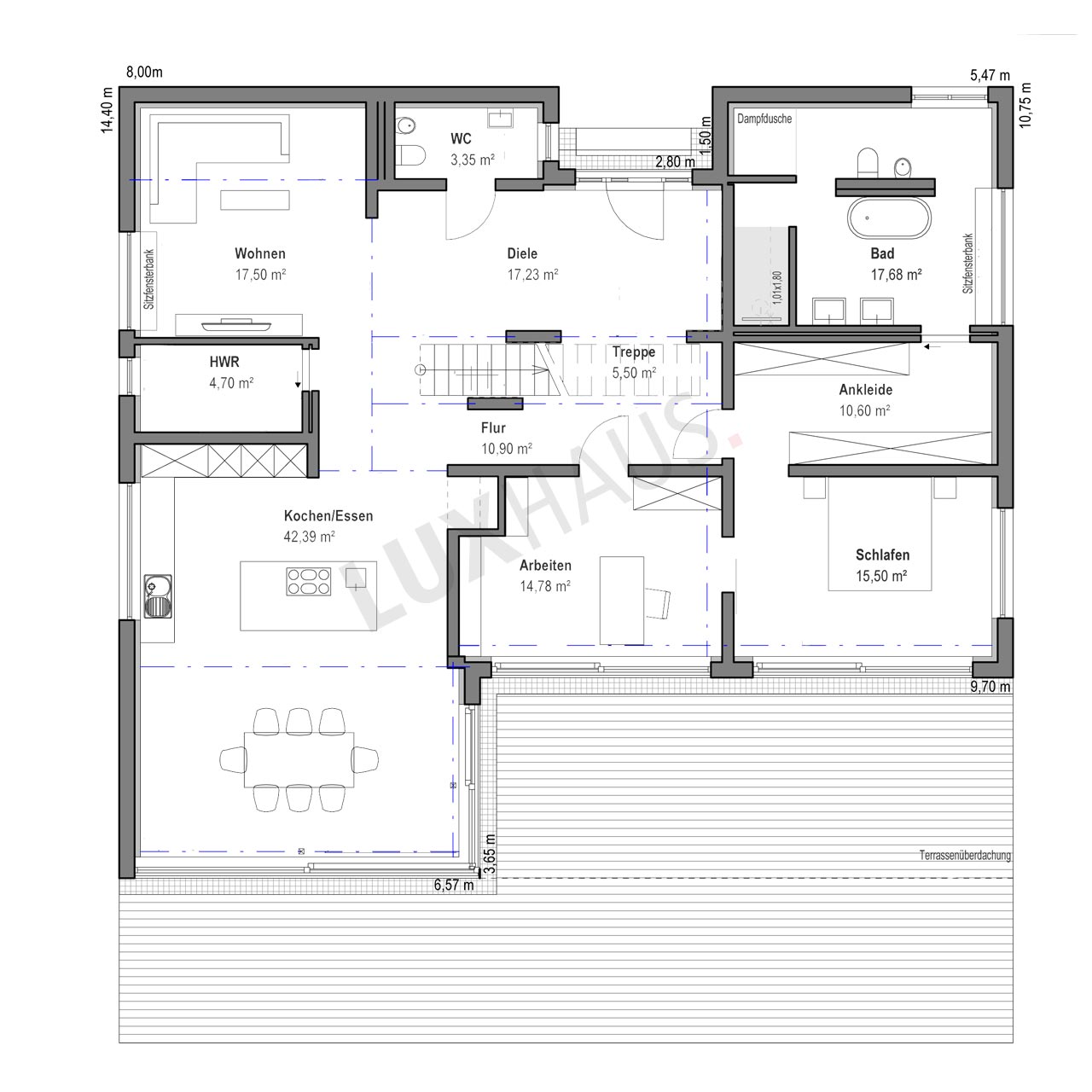
Schon beim Betreten des Hauses durch die markante rote Haustür eröffnet sich ein imposanter Eingangsbereich, aus dem eine geradlinige Betontreppe ins Obergeschoss führt. Die aufwändige Oberflächentechnik der Wände verleiht ihnen eine metallische Optik und unterstreicht das moderne Design. Stumpf einschlagende, wand- und sockelleistenbündig verbaute Türen zeugen von einer konsequent durchdachten Architektur, während 130 Einbaustrahler im gesamten Haus das Ambiente stilvoll inszenieren.
Vom Eingangsbereich führen mehrere Türen in funktionale und private Räume: ein Gäste-WC, eine versteckte Schmutzküche sowie ein Arbeitszimmer. Ein separater Durchgang führt in den Privatbereich mit Schlafzimmer, Ankleide und einem exklusiven Wellnessbad. Hier erwarten Sie eine großzügige Dusche, eine freistehende Badewanne und eine Biosauna – perfekt für entspannte Momente.
Im Obergeschoss teilen sich zwei Jugendzimmer ein eigenes Bad, während eine imposante Terrasse zusätzlichen Freiraum schafft. Auch der Technikraum wurde hier integriert – eine unkonventionelle, aber funktionale Lösung.
Besonders hervorzuheben ist das stilvolle Herrenzimmer mit einem großen Sitzfenster. Dieser Rückzugsort bietet Raum für Gespräche und Genuss. Direkt angrenzend befindet sich eine großzügige Küche, die keine Wünsche offenlässt. Mit hochwertiger Ausstattung und einem zentralen Eichentisch für bis zu 12 Personen ist sie das Herzstück des Hauses, in dem Geselligkeit zelebriert wird.
Ein beeindruckendes Merkmal dieses Designhauses mit Pool ist die raumhohe Verglasung, die den gesamten Essbereich sowie angrenzende Räume wie Arbeitszimmer und Schlafzimmer zum Garten hin öffnet. Nur der Schlafbereich bleibt durch ein Wintergartenelement mit Raffstores dezent abgesetzt.
Der Außenbereich setzt das durchdachte Design konsequent fort: Auf 120 m² Terrassenfläche trifft mediterranes Ambiente auf fränkische Natur. Palmen, eine Wildblumenwiese und Avocadobäume schaffen eine harmonische Mischung aus Moderne und Natürlichkeit. Ein Kräuterhochbeet begrenzt das Grundstück, während ein kubisches Gartenhaus als Technikraum für den Pool und die Bewässerungsanlage dient.
Haus anfragenZusatzinfo
Für Anfragen zu diesem Kundenhaus verwenden Sie bitte die interne Bezeichnung LUXHAUS-28103.
Haus anfragen







