

Satteldach Modern 242
Kundenhaus
Satteldachhaus mit Anbau
Dieses Satteldachhaus mit zwei markanten Anbauten steht exemplarisch für die Verbindung von klarer Architektur, moderner Funktionalität und gestalterischer Raffinesse. Die weiß-graue Fassadengestaltung wirkt zeitlos und zurückhaltend – durchbrochen vom gezielten Farbklecks der auffälligen orangenen Haustür, die als gestalterisches Statement fungiert. Der vordere Anbau erweitert nicht nur das Homeoffice, sondern dient gleichzeitig als elegante Eingangsüberdachung und definiert die architektonische Gliederung der Straßenansicht.
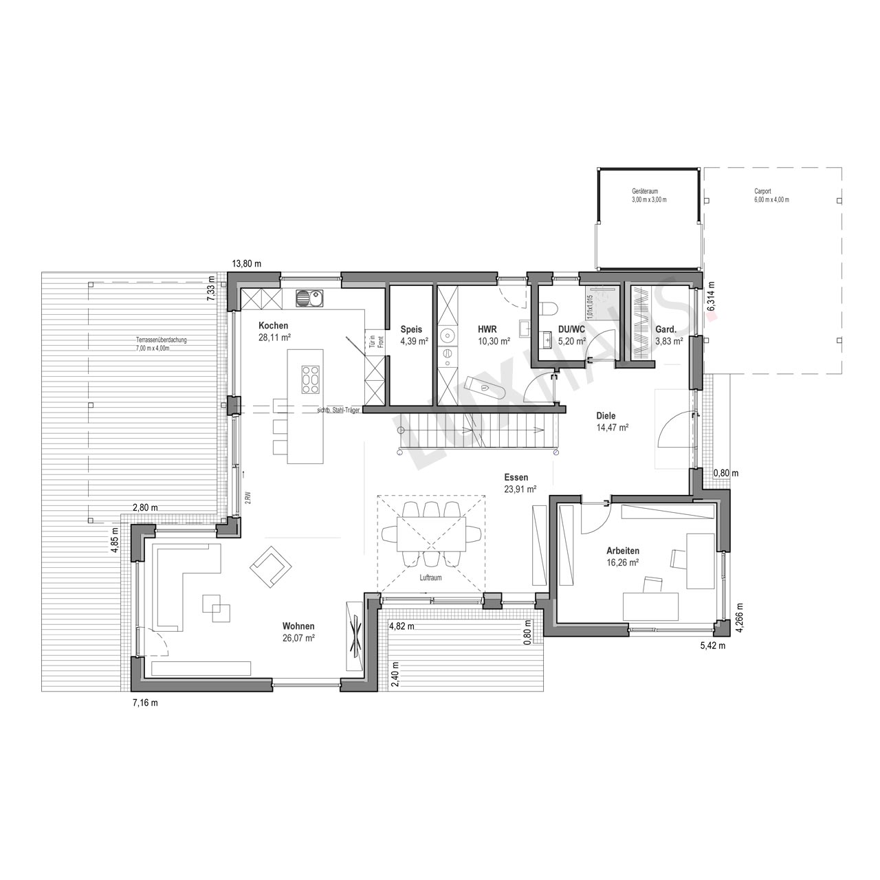
Bereits beim Eintreten vermittelt das Haus Offenheit und Struktur. Der erste Blick fällt auf die sichtbare Betontreppe, die als zentrales Gestaltungselement Erdgeschoss, Obergeschoss und Keller miteinander verbindet. Links vom Eingang befindet sich das großzügige Büro, rechts die Garderobe und ein modernes Dusch-WC, das mit Kontrasten aus Schwarz, Weiß, Holz und Ziegelsteinoptik ein harmonisches Gesamtbild erzeugt.
Geradlinig weiter öffnet sich der Blick in den Essbereich – geprägt durch eine beeindruckende Galerie mit meterhoher Fensterfront. Diese sorgt nicht nur für maximale Tageslichtversorgung, sondern auch für ein außergewöhnliches Raumgefühl. Design-Pendelleuchten setzen stilvolle Akzente. Nach rechts geht der Bereich fließend in die Küche über, die mit einer großen Kochinsel, einem integrierten Weinkühler, einem offenen Stahlträger in Anthrazit und einer versteckten Speisekammer gleich mehrere architektonische und funktionale Highlights bietet. Nach links erschließt sich das Wohnzimmer, das im seitlichen Anbau untergebracht ist – großzügig dimensioniert und mit viel Platz für eine gemütliche Sofalandschaft. Ebenfalls im Erdgeschoss: der Hauswirtschaftsraum mit praktischer Anbindung an Küche und Wohnbereich.
Das Obergeschoss wird durch die offene Galerie mit Blick in den Essbereich und in den Garten charakterisiert. Die Räume sind bis zum First offen gestaltet, ergänzt durch sichtbare Holzbalken, die dem Obergeschoss Wärme und Struktur verleihen. Auf der einen Seite befinden sich zwei identisch große Kinderzimmer – jeweils mit einer durch die Raumhöhe möglichen zweiten Ebene, nutzbar als Spiel- oder Schlafgalerie. Ergänzt wird dieser Bereich durch ein eigenes Kinderbad mit Dusche und WC. Die gegenüberliegende Haushälfte ist als privater Elternbereich konzipiert: Schlafzimmer, Ankleidezimmer und ein großzügiges Badezimmer mit integrierter Sauna bilden eine funktionale und zugleich private Einheit. Der Zugang erfolgt über eine zentrale Badezimmertür, wodurch ein eigener Rückzugsbereich entsteht – abgetrennt vom restlichen Obergeschoss.
Das Haus ist teilunterkellert. Im Untergeschoss befinden sich ein voll ausgestatteter Fitnessraum mit Tageslicht, ein Gästezimmer, der Technikraum sowie großzügige Lagerflächen – funktional und hochwertig ausgebaut.
Im Außenbereich setzt sich das architektonische Konzept fort: Durch die beiden Anbauten entstehen zwei geschützte Terrassenflächen – darunter eine kleine, windgeschützte Terrasse sowie eine Dachterrasse über dem Wohnzimmeranbau. Der überdachte Sitzbereich im Garten bietet zusätzlichen Komfort bei jedem Wetter. Das Highlight des Außenbereichs bildet der stilvoll integrierte Pool, der die klare Architektur konsequent erweitert.
Technisch überzeugt das Haus durch eine moderne Komfortlüftung mit integrierter Befeuchtung – für ein ganzjährig angenehmes Raumklima und optimale Wohngesundheit.
Dieses Projekt zeigt eindrucksvoll, wie individuell geplante Architektur nicht nur ästhetischen, sondern auch funktionalen und emotionalen Ansprüchen gerecht werden kann – maßgeschneidert, nachhaltig und auf hohem gestalterischem Niveau.
Haus anfragenZusatzinfo
Für Anfragen zu diesem Kundenhaus verwenden Sie bitte die interne Bezeichnung LUXHAUS-29245.
Haus anfragen








