

Pultdach Klassik 285
Kundenhaus
Pultdachhaus mit Sauna
Dieses individuell geplante Architektenhaus vereint großzügige Raumgestaltung, durchdachte Funktionalität und eine klare Formensprache über drei Ebenen. Mit flexiblen Nutzungsmöglichkeiten im Untergeschoss, offenem Wohnkonzept im Erdgeschoss und einem klar strukturierten Rückzugsbereich im Obergeschoss erfüllt es höchste Ansprüche an Design, Komfort und Alltagstauglichkeit.
Das Erdgeschoss ist auf Offenheit und Kommunikation ausgelegt. Der Wohnbereich mit Gaskamin bietet eine hohe Aufenthaltsqualität und öffnet sich fließend zum großzügigen Essbereich sowie zur offenen Küche. Die Raumfolge schafft ein harmonisches Gesamtbild und bietet gleichzeitig eine klare Zonierung für Kochen, Essen und Wohnen. Eine angrenzende Speisekammer sorgt für kurze Wege im Alltag. Im Eingangsbereich sind zwei Garderobenbereiche integriert, die sowohl praktische als auch optische Ordnung bieten. Ergänzt wird das Erdgeschoss durch ein separates Arbeitszimmer sowie ein Duschbad, das die flexible Nutzung des Hauses weiter unterstreicht. Die innenliegende Verbindung zur Großraumgarage sorgt für zusätzlichen Komfort.
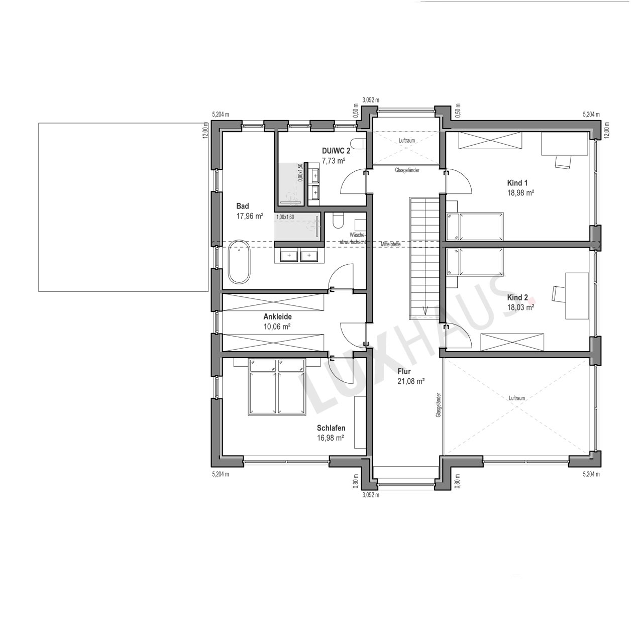
Im Obergeschoss liegt der Fokus auf Rückzug und Privatsphäre. Zwei helle und geräumige Kinderzimmer bieten ausreichend Platz für individuelle Gestaltung. Der Elternbereich ist klar strukturiert und umfasst ein Schlafzimmer, eine separate Ankleide sowie ein großzügiges Badezimmer mit Badewanne, Doppelwaschtisch und integrierter Sauna. Ein weiteres Duschbad steht als komfortable Lösung für Kinder oder Gäste zur Verfügung. Der zentral gelegene Flur mit Glasgeländer bietet viel Tageslicht durch gezielt platzierte Glasfelder und verbindet die privaten Räume miteinander.
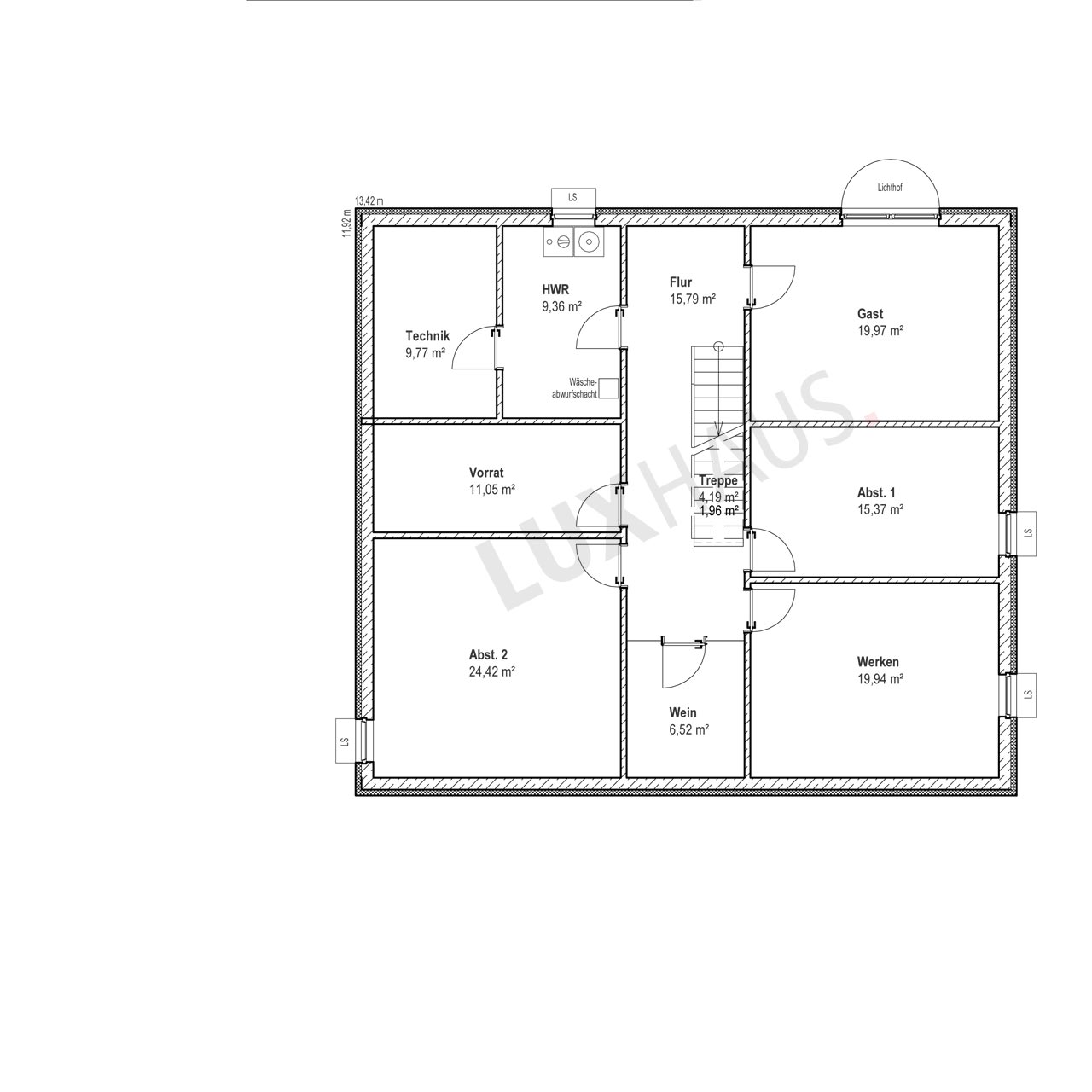
Im Untergeschoss zeigt sich die Vielseitigkeit des Hauses besonders deutlich. Neben einem tageslichthellen Gästezimmer steht ein umfangreicher Nutzbereich zur Verfügung, der unter anderem zwei große Abstellräume, einen Werkraum, einen Vorratsraum sowie einen separaten Weinkeller umfasst. Der Hauswirtschaftsraum ist funktional angebunden und mit einem Wäscheabwurfschacht ausgestattet, der sich durchgängig über alle Ebenen erstreckt. Auch der Technikraum ist sinnvoll platziert, um eine optimale Wartung und Versorgung der Haustechnik zu gewährleisten. Die Kombination aus natürlicher Belichtung, intelligenten Stauraumlösungen und flexiblen Nutzungsmöglichkeiten macht diese Etage zu einem echten Mehrwert.
Weiterlesen Haus anfragen„Unsere persönlichen Highlights sind die Lufträume, die durch ausgewählte Leuchten besonders in Szene gesetzt werden, das schlicht gestaltete Gästebad, die intelligente Steuerung über das Loxone-System sowie der großzügige Badbereich mit integrierter Sauna. Und wenn wir den Hausbau in einem Satz zusammenfassen müssten: Wenn noch einmal bauen, dann wieder mit LUXHAUS – auch wenn es danach aktuell nicht aussieht, weil wir uns hier rundum wohlfühlen.“
Haus anfragen
Zusatzinfo
Für Anfragen zu diesem Kundenhaus verwenden Sie bitte die interne Bezeichnung LUXHAUS-28138.
Haus anfragen











